Bouwnummer 18, Benedenerf | Erfwoning

Lent

€ 720.000,- v.o.n. Bezoek de projectwebsite
  • Verkocht onder voorbehoud

Ontdek het op jouw manier!

Omschrijving

De zon schijnt en je zet lekker de schuifpui open. Dit wordt een mooie dag en je hebt nú al zin in de barbecue met vrienden vanavond. Maar eerst nog even werken. Als je daar aan toekomt… Want met de schuifpui open is de kans groot dat de buurvrouw even binnenstapt voor een kop koffie. Alleen maar gezellig! Dan kun je ook nog even afspreken wanneer het volgende etentje plaatsvindt.

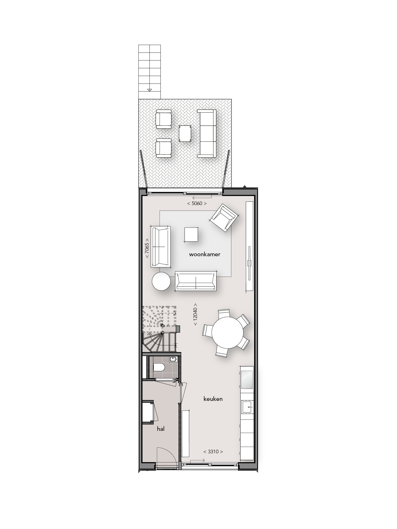
Welkom (t)huis
Aan de voorzijde van de woning vind je de entree en stap je binnen in de hal. Hier vind je het toilet en de meterkast. Loop iets verder en open de deur naar de royale woonkamer met ruimte voor een open keuken. Hier maak jij straks de heerlijkste gerechten. Aan de achterzijde van de woning is ruimte beschikbaar voor een comfortabele zithoek. Hier kun je een gezellige plek creëren om ’s avonds tot rust te komen. Door de raampartijen oogt de woning lekker licht en lonkt het terras. Wat een uitzicht! In de berging kun je trouwens je tuinspullen kwijt als je met de bewoners samen fruit hebt geplukt in de boomgaard. En heb je trouwens een auto? Zoeken naar een parkeerplek hoeft meer, want je auto parkeer je lekker dicht bij de woning op een eigen parkeerplek.

Verdieping met mogelijkheden
Op de 1e verdieping vind je 3 (slaap)kamers, 1 badkamer met ligbad en douche, een separaat toilet. De zolder biedt plek voor de wasmachine en droger en is er ruimte voor eigen invulling. Wordt het een 4e slaapkamer, fitnessruimte of thuiswerkplek? Je kunt er alle kanten mee op!

Let op: de oppervlakte van de kavel is excl. m2 berging, containerplaats en parkeerplaats.

Kenmerken
Overdracht
  • Koopsom € 720.000,- v.o.n.
  • Status Verkocht onder voorbehoud
Bouw
  • Soort bouw Woonhuis
  • Bouwjaar 2026
Oppervlakten
  • Woonoppervlakte 148 m2
Indeling
  • Aantal kamers 4 kamers
  • Aantal woonlagen 3 woonlagen
  • Isolatie Volledig geisoleerd
  • Verwarming Vloerverwarming gedeeltelijk

Planning

Start verkoop 11 november 2025
Start bouw n.t.b.
Start oplevering n.t.b.

Hier kom
je te wonen

      Altijd als eerste op de hoogte

      Altijd als eerste op de hoogte van nieuwbouw, marktontwikkelingen én jouw favoriete projecten? Schrijf je in voor onze nieuwsbrief en maak een woonaccount aan om eenvoudig projecten te volgen en updates te ontvangen.

      Mijn woonaccount