Bouwnummer 1, Benedenerf | Vrijstaande woning | Fase 2

Lent

€ 1.342.500,- v.o.n. Bezoek de projectwebsite
  • Verkocht onder voorbehoud

Ontdek het op jouw manier!

Omschrijving

Stel je eens voor… wonen dichtbij een boomgaard. Niets meer dan groen en water om je heen. En tóch, in de verte knipoogt de stad Nijmegen. Vogeltjes die fluiten als je op je beschutte terras zit. Genieten van het vrije uitzicht en toch volop privacy. Alsof je elke dag wakker wordt in je vakantiehuis, maar dit is de plek waar jij woont.

Welkom thuis
Aan de zijkant van de woning vind je de entree. Via de hal met vide en toilet, kom je in de royale en lichte woonkamer met ruimte voor een mooie, open keuken. Dit is niet alleen een plek om te koken, er is ook ruimte om te ontspannen. Vanuit de keuken heb je ook toegang tot de berging. Aan de achterzijde van de woning is ruimte voor een comfortabele zithoek. Hier creëer je een fijne plek om ’s avonds tot rust te komen. Open de schuifpui en je staat op je eigen houten terras, grenzend aan het landschap.

Ruimte voor iedereen
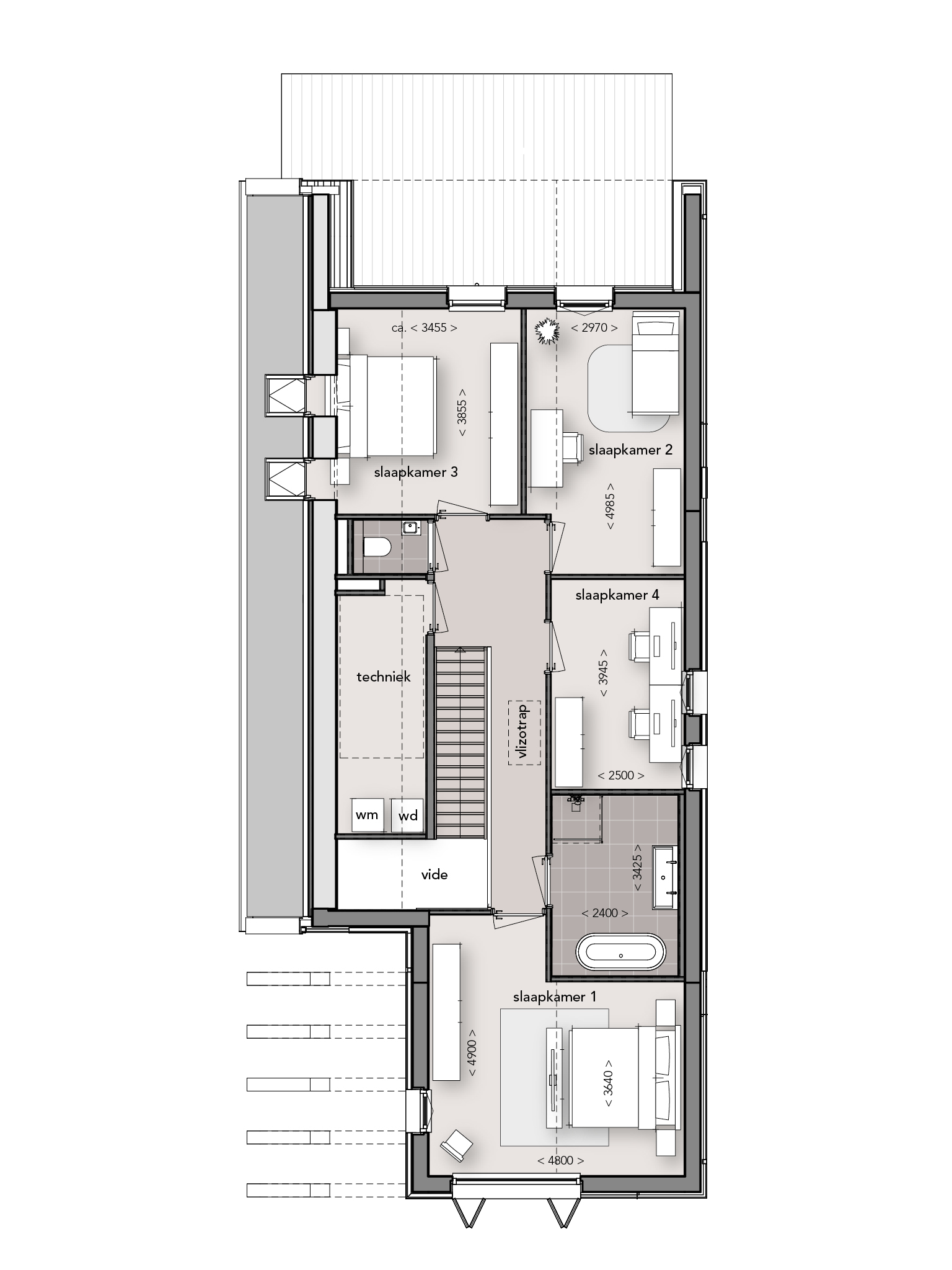
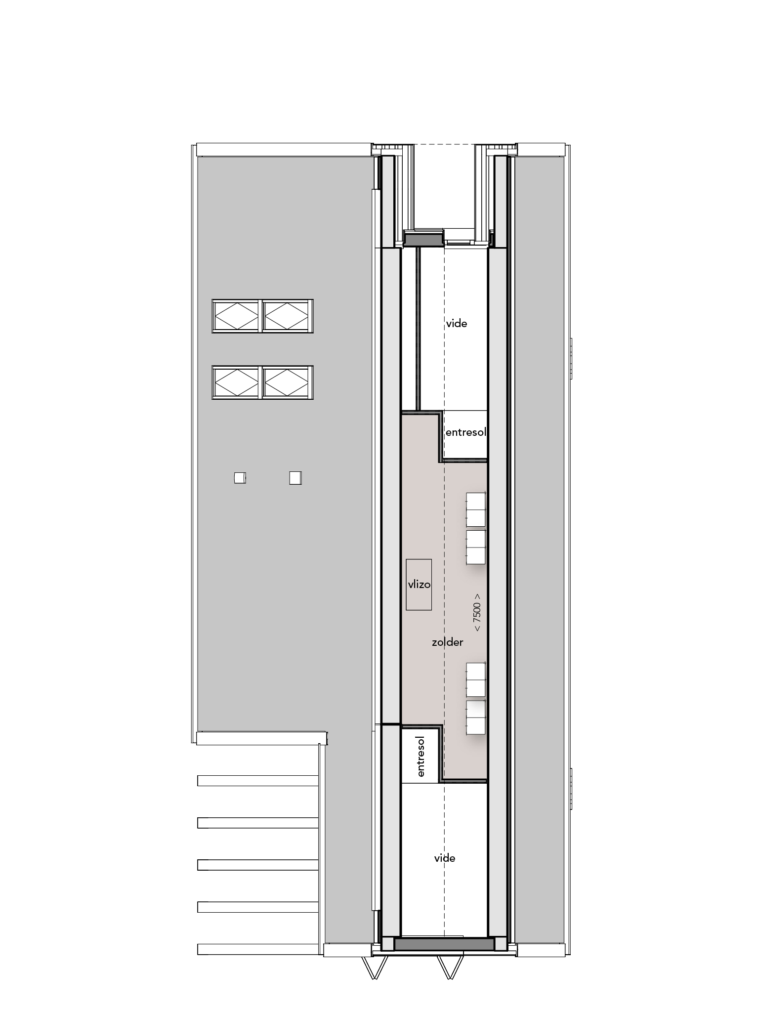
Op de 1e verdieping vind je maar liefst 4 slaapkamers. Iedereen krijgt dus een eigen kamer. En heb je een kamer over? Die kun je inrichten als werkplek of wordt het toch een inloopkast? Jij bepaalt. De badkamer heeft een douche, wastafel én ligbad. Ook is er een separaat toilet en een washok met ruimte voor een wasmachine en droger. De zolder bereik je met een vlizotrap. Hier sla je spullen op die je niet elke dag nodig hebt.

De auto parkeer je trouwens gemakkelijk op je privéparkeerplaats op eigen terrein, hier is plek voor 1 grote en 1 kleine auto.

Kenmerken
Overdracht
  • Koopsom € 1.342.500,- v.o.n.
  • Status Verkocht onder voorbehoud
Bouw
  • Soort bouw Woonhuis
  • Bouwjaar 2026
Oppervlakten
  • Woonoppervlakte 197 m2
Indeling
  • Aantal kamers 5 kamers
  • Aantal woonlagen 3 woonlagen
  • Isolatie Volledig geisoleerd
  • Verwarming Vloerverwarming gedeeltelijk
  • Hoofdtuin Zonneterras
  • Oppervlakte hoofdtuin 30 m2

Planning

Start verkoop 11 november 2025
Start bouw n.t.b.
Start oplevering n.t.b.

Hier kom
je te wonen

      Altijd als eerste op de hoogte

      Altijd als eerste op de hoogte van nieuwbouw, marktontwikkelingen én jouw favoriete projecten? Schrijf je in voor onze nieuwsbrief en maak een woonaccount aan om eenvoudig projecten te volgen en updates te ontvangen.

      Mijn woonaccount