Bouwnummer 9 B, Westerkanaaldijk 9B

Malden

€ 982.500,- v.o.n.
  • Beschikbaar

Ontdek het op jouw manier!

Omschrijving

De verkoop is gestart | Ontdek de combinatie van landelijk wonen en moderne luxe

Gelegen op royale percelen, op de grens van Gelderland, Limburg en Noord-Brabant, worden vier twee-onder-een-kapwoningen in landelijke stijl gerealiseerd. Malden is een groene en landelijke gemeente, pal ten zuiden van Nijmegen en grenzend aan zowel Brabant als Limburg. Gelegen nabij het water van het Maas-Waal kanaal, omgeven door bossen en recreatiegebieden, ben je met de auto in enkele minuten in het bruisende centrum van Nijmegen.

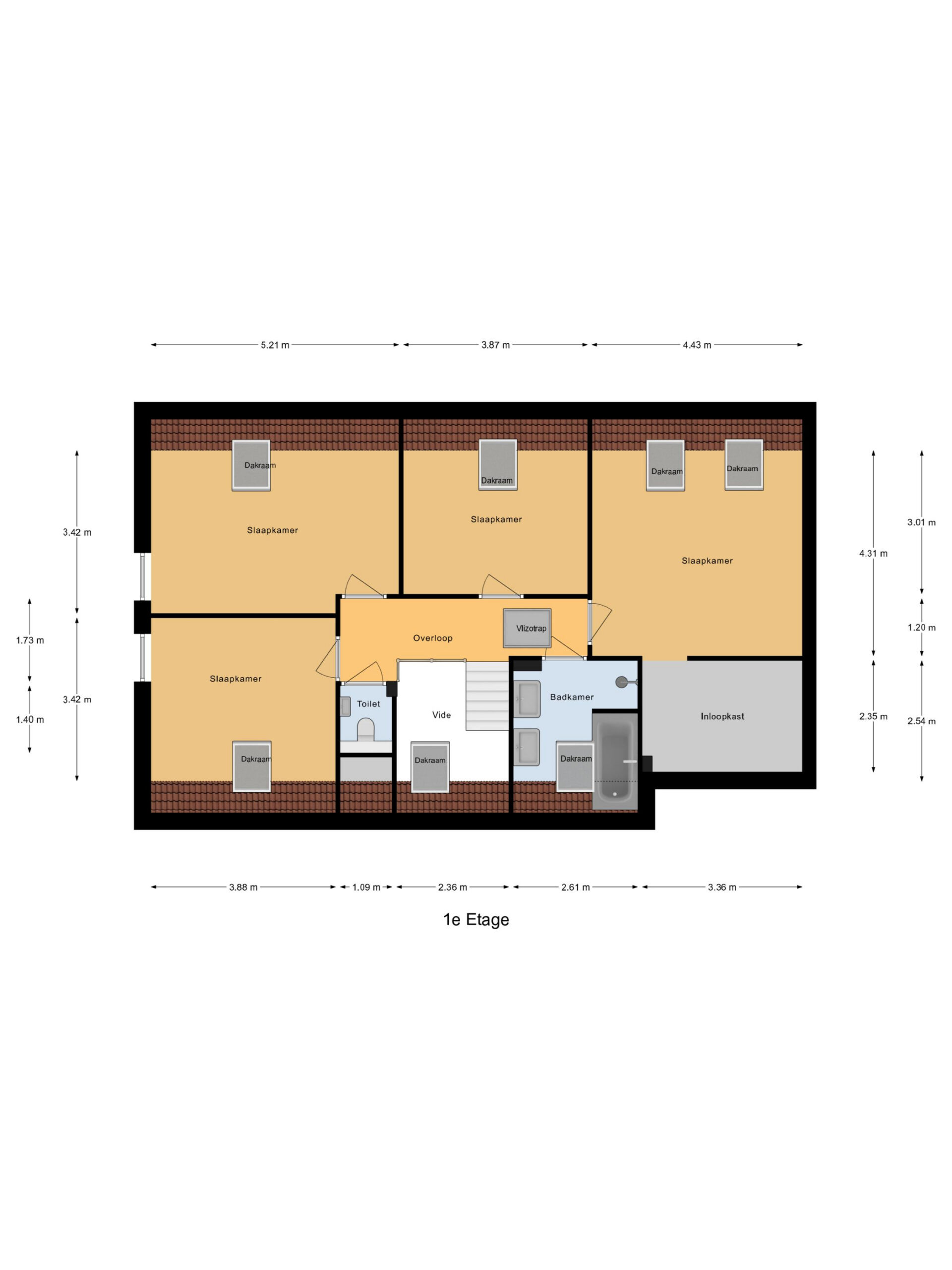
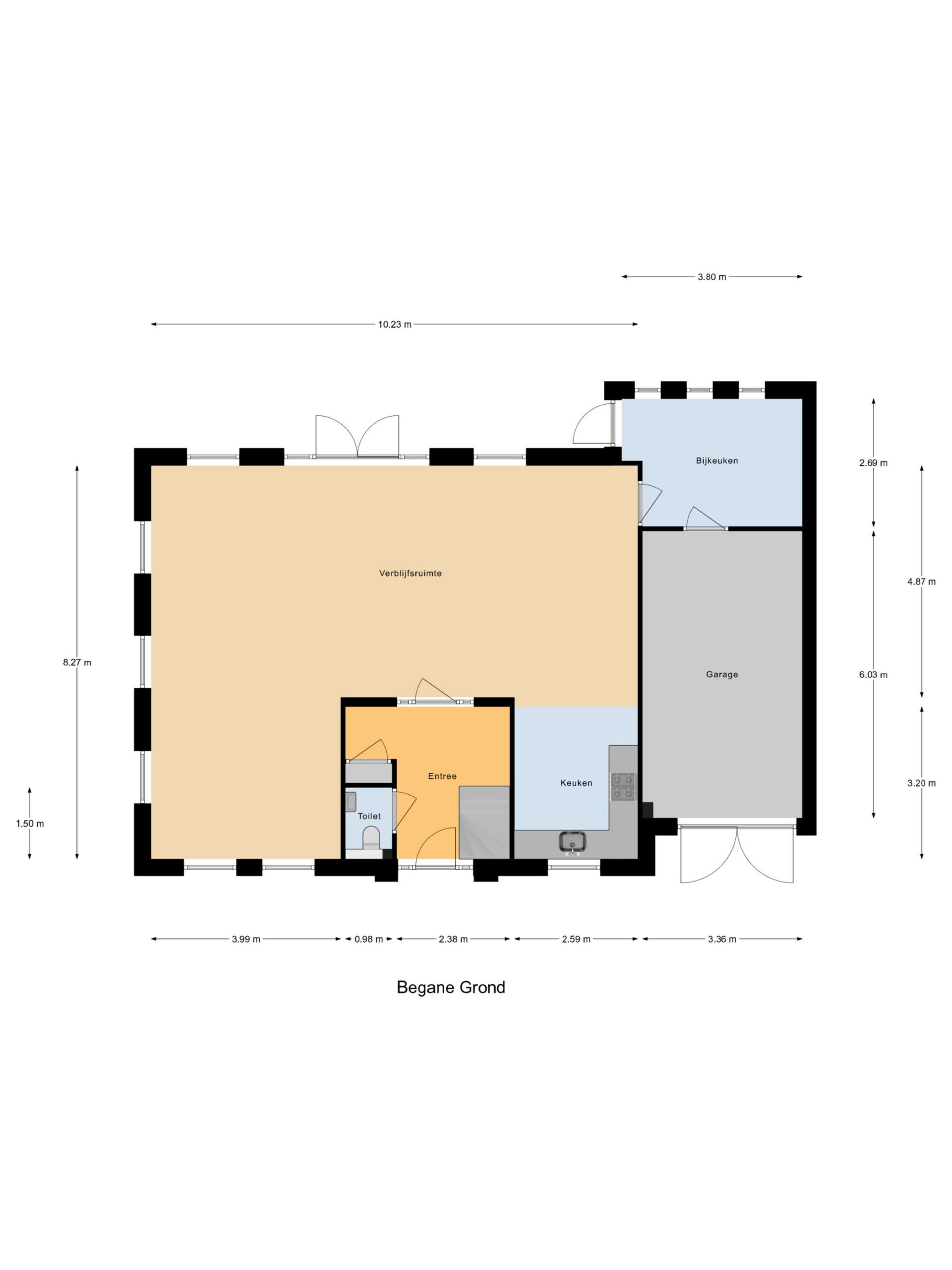
De woningen met karakteristieke luiken hebben een woonoppervlak van ca. 183 m² en zijn bereikbaar via de gezamenlijke oprijlaan. De voordeur biedt toegang tot de royale hal met vide. De L-vormige woonkamer is voorzien van veel raampartijen en openslaande tuindeuren, aan de voorzijde van de woning vind je de open keuken. De eerste verdieping is ingedeeld in vier slaapkamers, badkamer en een apart toilet. De master bedroom is voorzien van een inloopkast en de badkamer wordt voorzien van ligbad, douche en een dubbele wastafel. Via een vlizotrap bereik je de bergruimte.

De reservering van de woningen gebeurd op volgorde van binnenkomst van de aanmeldingen. Voor vragen of een reservering graag contact op nemen met Hans Janssen Makelaars. Bezichtigen is niet mogelijk, aangezien de woningen nog gerealiseerd moeten worden. In dezelfde wijk zijn echter vier identieke woningen reeds opgeleverd.

Kenmerken
Overdracht
  • Koopsom € 982.500,- v.o.n.
  • Status Beschikbaar
Bouw
  • Soort bouw Woonhuis
  • Bouwjaar 2026
Oppervlakten
  • Woonoppervlakte 183 m2
  • Overige inpandige ruimte 20 m2
Indeling
  • Aantal kamers 5 kamers
  • Aantal woonlagen 2 woonlagen
  • Voorzieningen Mechanische ventilatie
  • Isolatie Volledig geisoleerd
  • Verwarming Vloerverwarming gedeeltelijk, warmtepomp

Planning

Start verkoop 06 maart 2026
Start bouw 01 juli 2026
Start oplevering 06 maart 2026

Hier kom
je te wonen

      Altijd als eerste op de hoogte

      Altijd als eerste op de hoogte van nieuwbouw, marktontwikkelingen én jouw favoriete projecten? Schrijf je in voor onze nieuwsbrief en maak een woonaccount aan om eenvoudig projecten te volgen en updates te ontvangen.

      Mijn woonaccount