Bouwnummer 2, Molenveldlaan 5B

Nijmegen

€ 350.000,- v.o.n. Bezoek de projectwebsite
  • Beschikbaar

Ontdek het op jouw manier!

Omschrijving

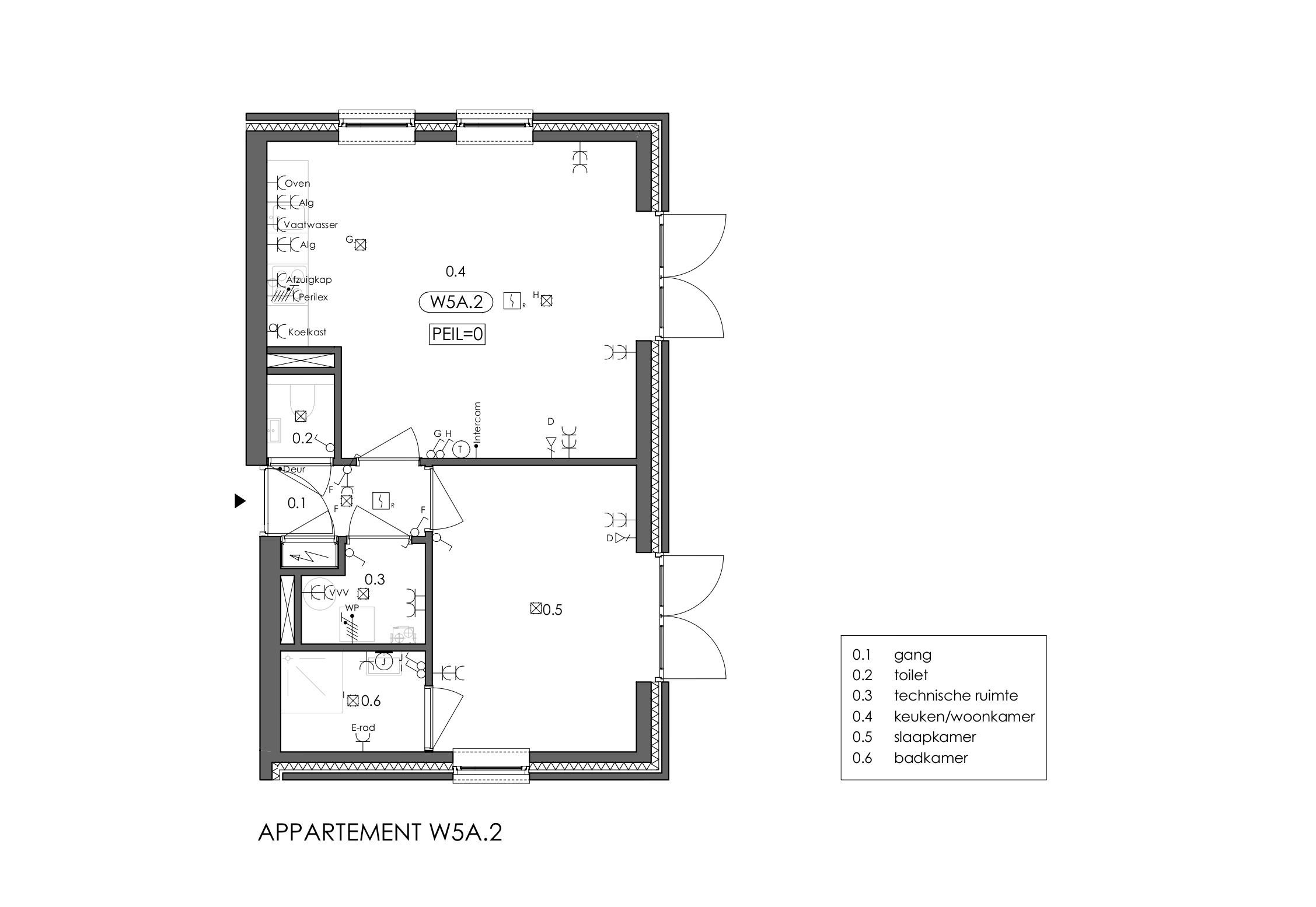
Aan de Molenveldlaan in Nijmegen-Oost wordt een kleinschalig nieuwbouwproject gerealiseerd. De compacte 2-kamerappartementen met een woonoppervlakte van circa 44 tot 48 m² zijn ontworpen voor comfortabel en efficiënt wonen. Het project is gericht op mensen die bewust kiezen voor kleiner wonen op een fantastische locatie. De appartementen zijn zeer geschikt voor starters en senioren.

Alle appartementen worden voorzien van keuken en sanitair, zijn gasloos en worden verwarmd via een warmtepomp. Vloerverwarming zorgt voor een gelijkmatige warmteverdeling. De appartementen zijn voorzien van een voorlopig energielabel A+++. De appartementen op de begane grond beschikken over een eigen buitenruimte, de bewoners van de zes andere appartementen kunnen gebruik maken van de gezamenlijke tuin.

De Molenveldlaan ligt in Nijmegen-Oost. Deze wijk staat bekend om haar prettige sfeer, centrale ligging en goede voorzieningen. Het is een van de meest gewilde woongebieden van de stad. De wijk combineert rust en groen met een centrale ligging. Het centrum van Nijmegen ligt op korte fietsafstand en voorzieningen zoals winkels, horeca en openbaar vervoer zijn dichtbij.

De beelden zijn een impressie van de diverse appartementen in het project, hier kunnen geen rechten aan ontleend worden.

Kenmerken
Overdracht
  • Koopsom € 350.000,- v.o.n.
  • Status Beschikbaar
Bouw
  • Soort bouw Appartement
  • Bouwjaar 2026
Oppervlakten
  • Woonoppervlakte 48 m2
Indeling
  • Aantal kamers 2 kamers
  • Aantal woonlagen 1 woonlagen
  • Voorzieningen Mechanische ventilatie, lift
  • Verwarming Vloerverwarming geheel, warmtepomp

Planning

Start verkoop 3 april 2026
Start bouw n.n.b.
Start oplevering n.n.b.

Hier kom
je te wonen

      Altijd als eerste op de hoogte

      Altijd als eerste op de hoogte van nieuwbouw, marktontwikkelingen én jouw favoriete projecten? Schrijf je in voor onze nieuwsbrief en maak een woonaccount aan om eenvoudig projecten te volgen en updates te ontvangen.

      Mijn woonaccount