Hertstraat 58

6531 ks Nijmegen

  • Beschikbaar
  • 121m²
  • 282m²
  • B

Ontdek het op jouw manier!

Omschrijving

In de geliefde wijk Hazenkamp staat deze royale tussenwoning uit 1933 met een uitzonderlijk diepe achtertuin en garage. Een huis dat gezinnen ruimte, rust en een groene woonomgeving biedt, terwijl het stadsleven van Nijmegen zich op korte afstand afspeelt. Met circa 121 m² woonoppervlak, drie (of vier) slaapkamers en een volwaardige zolderverdieping vormt dit een ideaal gezinshuis met karakter en comfort.

Hazenkamp is een van de meest geliefde woonwijken van Nijmegen, bekend om haar groene karakter en prettige leefomgeving. De Hertstraat is een sociale en levendige straat met buren die elkaar kennen en naar elkaar omkijken. Een prettige en gewilde straat, waarin het heerlijk wonen is.

Het Goffertpark ligt op een steenworp afstand en biedt ruimte voor ontspanning en recreatie. Scholen, sportverenigingen en dagelijkse voorzieningen zijn op loopafstand. De ziekenhuizen, Radboud Universiteit, HAN, het station en het gezellige stadscentrum zijn op korte fietsafstand en de uitvalswegen zijn eveneens uitstekend bereikbaar

Algemeen
• Woonoppervlakte: ca. 121 m²
• Perceeloppervlakte: 282 m²
• Bouwjaar: ca. 1933
• Energielabel B (geldig tot 14-12-2035)
• Aantal kamers: 5 (waarvan momenteel 3 slaapkamers)
• Diepe achtertuin met garage van ca. 30 m² en achterom
• Aanvaarding: in overleg

Ruimtelijk wonen met directe verbinding naar de tuin
De begane grond beschikt over een royale leefruimte met open keuken, waarin wonen, koken en samenzijn vloeiend in elkaar overlopen. Grote raampartijen zorgen voor prettig daglicht en versterken het contact met de tuin. De indeling sluit perfect aan op het dagelijks gezinsleven en biedt volop mogelijkheden om de leefruimte naar eigen wens in te richten met een zitkamer en een royale eetkameropstelling.

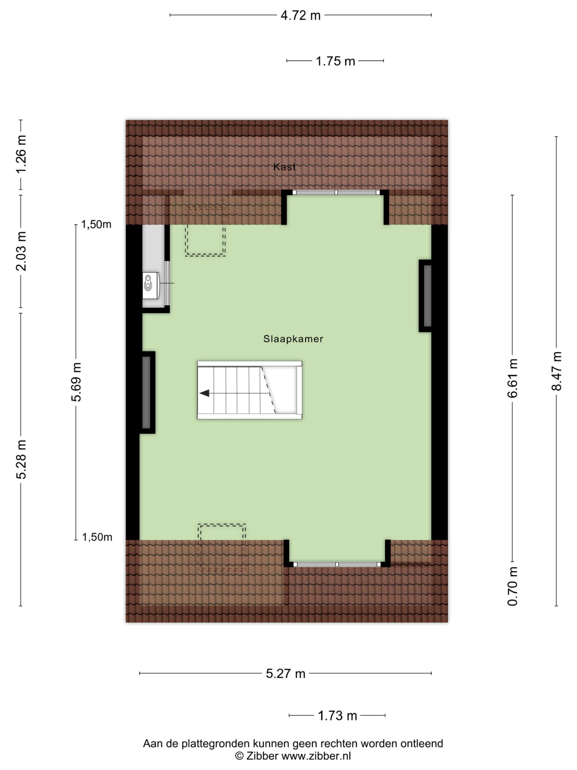
Verdiepingen met groeipotentie
Op de eerste verdieping bevinden zich drie (slaap)kamers, geschikt voor een gezin, werken aan huis of logees. De ruime zolderverdieping biedt extra mogelijkheden, bijvoorbeeld als vierde slaapkamer, speelruimte of werkplek, en maakt het huis toekomstbestendig.

Diepe achtertuin met garage
De achtertuin is uitzonderlijk diep en biedt volop privacy. Hier creëer je moeiteloos meerdere terrassen, speelruimte voor kinderen of een groene oase midden in de stad. De vrijstaande garage van circa 30 m² en de achterom maken de tuin extra functioneel en comfortabel in gebruik.

Bijzonderheden
• Royale tussenwoning in de populaire wijk Hazenkamp
• Ruime woonkamer met open keuken en optimaal tuincontact
• Drie slaapkamers en een grote zolderverdieping
• Heerlijke diepe achtertuin met veel privacy
• Garage van ca. 30 m² en achterom
• Groene woonomgeving nabij het Goffertpark
• Volop ruimte voor een gezin
• Dakpannen zijn in 2025 vervangen en er is dakisolatie aangebracht
• Goede bereikbaarheid van stedelijke voorzieningen

Hertstraat 58 is een huis voor gezinnen die ruimte, groen en een centrale ligging weten te waarderen. Wij nodigen je graag uit voor een bezichtiging om de sfeer en mogelijkheden zelf te ervaren.

Kenmerken
Overdracht
  • Vraagprijs € 695.000,- k.k.
  • Status Beschikbaar
Bouw
  • Soort bouw Woonhuis
  • Woningtype Tussenwoning
  • Bouwjaar 1933
  • Soort dak Zadeldak
Oppervlakten
  • Woonoppervlakte 121 m2
  • Perceeloppervlakte 282 m2
  • Externe bergruimte 30 m2
  • Overige inpandige ruimte 9 m2
Indeling
  • Aantal kamers 5 kamers
  • Aantal badkamers 1
  • Aantal woonlagen 4 woonlagen
  • Voorzieningen Dakraam, zonnepanelen
  • Energielabel B
  • Isolatie Dakisolatie, muurisolatie, grotendeels dubbelglas
  • Verwarming Cv ketel
  • Warm water Cv ketel
  • Cv-ketel Gas
  • Kadastergemeente Hatert
  • Eigendomssituatie Volle eigendom
  • Hoofdtuin Achtertuin
  • Oppervlakte hoofdtuin 165 m2
  • Ligging hoofdtuin Noord
Voorzieningen
  • Parkeerfaciliteiten Openbaar parkeren
  • Garage Vrijstaand steen

Hier kom
je te wonen

      Kom eens bij ons langs

      Of je nu je huis door ons wil laten verkopen, een aankoopmakelaar zoekt of financieel advies nodig hebt.

      Neem contact met ons op