St. Agnetenweg 110

6545 aw Nijmegen

  • Beschikbaar
  • 157m²
  • 646m²
  • C

Ontdek het op jouw manier!

Omschrijving

Vrijstaande woning onder architectuur gebouwd op een royaal perceel in een fijne woonomgeving!

Ben je op zoek naar een vrijstaande woning met een zeer ruime kavel, veel privacy, een fraaie lichtinval én volop mogelijkheden om het geheel naar jouw eigen smaak te moderniseren?
St. Agnetenweg 110 in Nijmegen biedt precies dát. Deze onder architectuur gebouwde woning (bouwjaar 1981) beschikt over een heerlijke leefruimte met vide, een royale tuin rondom, een serre met uitzicht op het groen, drie ruime slaapkamers, ruime bijkeuken én parkeren op eigen terrein onder de carport. Met een perceel van maar liefst 646 m² en een woonoppervlak van 157 m² is dit een ideale gezinswoning met veel toekomstpotentie.

De woning is altijd met zorg bewoond door de eerste eigenaren en bevindt zich in een nette maar enigszins gedateerde staat, de perfecte basis voor wie hedendaags wooncomfort wil combineren met deze unieke indeling en karaktervolle architectuur. Benieuwd naar de mogelijkheden? Lees snel verder!

Wonen in een fijne en rustige woonwijk
De woning is gelegen in een vriendelijke woonwijk in Nijmegen. Voorzieningen zoals winkels, scholen, openbaar vervoer en uitvalswegen zijn in de directe omgeving te vinden. De royale tuin biedt veel privacy, meerdere zitplekken en is fraai aangelegd. Zowel binnen als buiten is dit een plek waar je heerlijk tot rust komt.

Highlights
• Onder architectuur gebouwd, met een fraaie ruimtelijke indeling en vide
• Royale woonoppervlakte van ca. 157 m² op een perceel van 646 m²
• Aangebouwde serre (1985) met uitzicht op de fraaie tuin
• Drie ruime slaapkamers en een complete badkamer
• Inpandige berging/bijkeuken
• Bergvliering bereikbaar via vlizotrap
• Verzorgde tuin rondom met achterom
• Balkon aan ouderslaapkamer
• Praktische carport met lichtkoepel en parkeren op eigen terrein
• Muurisolatie, dubbel glas en energielabel C (geldig tot 21-11-2035)
• Cv-ketel Intergas 2024
• Mogelijkheid om de woning volledig naar hedendaagse wensen te moderniseren

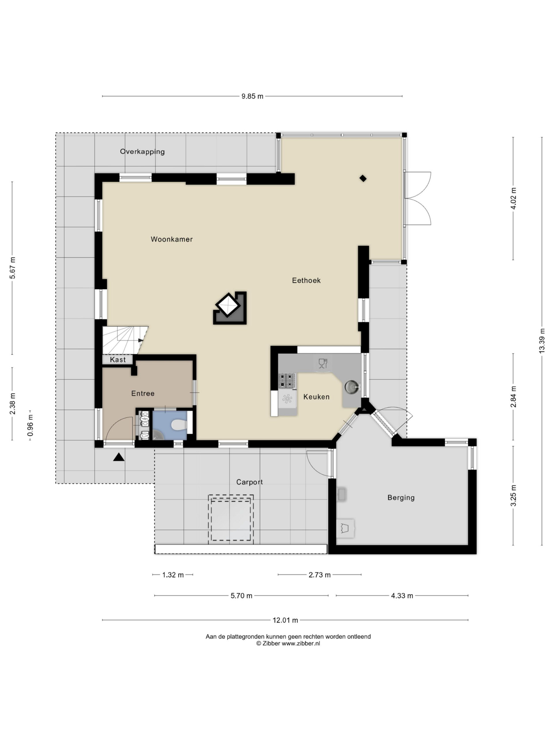
Indeling van de woning

Begane grond
Via de entree kom je binnen in de hal met toegang tot het toilet en de living. De woonkamer valt direct op door de fraaie vide, grote raampartijen en de prettige lichtinval. De ruimte voelt open en ruimtelijk, een duidelijk kenmerk van de architectuur uit deze periode. De woonkamer valt direct op door de fraaie vide, grote raampartijen en de prettige lichtinval.
De keuken bevindt zich in de oorspronkelijke staat (bouwjaar 1981) en biedt volop mogelijkheden voor een moderne update. Aansluitend vind je de praktische bijkeuken/inpandige berging, voorzien van verwarming, water en elektra. Deze ruimte is eventueel bij de keuken te betrekken voor het realiseren van een royale woonkeuken, of te transformeren tot een extra slaapkamer.

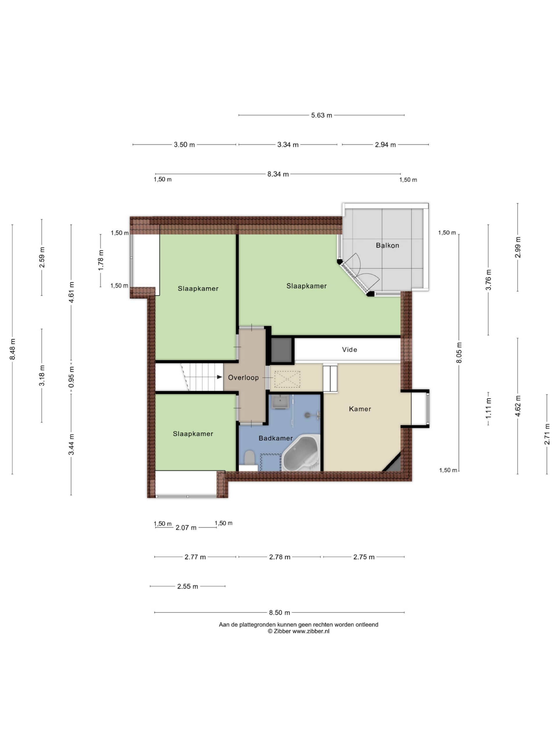
Eerste verdieping
De overloop biedt toegang tot drie ruime slaapkamers. De masterbedroom beschikt over een balkon, dat eventueel bij de kamer getrokken kan worden voor extra woonoppervlak. Dankzij het aanwezige dakraam is de vide een lichte ruimte. Momenteel wordt deze gebruikt als werkkamer, maar het creëren van een vierde slaapkamer behoort hier zeker tot de mogelijkheden. De badkamer is voorzien van een ligbad, inloopdouche, toilet, vloerverwarming, wastafel en wastafelmeubel. Dankzij de raampartijen geniet je hier van natuurlijke lichtinval en goede ventilatie.

Bergvliering
Via de vlizotrap is de bergvliering te bereiken. Deze ruimte herbergt de cv-installatie en is uitermate geschikt als extra bergruimte.

Buiten
De tuin rondom is fraai aangelegd en biedt diverse plekken om van de zon of schaduw te genieten. Dankzij de ligging van de woning en het volwassen groen geniet je van optimale privacy. De carport met lichtkoepel bevindt zich aan de voorzijde en biedt ruimte om op eigen terrein te parkeren.

Belangrijke kenmerken
• Woonoppervlakte: ca. 157 m²
• Bouwjaar: ca. 1981
• Dakvorm: Tentdak
• Energielabel: C (geldig t/m 21-11-2035)
• Cv-ketel: intergas, 2024, eigendom

Zie jij jezelf hier al wonen?
St. Agnetenweg 110 is een unieke, vrijstaande woning met een fantastische lichtinval en veel ruimte binnen en buiten. Gelegen op een ruim perceel in een prettige woonwijk en met fraaie architectonische kenmerken, is dit een woning met toekomst én karakter. In de koopovereenkomst zal een ouderdomsclausule en een asbestclausule worden opgenomen.

Plan snel een bezichtiging en ontdek of dit jouw nieuwe thuis wordt!

Kenmerken
Overdracht
  • Vraagprijs € 625.000,- k.k.
  • Status Beschikbaar
Bouw
  • Soort bouw Woonhuis
  • Woningtype Vrijstaande woning
  • Bouwjaar 1981
  • Soort dak Tentdak
Oppervlakten
  • Woonoppervlakte 157 m2
  • Perceeloppervlakte 646 m2
  • Externe bergruimte 6 m2
  • Overige inpandige ruimte 6 m2
Indeling
  • Aantal kamers 4 kamers
  • Aantal badkamers 1
  • Aantal woonlagen 3 woonlagen
  • Voorzieningen Rookkanaal, glasvezel kabel
  • Energielabel C
  • Isolatie Muurisolatie, dubbel glas
  • Verwarming Cv ketel
  • Warm water Cv ketel
  • Cv-ketel Gas
  • Kadastergemeente Neerbosch
  • Eigendomssituatie Volle eigendom
  • Hoofdtuin Tuin rondom
Voorzieningen
  • Parkeerfaciliteiten Op eigen terrein
  • Garage Carport, parkeerplaats, geen garage

Hier kom
je te wonen

      Kom eens bij ons langs

      Of je nu je huis door ons wil laten verkopen, een aankoopmakelaar zoekt of financieel advies nodig hebt.

      Neem contact met ons op