Binnenvaart 14

6642 cv Beuningen gld

  • In aanmelding
  • 179m²
  • 414m²
  • A

Ontdek het op jouw manier!

Omschrijving

Een toplocatie die je hart steelt: Binnenvaart 14 in Beuningen. Aan het vaarwater, met vrijheid aan de achterzijde en het buitenleven letterlijk aan je tuinrand.

Deze ruime, uitgebouwde twee-onder-een-kapwoning combineert een open, lichte sfeer met een tuin die je elke dag naar buiten trekt. Met 14 zonnepanelen en energielabel A woon je hier comfortabel én toekomstgericht. De woning is bovendien netjes onderhouden, met een indeling die meebeweegt met gezinsleven, thuiswerken en logees. Water- en natuurliefhebbers zitten hier helemaal goed: je zit zó bij de Beuningse Plas, en vanaf het vaarwater vaar je met je eigen boot de plas rond.

Kenmerken
– Woonoppervlakte: 179 m²
– Perceeloppervlakte: 414 m²
– Inhoud: 599 m³
– Gebouwgebonden buitenruimte: 21 m2
– Bouwjaar: 1998
– Energielabel: A
– 6 kamers, 4 slaapkamers
– 14 zonnepanelen

Indeling

Begane grond: stap binnen via de ruime hal met meterkast en ervaar meteen het fijne gevoel van licht en ruimte. De woonkamer met een gezellige gashaard nodigt uit om te leven: grote raampartijen pakken het tuinzicht mee en de indeling laat je moeiteloos schakelen tussen ontspannen en tafelen.
In 2008 is de woning aan de achterzijde uitgebouwd, met daarin de keuken. Die keuken (2022) pakt het modern en praktisch aan, met onder andere een klimaatkast, keramische kookplaat met geïntegreerde afzuiging, vaatwasser, koelkast, separate vrieskast, combimagnetron, Quooker en stoomoven. Extra prettig: voldoende stopcontacten én USB-poorten, precies wat je in een druk huishouden (of tijdens het koken met vrienden) nodig hebt.
Via een aparte hal met toilet en bergruimte onder de trap loop je door naar de werkkamer. Dit was voorheen de garage: nu een rustige, lichte plek om te werken of te studeren. De begane grondvloer is afgewerkt met keramische tegels; de vloerverwarming loopt door tot in de uitbouw. Plafonds en wanden zijn gestuct en airconditioning zorgt voor extra comfort.

Eerste verdieping: op de eerste verdieping liggen twee ruime slaapkamers, allebei licht en comfortabel. De master bedroom beschikt over airconditioning. De tweede kamer doet nu dienst als kleedkamer, maar werkt net zo goed als slaapkamer.
De badkamer (2017) is luxe uitgevoerd met een wastafelmeubel, vrij hangend toilet en inloopdouche, inclusief vloerverwarming. De kamers zijn afgewerkt met een laminaatvloer.

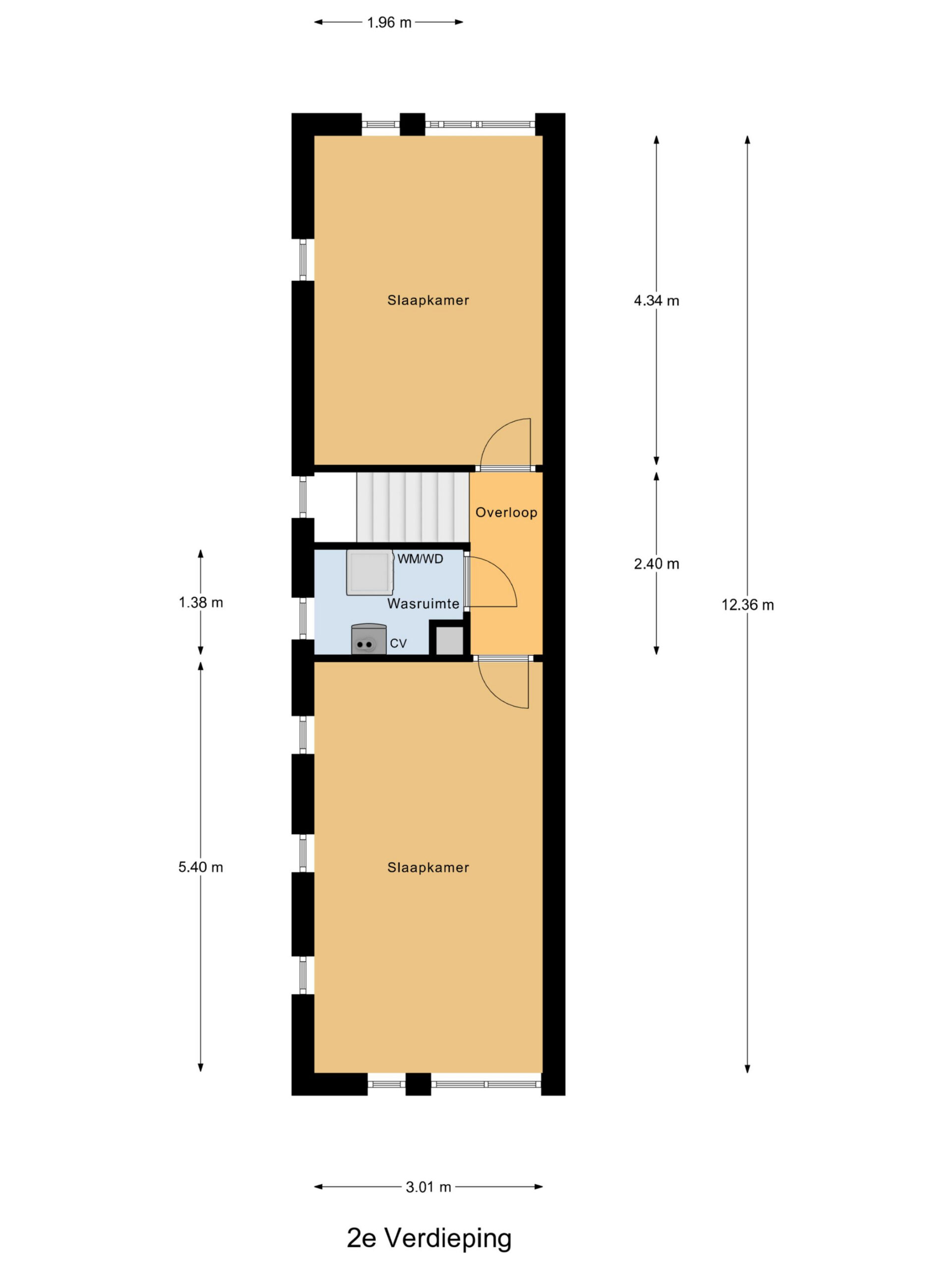
Tweede verdieping: de tweede verdieping voegt nog eens twee grote slaapkamers toe: ideaal voor een groter gezin, logees of een extra werk-/hobbyruimte. Op deze verdieping vind je ook de wasruimte met cv-opstelling: Vaillant Ecotec+ combiketel (2013, eigendom). Beide kamers hebben airconditioning (ook om te verwarmen) en de hele verdieping is afgewerkt met laminaat.

Buiten
De tuin is een absolute troef. Je zit hier aan het water, met rust, groen en privacy als dagelijks decor. Het huis ligt aan het vaarwater. Vanuit hier kun je met je eigen boot de hele Beuningse Pas doorvaren. De oprit biedt parkeerruimte op eigen terrein. Er is een oplaadpunt voor een elektrische auto. De achtertuin ligt op het westen: middag- en avondzon pak je hier volop mee. De veranda met vier doorkijkvensters maakt het buitenleven extra lang: na het eten nog even zitten, ook als het afkoelt. De tuin is circa 9 jaar geleden vernieuwd en aan het water zijn twee vlonders aangelegd. De boot blijft achter! De treurwilg zet de sfeer neer zonder dat je er moeite voor hoeft te doen. Handig: de achtertuin bereik je ook buitenom via een afsluitbaar pad met poort.
Voor een totaalbeeld zijn tevens enkele zomerse foto’s van de verkoper toegevoegd.

Omgeving
Beuningen woont makkelijk! Voorzieningen liggen dichtbij (scholen, winkels, OV) en je zit snel op de uitvalswegen. Nijmegen bereik je in circa 10 autominuten. Voor ontspanning hoef je niet ver: de Beuningse Plas ligt om de hoek voor wandelen, watersport en zomeravonden aan het water.

Dit is zo’n huis waar je na één rondje al plannen begint te maken: waar komt de eettafel, waar leg je de boot aan, en waar drink je straks je koffie in de zon? Wil je zien hoe het voelt als wonen, water en ruimte écht samenkomen? Maak een afspraak en kom voelen of dit jouw plek is.

Neem contact op voor een bezichtiging en ervaar Binnenvaart 14 zelf.

Kenmerken
Overdracht
  • Vraagprijs € 695.000,- k.k.
  • Status In aanmelding
Bouw
  • Soort bouw Woonhuis
  • Woningtype Twee onder een kapwoning
  • Bouwjaar 1998
  • Soort dak Samengesteld dak
Oppervlakten
  • Woonoppervlakte 179 m2
  • Perceeloppervlakte 414 m2
Indeling
  • Aantal kamers 6 kamers
  • Aantal badkamers 1
  • Aantal woonlagen 3 woonlagen
  • Voorzieningen Mechanische ventilatie, airconditioning, rookkanaal, schuifpui, zonnepanelen
  • Energielabel A
  • Isolatie Dakisolatie, muurisolatie, vloerisolatie
  • Verwarming Cv ketel, gashaard
  • Warm water Cv ketel
  • Cv-ketel Gas
  • Kadastergemeente Beuningen
  • Eigendomssituatie Volle eigendom
  • Hoofdtuin Achtertuin
  • Oppervlakte hoofdtuin 204 m2
  • Ligging hoofdtuin West
Voorzieningen
  • Parkeerfaciliteiten Op eigen terrein
  • Garage Geen garage

Hier kom
je te wonen

      Kom eens bij ons langs

      Of je nu je huis door ons wil laten verkopen, een aankoopmakelaar zoekt of financieel advies nodig hebt.

      Neem contact met ons op