van Heemstraweg 64

6658 kj Beneden-leeuwen

  • Verkocht onder voorbehoud
  • 162m²
  • 483m²
  • A

Ontdek het op jouw manier!

Omschrijving

Een woning waar ruimte, licht en comfort samenkomen. Waar alles klopt. En waar je zó kunt intrekken. Aan de Van Heemstraweg 64 woon je in een ruim opgezette, energiezuinige twee-onder-een-kapwoning die met zorg is bewoond en uitstekend is afgewerkt. Een huis dat niet alleen praktisch is, maar vooral heel prettig aanvoelt. Binnen én buiten.

Ligging
Beneden-Leeuwen staat bekend om het hoge voorzieningenniveau. Supermarkten, winkels, scholen, sportverenigingen en medische voorzieningen liggen allemaal binnen handbereik. Tegelijkertijd woon je hier dicht bij de Waal, met volop mogelijkheden om te wandelen, fietsen en ontspannen in de natuur. De bereikbaarheid richting Nijmegen en Utrecht is uitstekend. Een fijne woonomgeving waar rust en gemak elkaar versterken.

Kenmerken
– Woonoppervlak: 162 m²
– Perceeloppervlak: 567 m²
– Gebouwgebonden buitenruimte: 12 m²
– Externe bergruimte: 11 m²
– Bouwjaar: 1994
– Energielabel: A

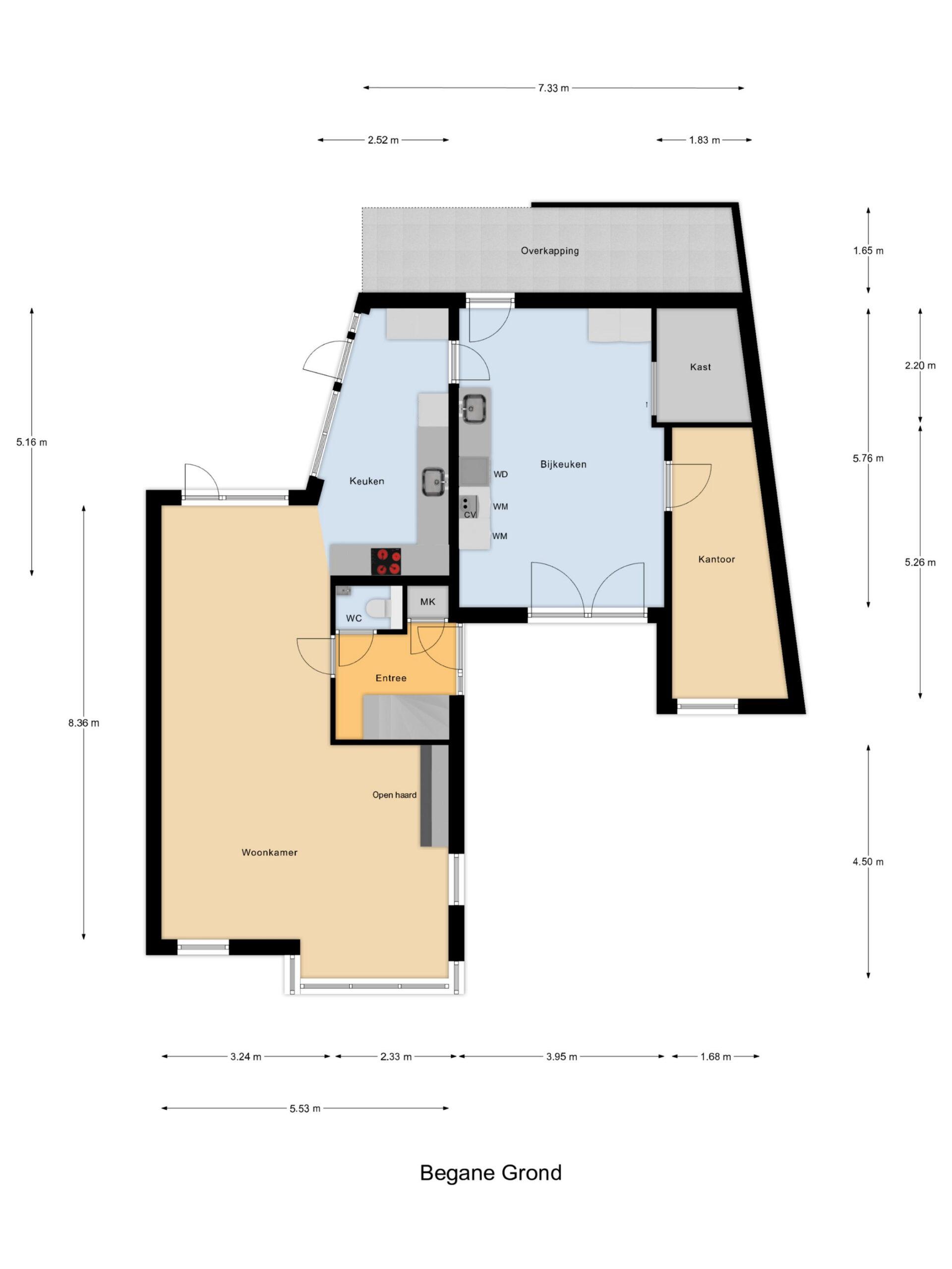
Indeling

Begane grond
Je komt binnen in een verzorgde hal met toiletruimte voorzien van een vrij hangend toilet, meterkast en trapopgang. Vanuit hier loop je door naar de ruime woonkamer, waar de erker zorgt voor een mooie lichtinval en de gashaard bijdraagt aan de sfeer. De L-vormige keuken (2016) ligt aan de achterzijde en is compleet uitgevoerd met inductiekookplaat, afzuigkap, oven (2024), vaatwasser (2021) en koelkast. Koken doe je hier met overzicht en comfort, met direct contact met de tuin. Via de tuindeur loopt binnen moeiteloos over in buiten.

Aansluitend bevindt zich de grote bijkeuken, een multifunctionele ruimte. Deze is ontstaan door de verbouwing van de oorspronkelijke garage. Een praktische en fraai afgewerkte ruimte met vloerverwarming, inbouwkasten en aansluitingen voor wasmachine en droger. Deze voormalige garage is aan de zijkant uitgebouwd (2008) en ingericht als een royale werkruimte, waar met gemak twee werkplekken zijn gerealiseerd. Ideaal voor thuiswerken, studeren of een combinatie van beide, zonder in te leveren op wooncomfort.

Eerste verdieping
Op de eerste verdieping bevinden zich twee ruime slaapkamers. De slaapkamer aan de achterzijde is voorzien van airconditioning (2018). De moderne badkamer (2017) is compleet uitgevoerd met inloopdouche, vrij hangend toilet en een wastafelmeubel met dubbele wastafel. Alles is strak afgewerkt en praktisch ingericht.

Tweede verdieping
Via een vaste trap bereik je de tweede verdieping. Hier vind je een volwaardige slaapkamer met een dakraam en airconditioning (2021). Een fijne, lichte ruimte die ook uitstekend geschikt is als logeerkamer, hobbyruimte of extra werkplek. Verder hier veel bergruimte.

Tuin
De woning beschikt over een ruime voortuin, grote oprit met meer dan voldoende parkeergelegenheid. De achtertuin is verzorgd aangelegd, biedt veel privacy en kent weinig inkijk. Een absolute eyecatcher is de sfeervolle overkapping (2021) met glazen schuifpanelen. Hierdoor voelt deze ruimte als een tweede woonkamer en kun je hier het hele jaar door comfortabel buiten zitten. Verder is er een berging aanwezig voor fietsen en tuinspullen.

Bijzonderheden
– Zeer nette en verzorgde afwerking, direct te betrekken
– Garage verbouwd en uitgebouwd tot bijkeuken en royale werkruimte
– Geschikt voor werken aan huis met twee volwaardige werkplekken
– Overkapping met glazen schuifpanelen, vier seizoenen buitenleven
– 20 zonnepanelen (10 aan de voorzijde uit 2018/2019 en 10 aan de achterzijde uit 2023) en airconditioning (hiermee kun je verwarmen als ook koelen) aanwezig
– Voorzien van rolluiken en een screen
– Rustige ligging met hoog voorzieningenniveau
– Schilderwerk buitenzijde: 2017
– Plat dak garage is vernieuwd in 2008 (EPDM)
– Alle wanden op de begane grond en eerste verdieping zijn gestuct.

Een huis dat klopt in indeling, afwerking én gevoel. Van Heemstraweg 64 biedt ruimte om te wonen, te werken en te genieten – zonder concessies. Dit is zo’n woning die je eigenlijk van binnen moet ervaren. Maak een afspraak en ontdek zelf hoe compleet dit huis is.

Kenmerken
Overdracht
  • Vraagprijs € 585.000,- k.k.
  • Status Verkocht onder voorbehoud
Bouw
  • Soort bouw Woonhuis
  • Woningtype Twee onder een kapwoning
  • Bouwjaar 1994
  • Soort dak Zadeldak
Oppervlakten
  • Woonoppervlakte 162 m2
  • Perceeloppervlakte 483 m2
  • Externe bergruimte 11 m2
Indeling
  • Aantal kamers 5 kamers
  • Aantal badkamers 1
  • Aantal woonlagen 3 woonlagen
  • Voorzieningen Mechanische ventilatie, rolluiken, buitenzonwering, airconditioning, rookkanaal, dakraam, glasvezel kabel, zonnepanelen
  • Energielabel A
  • Isolatie Dakisolatie, muurisolatie, vloerisolatie, dubbel glas
  • Verwarming Cv ketel
  • Warm water Cv ketel
  • Cv-ketel Gas
  • Kadastergemeente Wamel
  • Eigendomssituatie Volle eigendom
  • Hoofdtuin Achtertuin
  • Oppervlakte hoofdtuin 175 m2
  • Ligging hoofdtuin Noord
Voorzieningen
  • Parkeerfaciliteiten Op eigen terrein
  • Garage Geen garage

Hier kom
je te wonen

      Kom eens bij ons langs

      Of je nu je huis door ons wil laten verkopen, een aankoopmakelaar zoekt of financieel advies nodig hebt.

      Neem contact met ons op