Voorstadslaan 14

6541 sr Nijmegen

  • Beschikbaar
  • 78m²
  • D

Ontdek het op jouw manier!

Omschrijving

Aan de Voorstadslaan 14 ligt dit karakteristieke bovenappartement in een pand uit 1932. Een ideaal startersappartement met verrassend veel ruimte en volop mogelijkheden om het geheel naar eigen wens te moderniseren en in te delen. De woning verkeert grotendeels nog in oudere staat, maar biedt juist daardoor interessante kansen. Zo bestaat de mogelijkheid om op de eerste woonlaag een extra slaap of werkkamer te realiseren, wat het appartement uitermate geschikt maakt voor bijvoorbeeld thuiswerken. Een woning met een goede basis, waar na aanpassing een comfortabel en eigentijds stadsappartement kan ontstaan op een uitstekende locatie.

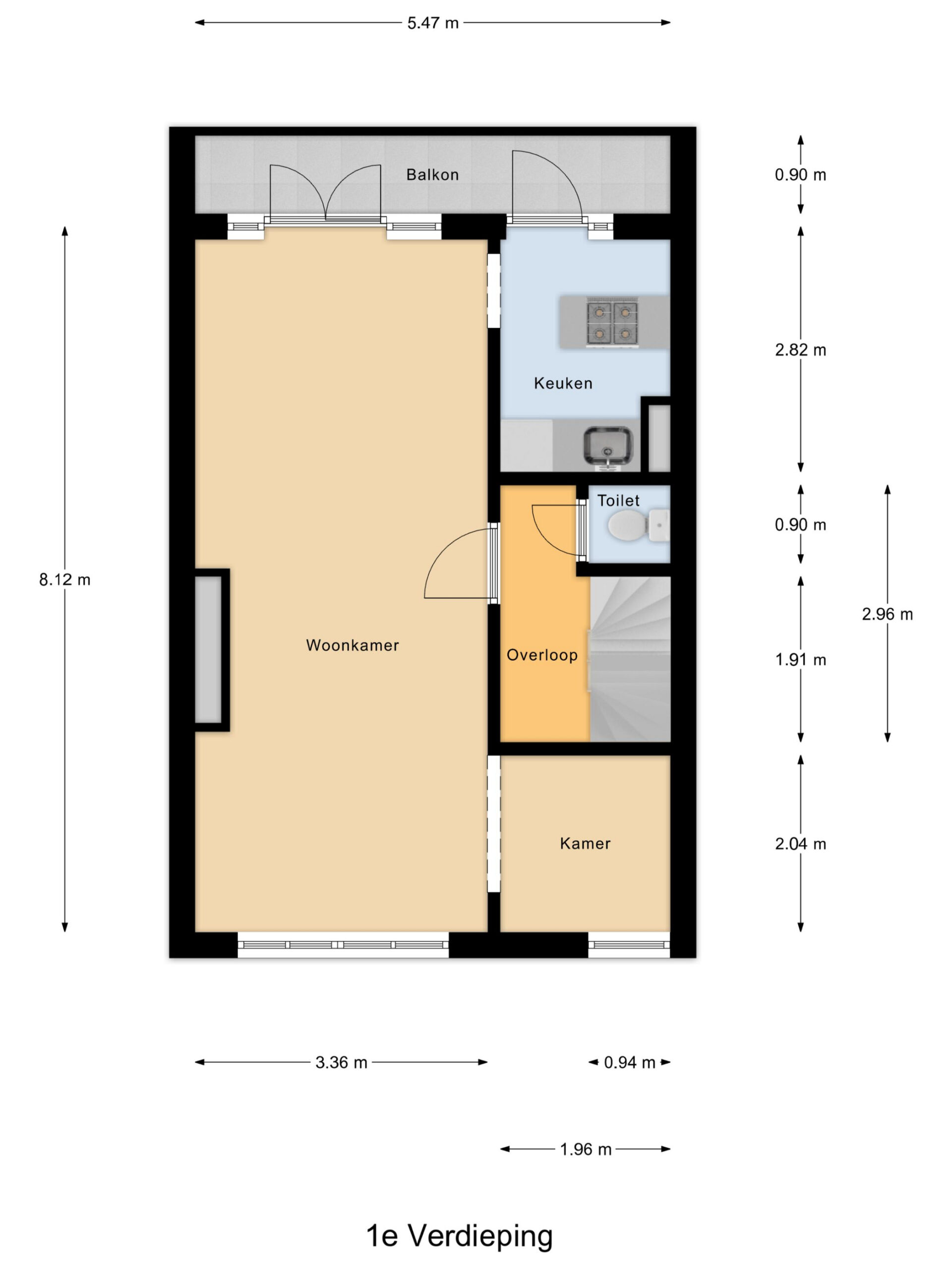
De woonkamer is met circa 44 m² opvallend royaal en vormt het centrale punt van de woning. Dankzij de grote raampartijen is sprake van een prettige lichtinval en voldoende ruimte voor zowel een zit als eethoek. Vanuit het appartement is het balkon bereikbaar, gelegen aan de achterzijde.

Het appartement heeft een woonoppervlakte van circa 78 m² en is verdeeld over twee woonlagen met in totaal drie kamers, waaronder twee slaapkamers. De cv ketel is geplaatst in 2018 en in 2023 is de beglazing vernieuwd.

De ligging is bijzonder centraal. Het stadscentrum van Nijmegen, het station, winkels en overige voorzieningen bevinden zich op korte afstand. Een prettige woonomgeving met alle dagelijkse faciliteiten binnen handbereik. Parkeren gebeurt middels een parkeervergunning.

De bijdrage aan de Vereniging van Eigenaars bedraagt € 100,- per maand.

Kenmerken:
• Vraagprijs € 350.000,- k.k.
• Woonoppervlakte circa 78 m²
• Bouwjaar 1932
• Ruime woonkamer van circa 44 m²
• Twee slaapkamers
• Balkon aanwezig
• Cv ketel Remeha uit 2018 (eigendom)
• Nieuwe beglazing geplaatst in 2023
• Energielabel D geldig tot 10-02-2036
• Servicekosten € 100,- per maand
• Appartement met veel potentie op centrale locatie
• Aanvaarding in overleg

Een appartement met karakter, ruimte en uitstekende ligging, dat zich bij uitstek leent voor kopers die niet terugschrikken voor modernisering en hier hun eigen woning van willen maken.

Kenmerken
Overdracht
  • Vraagprijs € 350.000,- k.k.
  • Status Beschikbaar
Bouw
  • Soort bouw Appartement
  • Bouwjaar 1932
  • Soort dak Zadeldak
Oppervlakten
  • Woonoppervlakte 78 m2
Indeling
  • Aantal kamers 3 kamers
  • Aantal badkamers 1
  • Aantal woonlagen 2 woonlagen
  • Energielabel D
  • Isolatie Dubbel glas
  • Verwarming Cv ketel
  • Warm water Cv ketel
  • Cv-ketel Gas
  • Kadastergemeente Neerbosch
  • Eigendomssituatie Volle eigendom
Voorzieningen
  • Parkeerfaciliteiten Parkeervergunningen
  • Garage Geen garage

Hier kom
je te wonen

      Kom eens bij ons langs

      Of je nu je huis door ons wil laten verkopen, een aankoopmakelaar zoekt of financieel advies nodig hebt.

      Neem contact met ons op