Heeskesacker 2048

6546 jr Nijmegen

  • Beschikbaar
  • 114m²
  • 218m²
  • A

Ontdek het op jouw manier!

Omschrijving

Heeskesacker 2048 in Nijmegen, een woning die ruimte en comfort combineert met energiezuinig wonen! Deze woning heeft een royale leefruimte van maar liefst 114m², verdeelt over vier kamers, en geeft je de vrijheid om wonen, werken en ontspannen moeiteloos te combineren. 

Locatie
De locatie draagt bij aan het geheel. In de groene en rustige wijk ’t Acker (Lindenholt) woon je kindvriendelijk en overzichtelijk, met scholen, winkels en sportvoorzieningen binnen handbereik. Je fietst in enkele minuten naar het centrum van Nijmegen en bereikt uitvalswegen en openbaar vervoer zonder moeite. Hier combineer je dagelijkse rust met stedelijke dynamiek. 

Kenmerken:
– Woonoppervlak: ca. 114 m²;
– Perceeloppervlak: ca. 218 m²;
– Bouwjaar: ca. 1982;
– Energielabel: A (geldig tot 13-03-2036);
– Aanvaarding: in overleg;

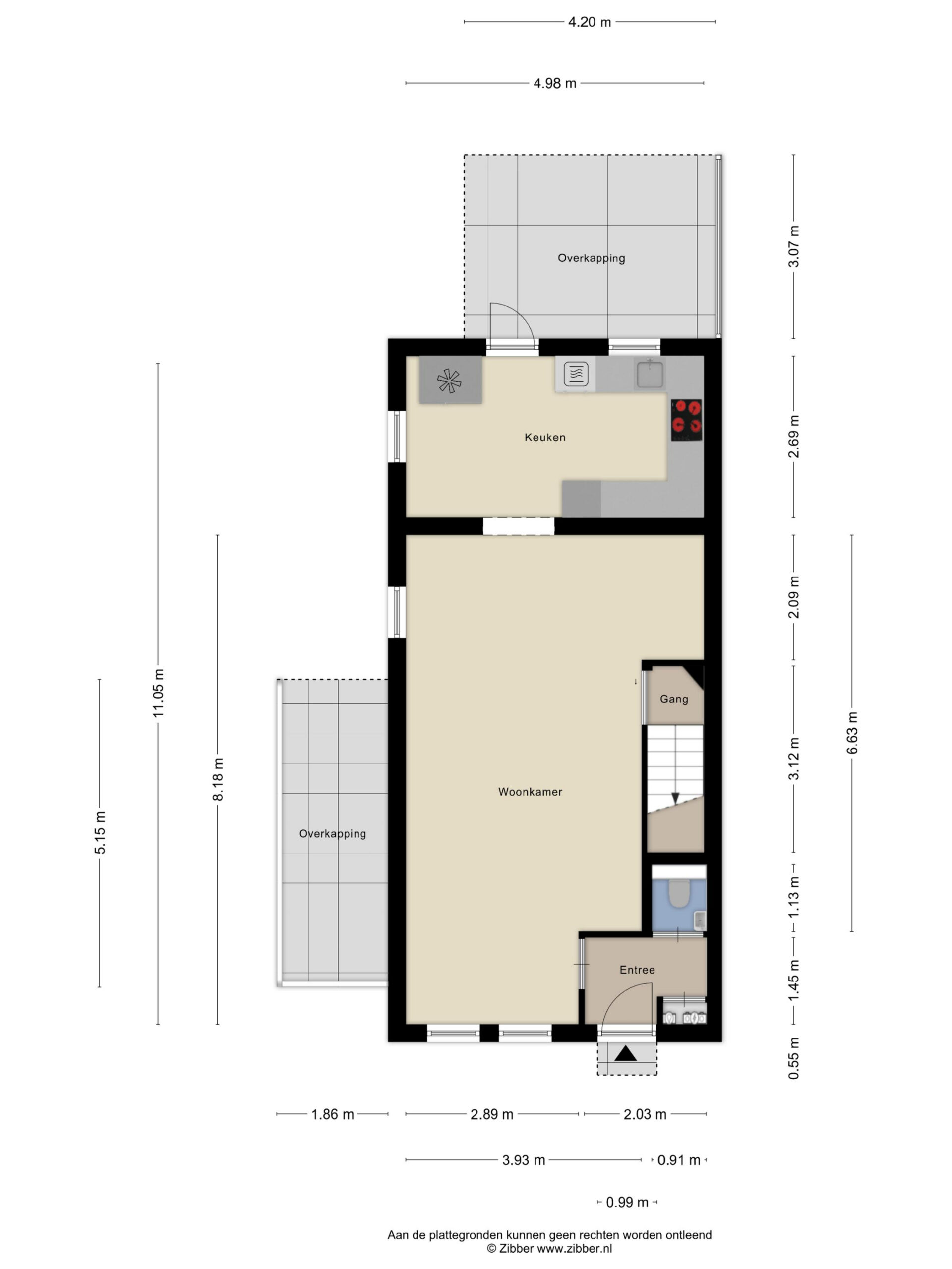
Indeling

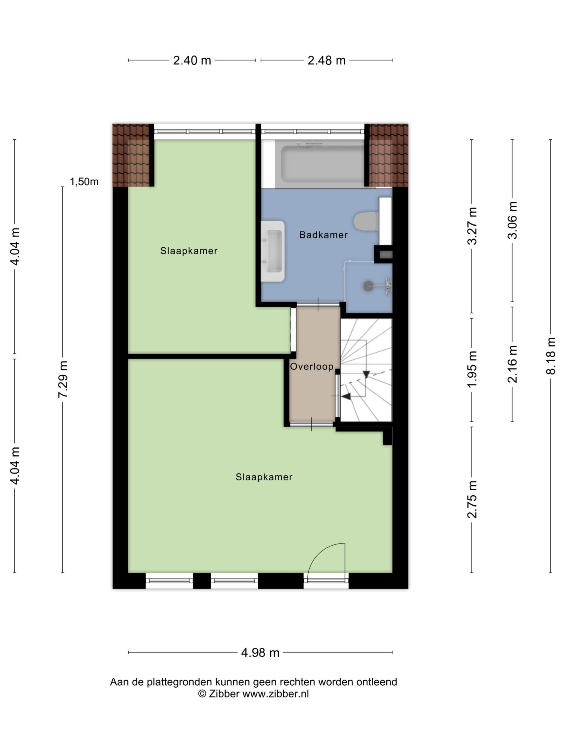
Binnen zie je direct dat er recent is geïnvesteerd. De woonkamer heeft een verzorgde uitstraling en sluit aan op een moderne keuken (2019), praktisch en stijlvol. De vernieuwde badkamer (2023) biedt extra comfort en is voorzien van een elektrische designradiator en heater.

Hier woon je met lage energielasten en een duurzame basis. Met 16 zonnepanelen (2020), vloer- en dakisolatie (2023), kunststof kozijnen met HR++ glas en energielabel A woon je hier toekomstbestendig. De pellet kachel en airconditioning dragen bij aan een aangenaam binnenklimaat in elk seizoen.

De drie slaapkamers bieden veel mogelijkheden, bijvoorbeeld als kinderkamer, thuiskantoor of hobbyruimte. De ruimtes zijn netjes onderhouden en in goede staat.

De woning beschikt over een voortuin met oprit, voldoende ruimte voor twee auto’s. De achtertuin ligt op het noorden en is voorzien van twee bergingen. De zijtuin met poort biedt tevens een praktische toegang tot de berging om eventueel de fietsen in te plaatsen. 

Bijzonderheden: 
+ Een verzorgde, energiezuinige hoekwoning; 
+ Dakisolatie vernieuwd (2023);
+ Kunststof kozijnen met HR++ beglazing; 
+ Vloerisolatie (2023); 
+ 16 zonnepanelen (2020); 
+ Badkamer vernieuwd in 2023;   
+ Keuken (2019);
+ Meterkast vernieuwd (2018)  
+ Volledig bedienbare rolluiken en zonnescherm via app of afstandsbediening;
+ Horren op alle te openen ramen;

Nieuwsgierig geworden? Plan dan snel een bezichtiging in en ervaar deze woning zelf!

Kenmerken
Overdracht
  • Vraagprijs € 450.000,- k.k.
  • Status Beschikbaar
Bouw
  • Soort bouw Woonhuis
  • Woningtype Hoekwoning
  • Bouwjaar 1982
  • Soort dak Zadeldak
Oppervlakten
  • Woonoppervlakte 114 m2
  • Perceeloppervlakte 218 m2
  • Externe bergruimte 15 m2
Indeling
  • Aantal kamers 4 kamers
  • Aantal badkamers 1
  • Aantal woonlagen 3 woonlagen
  • Voorzieningen Mechanische ventilatie, buitenzonwering, airconditioning, dakraam, zonnepanelen, natuurlijke ventilatie
  • Energielabel A
  • Isolatie Dakisolatie, muurisolatie, vloerisolatie
  • Verwarming Cv ketel
  • Warm water Cv ketel
  • Cv-ketel Gas
  • Kadastergemeente Neerbosch
  • Eigendomssituatie Volle eigendom
  • Hoofdtuin Achtertuin
  • Oppervlakte hoofdtuin 66 m2
  • Ligging hoofdtuin Noord
Voorzieningen
  • Parkeerfaciliteiten Openbaar parkeren, op eigen terrein
  • Garage Geen garage

Hier kom
je te wonen

      Kom eens bij ons langs

      Of je nu je huis door ons wil laten verkopen, een aankoopmakelaar zoekt of financieel advies nodig hebt.

      Neem contact met ons op