- Open huis op 04-10-2025 11:00 tot 15:00
- Beschikbaar
- 118m²
- A
Ontdek het op jouw manier!
Omschrijving
Gelegen in park Heijendaal, nabij Radboudziekenhuis, Universiteit en HAN, een 3-kamer-appartement met veel daglichttoetreding. Gelegen op de 2e verdieping met een ruim balkon.
Dit appartementencomplex beschikt over een eigen parkeerplaats in de afgesloten parkeerkelder en een separate berging tevens in het souterrain. Er is een lift aanwezig in het complex.
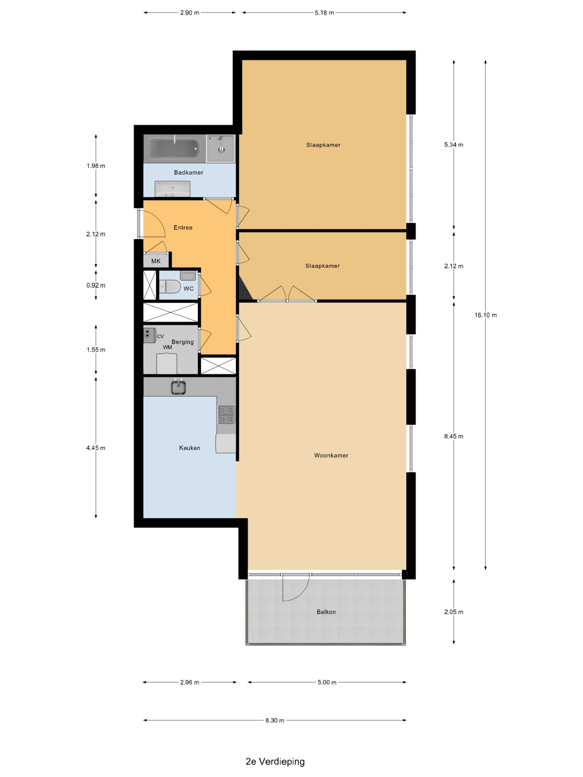
Indeling:
Begane grond: entree, hal met brievenbussen en intercomsysteem/videofooninstallatie. Trapopgang en lift naar de verdiepingen.
2e Verdieping: entree, ruime hal met meterkast, toilet met fontein, ruimte voor opstelling CV-combiketel, mechanische ventilatie en wasmachineaansluiting; tevens geschikt als berging.
De lichte woonkamer (ca. 45 m2) geeft toegang tot het ruime balkon en tot de halfopen woonkeuken voorzien van diverse inbouwapparatuur, te weten 4-pits gaskookplaat, afzuigkap, vaatwasser, koelkast en combi-magnetron. Tevens is hier genoeg ruimte voor een extra kastenwand of eettafel.
Er zijn twee slaapkamers van ca. 28 m2 en ca. 11 m2. Vanuit de woonkamer is de kleinste slaapkamer middels openslaande dubbele deuren te bereiken; deze ruimte kan dus in plaats van een slaapkamer, ook een verruiming betekenen van de woonkamer. Uiteraard zijn beide slaapkamers ook via de hal te bereiken. De grote slaapkamer biedt volop ruimte om desgewenst nog een inloopkast te creëren.
De badkamer is voorzien van een inloopdouche, bad en wastafel uitgevoerd in een neutrale kleurstelling.
Nog enkele wetenswaardigheden:
– actieve VvE, professioneel beheer, totale servicekosten ca. € 239,80 per maand (voor het appartement met berging € 210,21 en voor de parkeerplaats € 29,59). Alle stukken VvE zijn aanwezig en in te zien;
– liftinstallatie aanwezig;
– het appartement is toegankelijk voor ouderen en/of minder validen;
– prachtige ligging in park Heijendaal;
– verwarming en warmwater via een eigen cv-combiketel (Intergas 2008, wordt per 01-10-2025 vervangen);
– deze woning heeft energielabel A (18-09-2035);
– goed onderhouden appartementencomplex;
– vanwege de aard van de verkoop is er geen vragenlijst deel B en is een niet-zelfbewoningsclausule van toepassing;
– aanvaarding kan snel.
Nieuwsgierig geworden? Maak dan een afspraak voor een bezichtiging en we leiden je met veel plezier rond!
Kenmerken
Overdracht
- Vraagprijs € 519.000,- k.k.
- Status Beschikbaar
Bouw
- Soort bouw Appartement
- Bouwjaar 1996
- Soort dak Plat dak
Oppervlakten
- Woonoppervlakte 118 m2
- Externe bergruimte 7 m2
Indeling
- Aantal kamers 3 kamers
- Aantal woonlagen 1 woonlagen
- Voorzieningen Mechanische ventilatie, lift
- Energielabel A
- Isolatie Muurisolatie, vloerisolatie, dubbel glas
- Verwarming Cv ketel
- Warm water Cv ketel
- Cv-ketel Gas
- Kadastergemeente Hatert
- Eigendomssituatie Volle eigendom
Voorzieningen
- Parkeerfaciliteiten Betaald parkeren, parkeergarage
- Garage Parkeerkelder
Hier kom
je te wonen
Downloads

Brochure
7435kb
Kom eens bij ons langs
Of je nu je huis door ons wil laten verkopen, een aankoopmakelaar zoekt of financieel advies nodig hebt.
Neem contact met ons op