Troelstrastraat 10

6535 xm Nijmegen

  • Beschikbaar
  • 118m²
  • 177m²
  • C

Ontdek het op jouw manier!

Omschrijving

Aan een rustige straat gelegen, verrassend ruime tussenwoning met recente dakopbouw, moderne voorzieningen en maar liefst vijf slaapkamers. Deze goed onderhouden gezinswoning uit 1965 is de afgelopen jaren op belangrijke onderdelen gemoderniseerd en biedt een comfortabele combinatie van ruimte, licht en hedendaags wooncomfort.

De woning beschikt over een extra woonlaag die in 2023 is gerealiseerd, waardoor aanzienlijk meer woonoppervlak en gebruiksruimte is ontstaan. In combinatie met de vernieuwde keuken, moderne badkamers en diverse installatietechnische verbeteringen is dit een instapklare woning voor gezinnen die ruimte zoeken zonder direct te willen verbouwen.

Bijzonderheden:
– Bouwjaar 1965
– Energielabel C
– Volwaardige dakopbouw gerealiseerd in 2023
– Vijf slaapkamers
– Twee badkamers, beide circa 3 jaar oud
– Moderne keuken geplaatst in 2022 (inductiekookplaat 2025)
– Twee airco-installaties uit 2023 (verwarmen en koelen)
– Mechanische ventilatie vernieuwd in 2023
– Gehele woning voorzien van HR++ beglazing
– Kunststof kozijnen op eerste en tweede verdieping
– Cv ketel Nefit ProLine (2009, onderhoud 2025)
– De tweede verdieping is voorzien van elektrische rolluiken
– Vraag gerust naar de bijzondere voorwaarden die op deze verkoop van toepassing zijn, waaronder de ouderdomsclausule en de asbestclausule

Indeling:

Begane grond
Entree met hal, toiletruimte en toegang tot de lichte doorzonwoonkamer. De woonkamer kent een prettige lichtinval en staat in directe verbinding met de keuken aan de achterzijde. De keukenopstelling uit 2022 is modern uitgevoerd en voorzien van diverse inbouwapparatuur. Vanuit de keuken is er toegang tot de achtertuin.

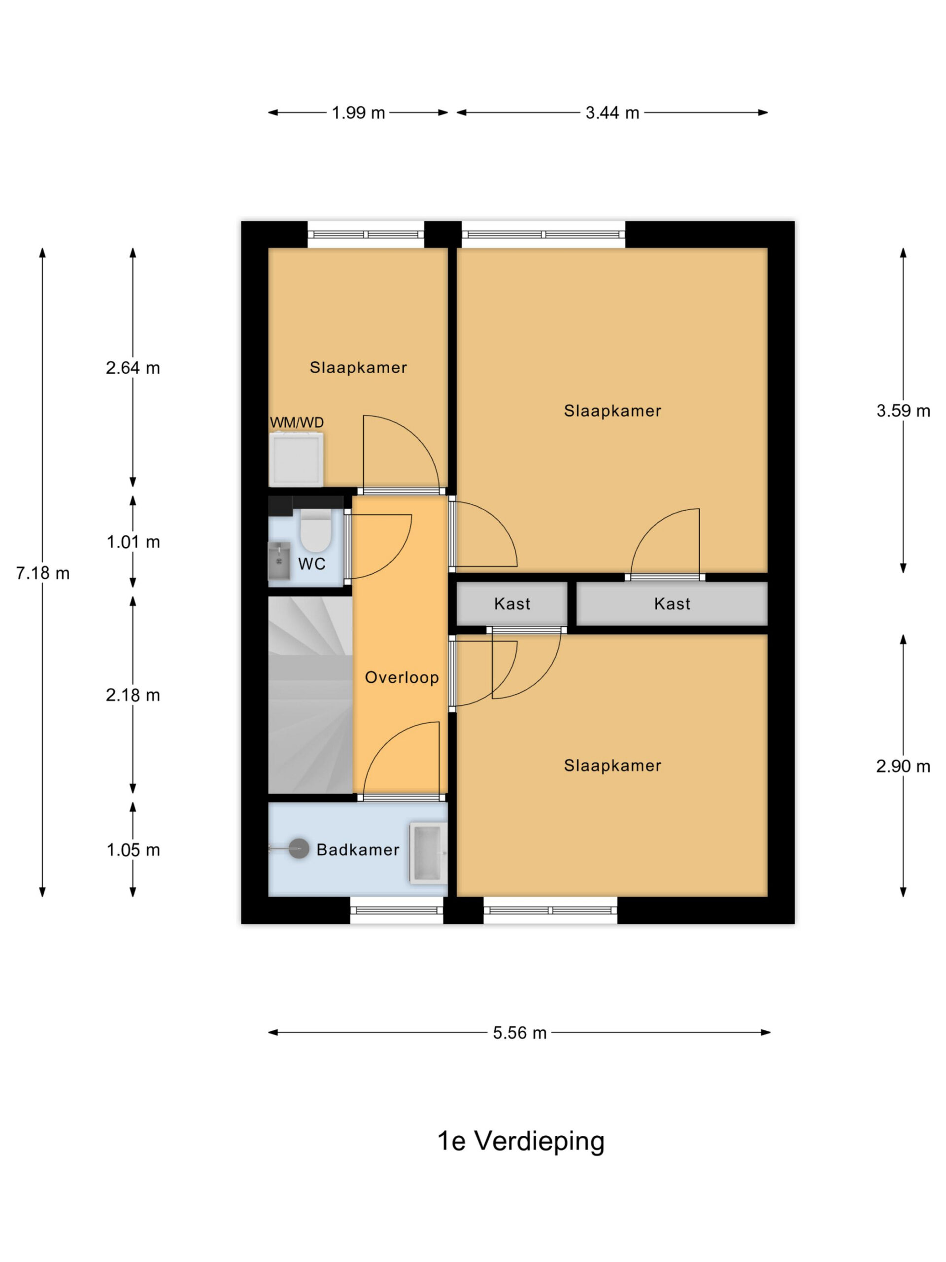
Eerste verdieping
Overloop met toegang tot drie slaapkamers en een nette badkamer voorzien van eigentijdse sanitaire voorzieningen. Er is een separate toilet aanwezig, deze is ook toegankelijk vanuit de overloop. De kunststof kozijnen dragen bij aan comfort en onderhoudsgemak.

Tweede verdieping
Dankzij de in 2023 gerealiseerde dakopbouw is hier een volwaardige extra woonlaag ontstaan. Deze verdieping beschikt over twee royale slaapkamers en een tweede, luxe badkamer en suite. De badkamer is voorzien van een dubbele wastafel en een royale inloopdouche. De verdieping is geïsoleerd en biedt veelzijdige gebruiksmogelijkheden.

Buitenruimte
De achtertuin biedt voldoende ruimte om buiten te zitten en is praktisch ingericht. Tevens is een berging aanwezig voor fietsen en opslag.

Ligging
De woning is gelegen aan een rustige woonstraat in de wijk Hatert, een groene en ruim opgezette woonwijk in Nijmegen Zuid. De omgeving is kindvriendelijk en beschikt over diverse speelvoorzieningen, scholen en sportfaciliteiten op korte afstand. Winkelcentrum Hatert met een compleet aanbod aan dagelijkse voorzieningen ligt op loop en fietsafstand. Het stadscentrum van Nijmegen is binnen circa 10 minuten per fiets bereikbaar. Ook de Radboud Universiteit, het Radboudumc en het CWZ ziekenhuis bevinden zich op korte afstand. Daarnaast is de bereikbaarheid richting uitvalswegen A73 en A50 uitstekend.

Een ruime gezinswoning waarbij de belangrijkste uitbreidingen en moderniseringen reeds zijn uitgevoerd, met name de recente dakopbouw die zorgt voor aanzienlijk extra wooncomfort.

Kenmerken
Overdracht
  • Vraagprijs € 445.000,- k.k.
  • Status Beschikbaar
Bouw
  • Soort bouw Woonhuis
  • Woningtype Tussenwoning
  • Bouwjaar 1965
  • Soort dak Plat dak
Oppervlakten
  • Woonoppervlakte 118 m2
  • Perceeloppervlakte 177 m2
  • Externe bergruimte 9 m2
Indeling
  • Aantal kamers 6 kamers
  • Aantal badkamers 2
  • Aantal woonlagen 3 woonlagen
  • Voorzieningen Rolluiken, tv kabel, airconditioning, natuurlijke ventilatie
  • Energielabel C
  • Isolatie Dakisolatie, dubbel glas
  • Verwarming Cv ketel
  • Warm water Cv ketel
  • Cv-ketel Gas
  • Kadastergemeente Hatert
  • Eigendomssituatie Volle eigendom
  • Hoofdtuin Achtertuin
  • Oppervlakte hoofdtuin 71 m2
  • Ligging hoofdtuin Noordwest
Voorzieningen
  • Parkeerfaciliteiten Openbaar parkeren
  • Garage Geen garage

Hier kom
je te wonen

      Kom eens bij ons langs

      Of je nu je huis door ons wil laten verkopen, een aankoopmakelaar zoekt of financieel advies nodig hebt.

      Neem contact met ons op