Bosbesstraat 10

6542 ns Nijmegen

  • Beschikbaar
  • 42m²
  • C

Ontdek het op jouw manier!

Omschrijving

* KOOPVOORRANG *

Voordat deze woning op de vrije markt wordt aangeboden, krijgen huurders van een sociale huurwoning van Portaal, Woonwaarts, Talis en SSH& in de gemeenten Nijmegen, Wijchen, Beuningen en Druten voorrang om deze woning te kopen. Wil je als huurder in aanmerking komen voor deze voorrangsregeling? Maak dan uiterlijk maandag 20 april 17.00 uur je interesse kenbaar bij de verkopende makelaar. Daarna is er geen garantie op bezichtigen en deelname.
_______________________________________________________________________________________________

Compact, licht en gezellig wonen in Nijmegen-West.

In de rustige en centrale wijk Wolfskuil ligt op de tweede verdieping dit 2-kamerhoekappartement. Bosbesstraat 10 is een efficiënt ingedeeld appartement met een lichte woonkamer, eenvoudige open keuken en een rustige slaapkamer aan de achterzijde. Je woont hier op korte afstand van de binnenstad en alle voorzieningen die je nodig hebt. Perfect voor starters of alleenstaanden die comfortabel en centraal willen wonen.

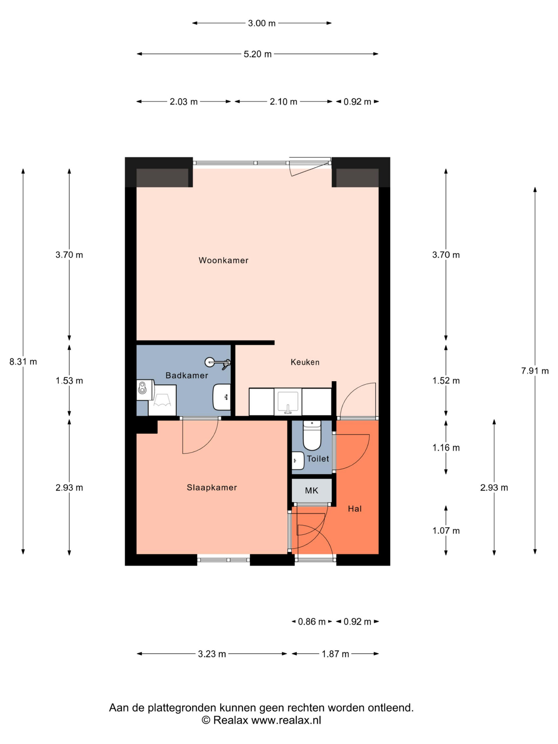
Via de galerij bereik je de voordeur van het appartement. Je komt binnen in de hal, waar direct links de slaapkamer en de badkamer te vinden zijn. Loop je verder in de hal, dan vind je daar het toilet en de meterkast en aan het einde ervan het woongedeelte.

De woonkamer staat in open verbinding met de (eenvoudige) keuken en biedt genoeg ruimte voor een comfortabele hoekbank met tv-opstelling. Kies je voor een kleinere bank, dan kun je ook een fijne werkplek inrichten. Dankzij de grote ramen en de Franse balkondeur komt er veel daglicht binnen.

Aan de achterzijde van het appartement bevindt zich de slaapkamer, rustig gelegen en met directe toegang tot de badkamer. Dankzij de ligging aan de binnenzijde van het complex slaap je hier heerlijk stil. De badkamer is voorzien van een wastafel, douche en de aansluiting voor de wasmachine. Hier vind je tevens de CV-ketel (Intergas 2025).

Tot slot beschikt het appartement over een eigen berging (3 m²) op de begane grond.

Kenmerken:
* Woonoppervlakte: ca. 42 m²
* Energielabel C
* Bouwjaar: 1985
* Dubbel glas, mechanische ventilatie
* Actieve VvE, € 145,16 per maand aan servicekosten
* Gelegen aan rustige straat, met volop voorzieningen nabij
* Aanvaarding in overleg, kan echter snel
________________________________________________________________________________________________

Weet wat je koopt.
Portaal heeft een asbestinventarisatie-onderzoek laten verrichten; dit document is in het zien in je Moveaccount. Zo ook alle (recente) stukken van de VvE.

Notaris.
Een goede notaris is belangrijk. Daarom werkt woningcorporatie Portaal met een vaste projectnotaris: LV-Notarissen in Nijmegen. Het is niet mogelijk de eigendomsoverdracht bij een andere notaris te regelen.

Zelf wonen.
Woningcorporatie Portaal zet zich in voor goede woningen en wijken. De verkoop van deze woning zorgt voor een betere verdeling van koop- en huurwoningen in deze wijk. Als je deze woning koopt, dan bent je verplicht om er zelf te gaan wonen. Het is niet de bedoeling dat de woning door derden wordt bewoond en/of verhuurd. Deze voorwaarde wordt ook als extra artikel opgenomen in de akte van levering en geldt voor een periode van 4 jaar. Dit geldt tevens voor het antispeculatiebeding; beide voor een periode van 4 jaar.

Woon je gehuurd bij één van de bovenstaande wooncorporaties en zie jij jezelf hier wel wonen? Neem dan snel contact met ons voor maandag 16 maart 17.00 uur op om een afspraak in te plannen!

Kenmerken
Overdracht
  • Vraagprijs € 260.000,- k.k.
  • Status Beschikbaar
Bouw
  • Soort bouw Appartement
  • Bouwjaar 1985
  • Soort dak Samengesteld dak
Oppervlakten
  • Woonoppervlakte 42 m2
  • Externe bergruimte 3 m2
Indeling
  • Aantal kamers 2 kamers
  • Aantal badkamers 1
  • Aantal woonlagen 1 woonlagen
  • Voorzieningen Mechanische ventilatie, tv kabel
  • Energielabel C
  • Isolatie Dubbel glas
  • Verwarming Cv ketel
  • Warm water Cv ketel
  • Cv-ketel Gas
  • Kadastergemeente Neerbosch
  • Eigendomssituatie Volle eigendom
Voorzieningen
  • Parkeerfaciliteiten Openbaar parkeren, op eigen terrein
  • Garage Geen garage

Hier kom
je te wonen

      Kom eens bij ons langs

      Of je nu je huis door ons wil laten verkopen, een aankoopmakelaar zoekt of financieel advies nodig hebt.

      Neem contact met ons op