Goudenregenstraat 11

6573 xn Beek

  • Beschikbaar
  • 96m²
  • 218m²
  • B

Ontdek het op jouw manier!

Omschrijving

Ontdek deze verzorgde en uitgebouwde tussenwoning aan de Goudenregenstraat 11 in Beek

Deze fijne tussenwoning ligt aan een rustige straat in een groene woonomgeving, op korte afstand van bos en natuur. Met een perceel van 218 m², drie slaapkamers, een uitgebouwde woonkamer en een zonnige achtertuin met overkapping is dit een heerlijk thuis voor starters, stellen of gezinnen die comfortabel en rustig willen wonen, met alle voorzieningen binnen handbereik.

De woning is door de jaren heen goed onderhouden én op diverse punten vernieuwd en verduurzaamd. Zo is de woonkamer in circa 2011 uitgebouwd, zijn er 11 zonnepanelen geplaatst (2020), is de vloer geïsoleerd (2022) en is de woning grotendeels voorzien van kunststof kozijnen met HR-glas. Daarnaast zorgen de airconditioning (2020), rolluiken op de verdieping en openslaande deuren naar de tuin voor extra wooncomfort. De badkamer is bovendien recent vernieuwd (2025), waardoor je hier zonder grote werkzaamheden kunt intrekken.

Wonen in Beek – groen, rustig en centraal
De Goudenregenstraat ligt in een rustige en prettige woonwijk, omringd door groen en nabij de stuwwal en bossen van Beek. Hier woon je in een natuurlijke omgeving met volop wandel- en fietsmogelijkheden, terwijl voorzieningen zoals winkels, scholen en sportverenigingen zich op korte afstand bevinden. Ook de bereikbaarheid richting Nijmegen, Arnhem en Duitsland is uitstekend, waardoor je hier rustig woont met de stad altijd dichtbij.

Kenmerken:
– Bouwjaar: 1961;
– Woonoppervlak: ca. 96 m²;
– Perceeloppervlak: 218 m²;
– Aantal kamers: 4 (waarvan 3 slaapkamers);
– Energielabel: B (geldig tot 20-11-2035);
– Aanvaarding: in overleg.

Indeling:

Begane grond
Je komt binnen in de hal met meterkast, provisiekelder en toiletruimte. Vanuit hier loop je door naar de open keuken in hoekopstelling, voorzien van diverse inbouwapparatuur, waarvan een deel in de loop der jaren is vernieuwd. Het eetgedeelte sluit hier mooi op aan en vormt een fijne plek om samen te komen. De uitgebouwde woonkamer (ca. 2011) is heerlijk licht en voorzien van airconditioning en openslaande deuren naar de achtertuin, waardoor binnen en buiten op een natuurlijke manier in elkaar overlopen.

Eerste verdieping
Overloop met toegang tot drie slaapkamers en de badkamer. De grote slaapkamer beschikt over een inbouwkast en rolluiken. De tweede slaapkamer is eveneens voorzien van een inbouwkast en de derde kamer wordt momenteel gebruikt als slaap-/waskamer met witgoedaansluitingen en rolluiken. De badkamer is in 2025 vernieuwd en praktisch ingericht met een douche, toilet en wastafelmeubel.

Tweede verdieping
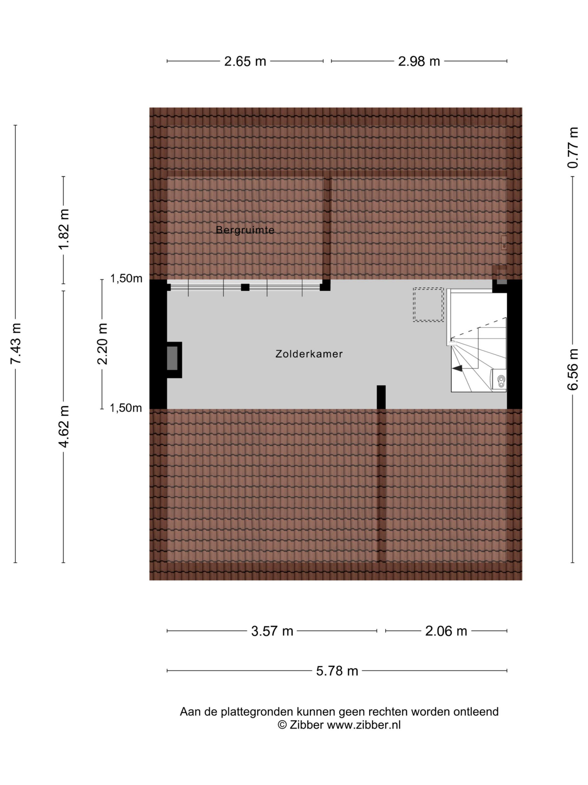
Via een vaste trap bereik je de zolderverdieping. Dit is een open ruimte met dakraam, waar zich de cv-ketel (Nefit, eigendom) en de omvormer van de zonnepanelen bevinden. De ruimte is netjes afgewerkt en biedt volop bergruimte, maar ook mogelijkheden voor een hobbyruimte of werkplek.

Buitenruimte
De woning beschikt over een voor- en achtertuin. De achtertuin is voorzien van een zonnescherm, een houten overkapping met bergruimte en een praktische achterom. Een fijne plek waar je al vroeg in het seizoen van de zon kunt genieten en waar je in alle rust buiten kunt zitten. Het zwembad dat hier eerder aanwezig was, is inmiddels verwijderd, waardoor er een onderhoudsvriendelijke en goed bruikbare tuin is ontstaan.

Bijzonderheden:
+ Uitgebouwde tussenwoning met lichte woonkamer en openslaande deuren naar de tuin;
+ 11 zonnepanelen (2020), vloerisolatie (2022) en HR-glas zorgen voor een goede energieprestatie;
+ Voorzien van kunststof kozijnen en rolluiken op de verdieping;
+ Airconditioning (2020) aanwezig in de woonkamer die zowel verwarmd als koelt voor extra comfort;
+ Praktische indeling met drie slaapkamers en een vaste trap naar zolder;
+ Achtertuin met overkapping, berging en achterom;
+ Gelegen in een bosrijke omgeving, ideaal voor liefhebbers van wandelen, fietsen en buitenleven;
+ Vraag gerust naar de inhoud van bijzondere voorwaarden, zoals de asbestclausule en ouderdomsclausule welke van toepassing zijn op deze verkoop.

Ben je op zoek naar een goed onderhouden woning op een rustige en groene locatie in Beek, waar je zo in kunt? Dan is Goudenregenstraat 11 absoluut een bezichtiging waard.

Neem contact op en ervaar zelf de ruimte, het comfort en de fijne sfeer van deze woning.

Kenmerken
Overdracht
  • Vraagprijs € 450.000,- k.k.
  • Status Beschikbaar
Bouw
  • Soort bouw Woonhuis
  • Woningtype Tussenwoning
  • Bouwjaar 1961
  • Soort dak Zadeldak
Oppervlakten
  • Woonoppervlakte 96 m2
  • Perceeloppervlakte 218 m2
  • Externe bergruimte 4 m2
  • Overige inpandige ruimte 12 m2
Indeling
  • Aantal kamers 4 kamers
  • Aantal badkamers 1
  • Aantal woonlagen 3 woonlagen
  • Voorzieningen Rolluiken, buitenzonwering, airconditioning, dakraam, glasvezel kabel, zonnepanelen, natuurlijke ventilatie
  • Energielabel B
  • Isolatie Vloerisolatie, hr glas
  • Verwarming Cv ketel
  • Warm water Cv ketel, elektrische boiler eigendom
  • Cv-ketel Gas
  • Kadastergemeente Ubbergen
  • Eigendomssituatie Volle eigendom
Voorzieningen
  • Parkeerfaciliteiten Openbaar parkeren
  • Garage Geen garage

Hier kom
je te wonen

      Kom eens bij ons langs

      Of je nu je huis door ons wil laten verkopen, een aankoopmakelaar zoekt of financieel advies nodig hebt.

      Neem contact met ons op