Griftdijk 84

6515 ag Nijmegen

  • Beschikbaar
  • 113m²
  • 117m²
  • A

Ontdek het op jouw manier!

Omschrijving

In de populaire en kindvriendelijke wijk Grote Boel in Nijmegen Noord staat deze moderne, gasloze tussenwoning uit 2019, gebouwd in karakteristieke boerderijstijl met mansardedak. Een woning die comfort, energiezuinigheid en gezinsvriendelijk wonen samenbrengt. Met vijf volwaardige slaapkamers, een verzorgde tuin en een praktische indeling biedt dit huis alles wat je zoekt.

Algemeen
• Woonoppervlakte ca. 113m²
• Perceeloppervlakte: 117 m²
• Bouwjaar: ca. 2019
• Energielabel A (geldig tot 31-01-2029)
• Gasloze woning (aangesloten op de stadsverwarming)
• 6 kamers, waarvan 5 slaapkamers
• 6 zonnepanelen (2024)
• Vrijstaande houten berging
• Aanvaarding: in overleg

Wonen met comfort en licht
De begane grond is ingericht op het dagelijks gezinsleven. Aan de voorzijde bevindt zich de ruime L-vormige keuken, waar koken en samenkomen centraal staan. De woonkamer ligt tuingericht en profiteert van veel lichtinval en een directe verbinding met buiten. Hier ontstaat een fijne leefruimte waar rust en levendigheid in balans zijn.

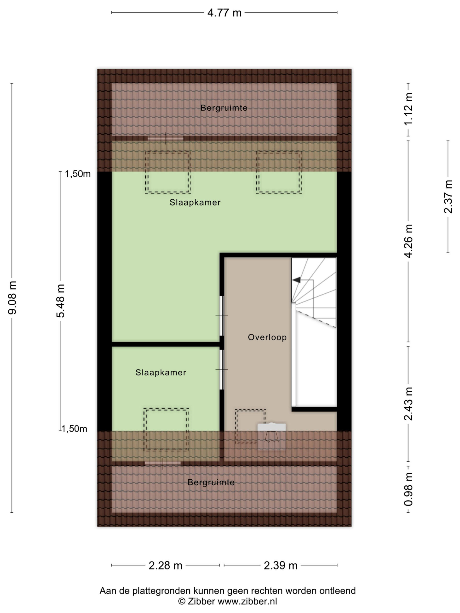
Vijf slaapkamers en een moderne badkamer
De woning biedt een verrassend compleet woonprogramma met vijf slaapkamers. Op de eerste verdieping bevinden zich drie slaapkamers en de ruime badkamer, voorzien van ligbad, douche, dubbele wastafel en toilet.
De zolderverdieping beschikt over twee extra kamers, ideaal als slaapkamer, werkruimte of hobbyruimte. De grote Fakro dakramen met rolgordijnen zorgen hier voor prettig daglicht en een aangename sfeer.

Tuin en buitenruimte
De achtertuin is fraai aangelegd en verzorgd, met veel groen en een prettige sfeer. Vanuit de tuin lopen kinderen direct het aangrenzende hofje op, waar volop ruimte is om veilig te spelen. De vrijstaande houten berging maakt het geheel praktisch en compleet.

Ligging
De woning ligt aan een parallelweg van de Griftdijk, wat zorgt voor rust, ruimte en een groene uitstraling. Ter hoogte van de Oosterhoutse plas geldt een verkeersknip, waardoor alleen bestemmingsverkeer en bewoners gebruikmaken van deze route. Dit versterkt het rustige karakter van de omgeving.
De wijk Grote Boel staat bekend om haar kindvriendelijke opzet, met speeltuinen, scholen, kinderopvang en winkels in de directe nabijheid. Openbaar vervoer is goed geregeld en ook de bereikbaarheid richting Nijmegen en uitvalswegen is uitstekend. Op korte termijn wordt de Griftdijk ingericht als 30 km/u-weg, wat de woonkwaliteit verder verhoogt.

USP’s op een rij
• Moderne, gasloze tussenwoning (2019)
• Gebouwd in boerderijstijl met mansardedak
• Energielabel A
• 5 volwaardige slaapkamers
• 3 slaapkamers op de eerste verdieping
• 2 slaapkamers/werkkamers op zolder met grote Fakro dakramen
• Badkamer voorzien van alle comfort
• Ruime L-vormige keuken aan de voorzijde
• Lichte, tuingerichte woonkamer
• Fraai aangelegde tuin met veel groen
• Vrijstaande houten berging
• 6 zonnepanelen (2024)
• Laminaatvloer met brede planken op alle verdiepingen
• Gelegen aan rustige parallelweg met groen en ruimte
• Direct toegang tot speelhofje via de achtertuin
• Veel speeltuinen in de directe omgeving
• Alle voorzieningen nabij (winkels, scholen, OV)
• Goede bereikbaarheid richting Nijmegen en uitvalswegen
• Woning van eerste bewoners, met zorg en aandacht bewoond

Griftdijk 84 is een compleet gezinshuis waar comfort, duurzaamheid en een fijne leefomgeving samenkomen. Een plek waar kinderen opgroeien, waar ruimte vanzelfsprekend is en waar u direct prettig woont. Wij nodigen u graag uit voor een bezichtiging.

Kenmerken
Overdracht
  • Vraagprijs € 510.000,- k.k.
  • Status Beschikbaar
Bouw
  • Soort bouw Woonhuis
  • Woningtype Tussenwoning
  • Bouwjaar 2019
  • Soort dak Mansarde dak
Oppervlakten
  • Woonoppervlakte 113 m2
  • Perceeloppervlakte 117 m2
  • Externe bergruimte 6 m2
Indeling
  • Aantal kamers 6 kamers
  • Aantal badkamers 1
  • Aantal woonlagen 3 woonlagen
  • Voorzieningen Mechanische ventilatie, dakraam, glasvezel kabel, zonnepanelen
  • Energielabel A
  • Isolatie Volledig geisoleerd
  • Verwarming Stadsverwarming
  • Warm water Stadsverwarming
  • Kadastergemeente Nijmegen
  • Eigendomssituatie Volle eigendom
  • Hoofdtuin Achtertuin
  • Oppervlakte hoofdtuin 45 m2
  • Ligging hoofdtuin Oost
Voorzieningen
  • Parkeerfaciliteiten Openbaar parkeren
  • Garage Geen garage

Hier kom
je te wonen

      Kom eens bij ons langs

      Of je nu je huis door ons wil laten verkopen, een aankoopmakelaar zoekt of financieel advies nodig hebt.

      Neem contact met ons op