Tichelaar 43

6641 ec Beuningen gld

  • Beschikbaar
  • 109m²
  • 227m²
  • C

Ontdek het op jouw manier!

Omschrijving

Ben jij op zoek naar een ruime TWEE-ONDER-EEN KAPWONING met garage, carport, vier slaapkamers en een verzorgde tuin? Dan is deze woning aan de Tichelaar 43 wellicht precies wat je zoekt!

Gelegen in een rustige woonwijk, biedt deze woning het ideale comfort voor jou en je gezin. Met uitgebouwde woonkamer, een ruime indeling, nieuwe badkamer (2024), moderne voorzieningen en een fijne tuin, is dit een uitstekende keuze voor wie op zoek is naar ruimte en gemak. De woning is goed onderhouden, beschikt over twee airco units en heeft zowel een garage als een carport. Benieuwd? Lees snel verder!

Tichelaar 43 ligt in een kindvriendelijke buurt in Beuningen. Hier woon je aan een rustige weg, met het centrum van Beuningen, scholen, winkels, het Heuvepark en sportfaciliteiten op loop- of fietsafstand. Bovendien ben je dankzij de nabijheid van de A50 en de A73 snel in Nijmegen of andere steden in de regio.

Bijzonderheden:
+ Gelegen in een rustige woonwijk;
+ Energielabel C, goed geïsoleerd (dak-, muur- en vloerisolatie, grotendeels dubbelglas);
+ Ruime achtertuin met achterom;
+ 10 zonnepanelen (2023);
+ Garage met carport en parkeergelegenheid op eigen terrein;
+ Airconditioning begane grond en 1e verdieping aanwezig voor extra comfort;
+ Splinternieuwe badkamer (2024) en een nieuw toilet.

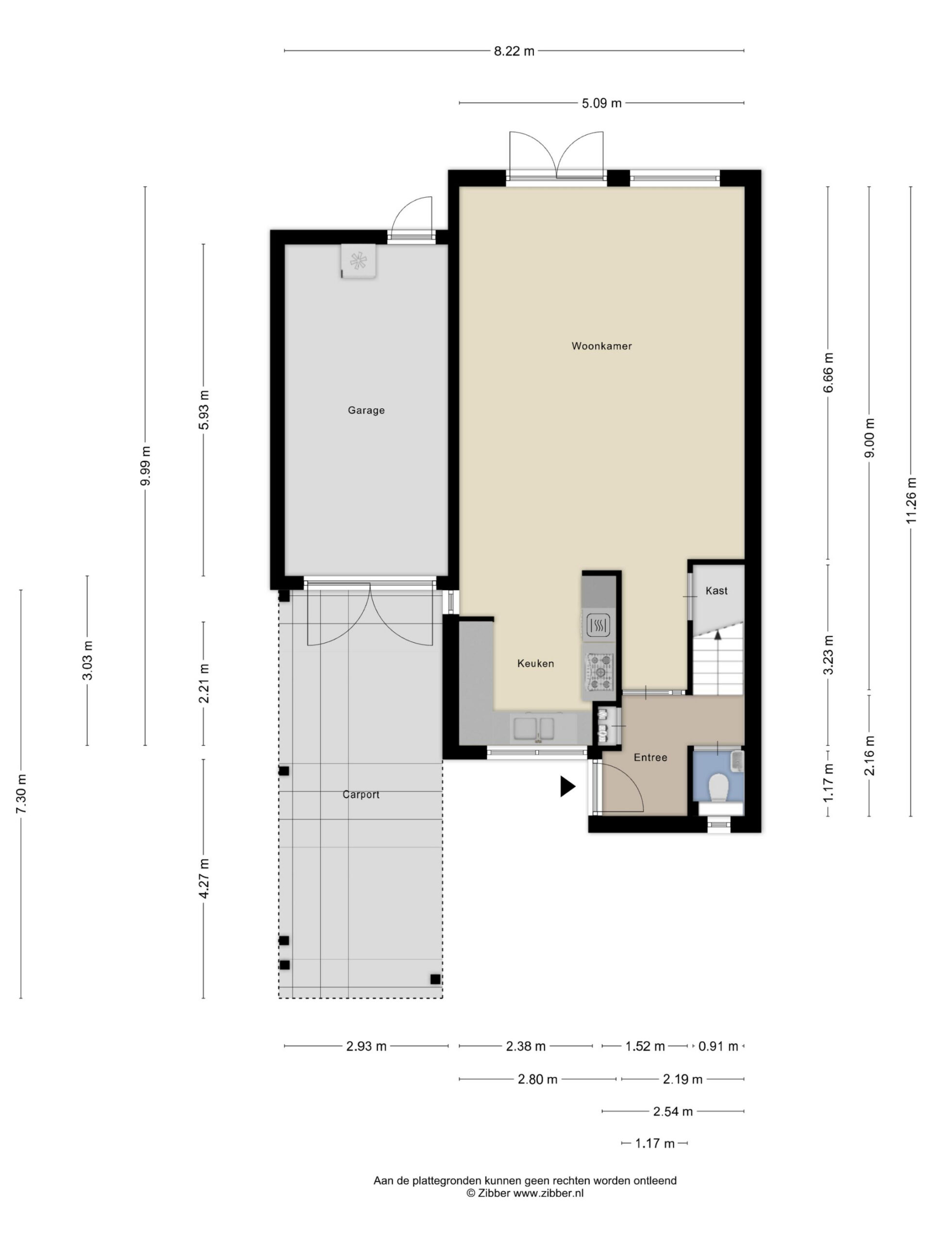
Indeling

Begane grond:
Bij binnenkomst kom je in de ruime hal met toegang tot de meterkast, toilet en gang. Vanuit hier bereik je de woonkamer, die heerlijk licht is dankzij de openslaande tuindeuren naar de verzorgde achtertuin. De woonkamer heeft een praktische indeling en is voorzien van een nette afwerking, airconditioning en houten vloer. De open keuken is voorzien van de benodigde inbouwapparatuur, zoals o.a. een gaskookplaat, oven, magnetron, vaatwasser (2020) en biedt volop opbergruimte. Verder is er een provisieruimte voor extra opslag.

Eerste verdieping:
Op de eerste verdieping bevindt zich de overloop, die toegang geeft tot vier slaapkamers van verschillende afmetingen. De grootste slaapkamer beschikt over airconditioning, ideaal voor warme zomernachten. Tevens zijn hier twee dakkapellen, waardoor er veel licht binnen valt. De andere slaapkamers zijn ideaal als kinderkamers of werkruimtes. De badkamer is in 2024 vernieuwd en compleet uitgerust en voorzien van een ligbad, inloopdouche, wastafelmeubel met daarboven een verwarmde spiegel en toilet.

Tweede verdieping:
Op de tweede verdieping bevindt zich de bergzolder, waar je de wasmachineaansluiting en C.V.-ketel (Remeha, 2007) vindt. Deze ruimte biedt veel opbergmogelijkheden.

Buitenruimte:
De woning heeft een goed onderhouden achtertuin die is gelegen op het zuidoosten en biedt volop ruimte voor een zithoek en eventueel speelruimte. De tuin heeft een achterom en een veranda, perfect voor het buitenleven. Aan de voorzijde van de woning bevindt zich een nette voortuin. De garage is aangebouwd en voorzien van elektra, met daarvoor een carport met parkeerruimte voor één auto op eigen terrein.

Algemene kenmerken:
– Bouwjaar: 1983
– Woonoppervlak: ca. 109m² (excl. garage en 2de verdieping)
– Perceeloppervlakte: 227 m²
– Energielabel: C

Zie jij jezelf al wonen in deze fijne, ruime woning met een prettige indeling en een verzorgde tuin? Maak snel een afspraak voor een bezichtiging en ontdek alles wat deze woning te bieden heeft!

Kenmerken
Overdracht
  • Vraagprijs € 475.000,- k.k.
  • Status Beschikbaar
Bouw
  • Soort bouw Woonhuis
  • Woningtype Twee onder een kapwoning
  • Bouwjaar 1983
  • Soort dak Zadeldak
Oppervlakten
  • Woonoppervlakte 109 m2
  • Perceeloppervlakte 227 m2
  • Externe bergruimte 5 m2
  • Overige inpandige ruimte 26 m2
Indeling
  • Aantal kamers 5 kamers
  • Aantal badkamers 1
  • Aantal woonlagen 3 woonlagen
  • Voorzieningen Buitenzonwering, airconditioning, glasvezel kabel
  • Energielabel C
  • Isolatie Dakisolatie, muurisolatie, gedeeltelijk dubbel glas
  • Verwarming Cv ketel
  • Warm water Cv ketel
  • Cv-ketel Gas
  • Kadastergemeente Beuningen
  • Eigendomssituatie Volle eigendom
  • Hoofdtuin Achtertuin
  • Oppervlakte hoofdtuin 84 m2
  • Ligging hoofdtuin Zuidoost
Voorzieningen
  • Parkeerfaciliteiten Openbaar parkeren, op eigen terrein
  • Garage Aangebouwd steen

Hier kom
je te wonen

      Kom eens bij ons langs

      Of je nu je huis door ons wil laten verkopen, een aankoopmakelaar zoekt of financieel advies nodig hebt.

      Neem contact met ons op