Tooropstraat 195

6521 nm Nijmegen

  • Beschikbaar
  • 106m²
  • D

Ontdek het op jouw manier!

Omschrijving

Op zoek naar een royale woning in het hart van Nijmegen-Oost? Deze sfeervolle jaren ‘30 bovenwoning combineert authentieke charme met modern comfort, nabij alle denkbare voorzieningen. De lichte woonkamer heeft een erker aan de voorzijde, ensuite deuren en twee fraaie schouwen. De keuken met granitovloer en de vernieuwde badkamer (2020) bieden alle moderne voorzieningen. De woning beschikt over drie slaapkamers, een fijn balkon met vrij uitzicht en een royaal dakterras van 18,4 m², plus veel opbergruimte in de kelder en op de bergzolder. Authentieke details zoals glas-in-loodramen en de originele tegels in de hal maken het geheel compleet. Een karaktervol en stijlvol huis, perfect voor wie sfeer en gemak wil combineren.

Locatie:
Nijmegen-Oost staat bekend om de charmante jaren ‘30 straten, gezellige horecagelegenheden en de prettige sociale samenhang. Vanuit de voordeur bereik je het stadscentrum gemakkelijk en liggen voorzieningen zoals supermarkten, winkels, restaurants, basisscholen en middelbare scholen allemaal op loopafstand. Ook de universiteit en de ziekenhuizen zijn nabijgelegen. Voor ontspanning en recreatie zijnde Ooijpolder en de groene heuvels van Ubbergen en Beek dichtbij.
De snelwegen A15, A73 en A50 zijn goed bereikbaar en het openbaar vervoer is op loopafstand aanwezig. Alles wat je dagelijks nodig hebt is binnen handbereik, terwijl de wijk zelf een rustige, groene en sfeervolle woonomgeving biedt.

Kenmerken:
– Woonoppervlakte ca. 106 m²
– Bouwjaar 1933
– Slaapkamers: 3
– Buitenruimte: balkon & royaal dakterras
– Ruime kelder van ca. 26 m² met stahoogte
– Bergzolder/vliering voor extra opbergruimte

Indeling:
Begane grond en kelder:
Op de begane grond kom je binnen in de hal met trapopgang naar de eerste verdieping en toegang tot de ruime provisiekelder van ca. 26 m² met stahoogte.

Eerste verdieping:
Vanuit de overloop zijn alle vertrekken op deze verdieping bereikbaar. De woon-/eetkamer is licht en ruim, met een erker die veel daglicht binnenlaat, ensuite glas-in-lood deuren, inbouwkasten en een balkon aan de achterzijde met vrij uitzicht. De openslaande deuren zorgen voor een fijne verbinding met buiten. De keuken (2009) heeft een prachtige granitovloer. Verder is de keuken voorzien van een koelvriescombinatie, een grote oven, een 5-pitsgasfornuis en een vaatwasser (2019). Vanuit de keuken heb je een leuk uitzicht op de straat. Op deze verdieping bevindt zich verder een toiletruimte en er zijn diverse karakteristieke details aanwezig, zoals glas-in-loodramen met voorzetramen en twee mooie betegelde schouwen, die het geheel extra sfeer geven.

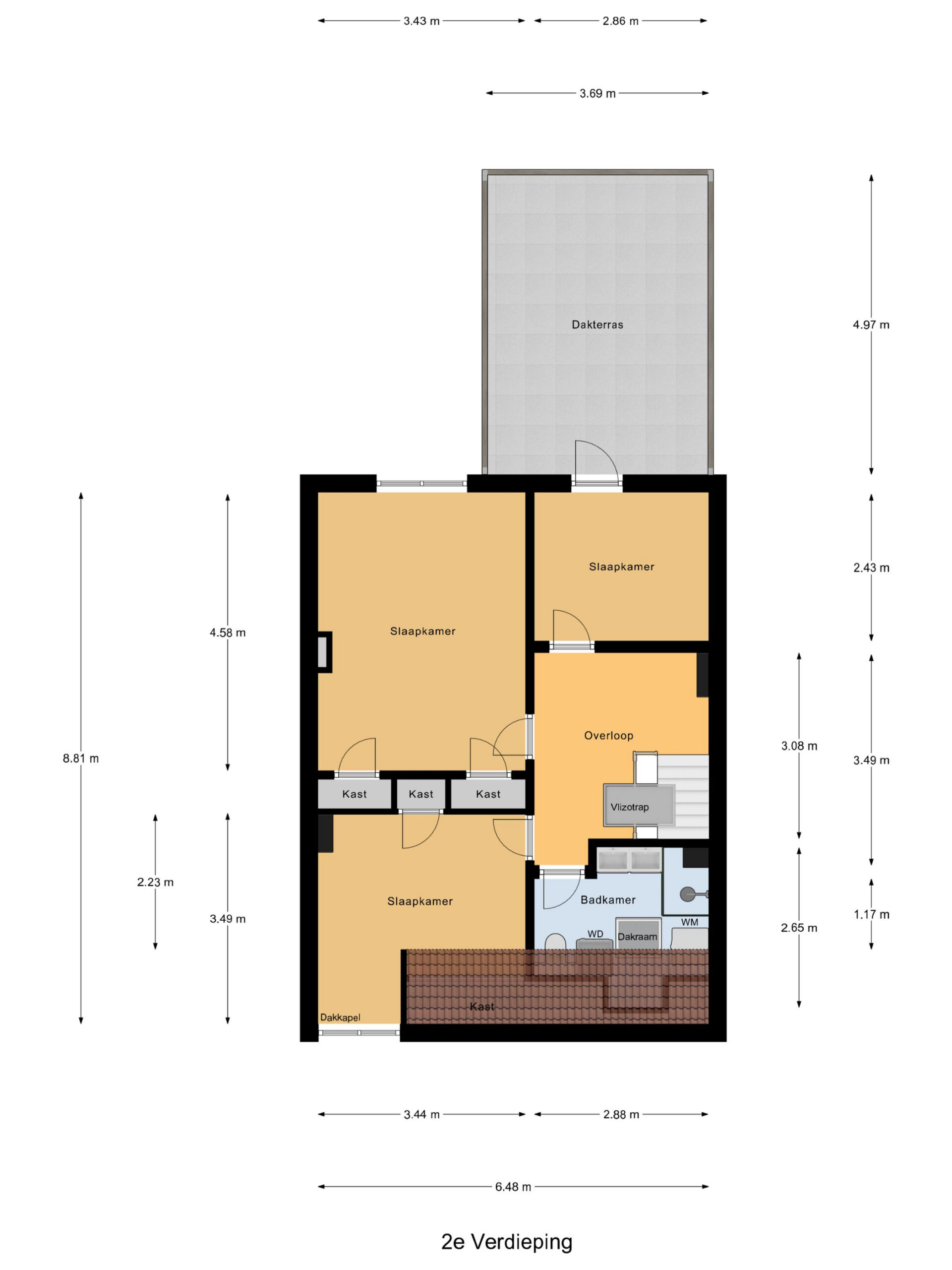
Tweede verdieping:
Ruime overloop met toegang tot drie fijne slaapkamers (met inbouwkasten) en de badkamer. De badkamer is in 2020 volledig vernieuwd en voorzien van een regendouche, wastafel, toilet, wasmachineaansluiting, mechanische ventilatie en een dakraam. Vanuit een van de slaapkamers aan de achterzijde is het dakterras bereikbaar. Het dakterras is maar liefst 18,4 m² groot en biedt een groen en vrij uitzicht.

Derde verdieping:
Hier bevindt zich de vliering, die dienst doet als praktische bergzolder. Deze verdieping is bereikbaar middels een vlizotrap. Gezien de oppervlakte van de zolder bestaat hier de mogelijkheid om een vierde kamer (inclusief tweede dakterras) te realiseren.

Goed om te weten:
– Badkamer volledig vernieuwd in 2020
– Dubbel glas aanwezig
– Vloerisolatie zoldervloer uit 2018
– Riolering tot aan de straatzijde vernieuwd in 2019
– CV ketel Nefit uit 2013, recent onderhouden
– Mechanische ventilatiebox vernieuwd in 2020
– Buitenschilderwerk uitgevoerd in 2019, 2020 en 2024
– VvE-bijdrage € 15 per maand
– Parkeren via vergunning
– Aanvaarding in overleg

Kenmerken
Overdracht
  • Vraagprijs € 495.000,- k.k.
  • Status Beschikbaar
Bouw
  • Soort bouw Appartement
  • Bouwjaar 1933
Oppervlakten
  • Woonoppervlakte 106 m2
  • Overige inpandige ruimte 26 m2
Indeling
  • Aantal kamers 6 kamers
  • Aantal badkamers 1
  • Aantal woonlagen 5 woonlagen
  • Voorzieningen Mechanische ventilatie, tv kabel, glasvezel kabel, natuurlijke ventilatie
  • Energielabel D
  • Isolatie Vloerisolatie, dubbel glas
  • Verwarming Cv ketel
  • Warm water Cv ketel
  • Cv-ketel Gas
  • Kadastergemeente Hatert
  • Eigendomssituatie Volle eigendom
Voorzieningen
  • Parkeerfaciliteiten Parkeervergunningen
  • Garage Geen garage

Hier kom
je te wonen

      Kom eens bij ons langs

      Of je nu je huis door ons wil laten verkopen, een aankoopmakelaar zoekt of financieel advies nodig hebt.

      Neem contact met ons op