Gorisstraat 23

6521 cg Nijmegen

  • Beschikbaar
  • 96m²
  • C

Ontdek het op jouw manier!

Omschrijving

Instapklare benedenwoning met zonnige tuin in Nijmegen-Oost!

Volop leefruimte, drie slaapkamers, ruime woonkeuken en een diepe tuin op het zuiden. Rustig gelegen, met het centrum, station en het Radboud UMC op loop- en fietsafstand.

Karakteristiek wonen met stad en rust binnen handbereik

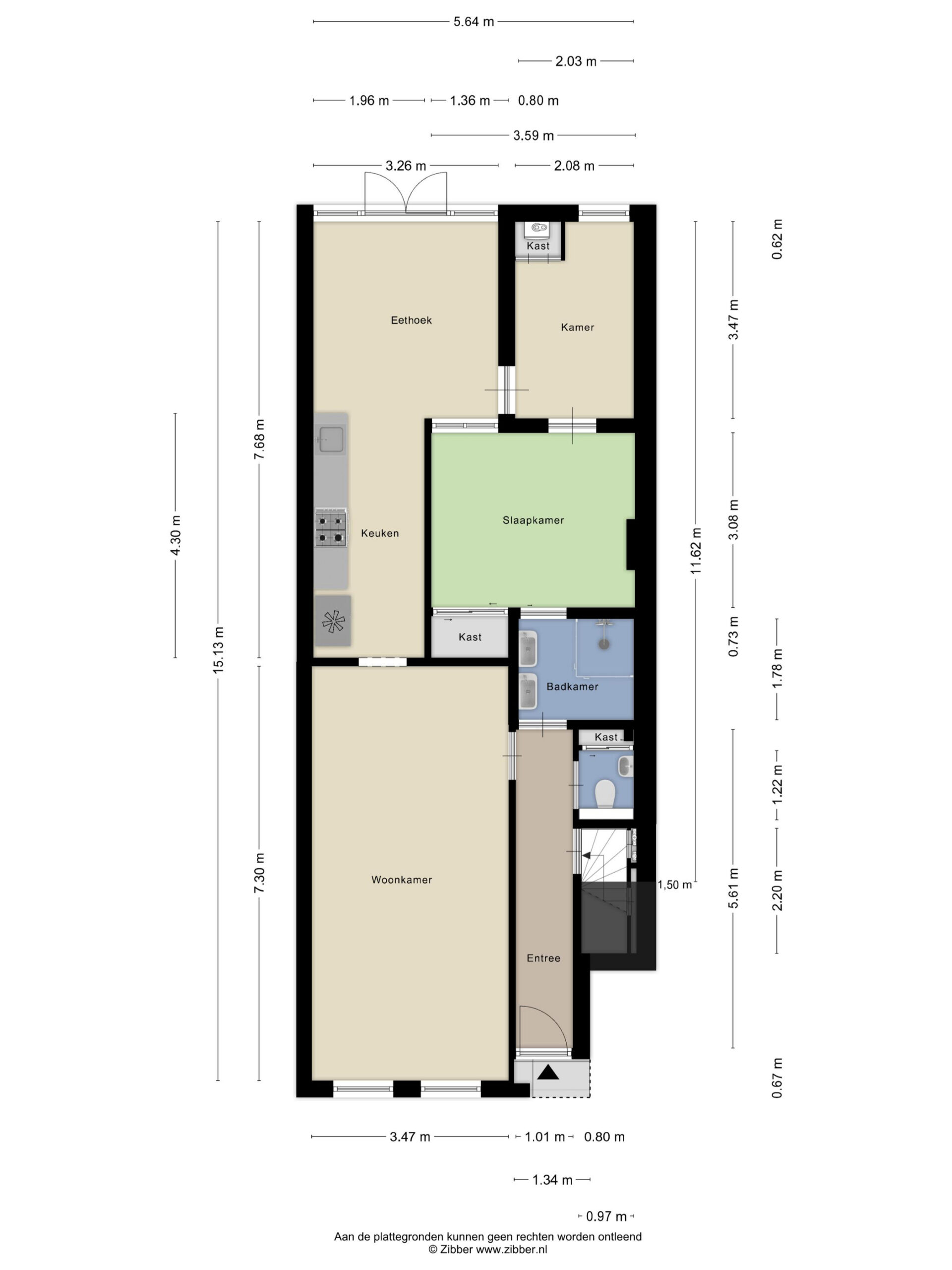
In het geliefde Nijmegen-Oost ligt deze charmante en goed onderhouden benedenwoning met zonnige tuin op het zuiden aan de Gorisstraat 23. De woning beschikt over ca. 96 m² woonoppervlak, drie slaapkamers, een ruime woonkeuken én een diepe achtertuin van ca. 72 m².
De woning is instapklaar en recent volledig aan de buitenzijde geschilderd, wat zorgt voor een verzorgde uitstraling en weinig onderhoud op korte termijn.

Zoek je een sfeervolle, comfortabele en lichte woning waar je zó in kunt, met een heerlijke tuin en alle voorzieningen dichtbij? Dan is dit hét huis waar jij je meteen thuis voelt.

Belangrijkste kenmerken
• Bouwjaar: 1905
• Woonoppervlak: ca. 96 m²
• Drie slaapkamers
• Zonnige diepe achtertuin op het zuiden (ca. 12 x 6 meter)
• Vrijstaande houten berging met elektra
• Gelegen in een rustige woonstraat in het geliefde Nijmegen-Oost
• Nabij centrum, station, Radboud UMC, winkels en horeca
• Dubbel glas en cv-installatie (2018)
• Energielabel C
• Kleinschalige VvE (2 leden), maandelijkse bijdrage € 100,-
• Recent volledig buiten geschilderd
• In de koopovereenkomst worden een niet-zelfbewoningsclausule, ouderdomsclausule en asbestclausule opgenomen

Omschrijving

Deze goed onderhouden benedenwoning combineert het karakter van een woning uit 1905 met het comfort van nu. Bij binnenkomst ervaar je direct de prettige sfeer en het gevoel van ruimte, dankzij de hoge plafonds, brede eikenhouten vloer en grote raampartijen.

Via de eigen entree kom je in de hal die toegang geeft tot de verschillende vertrekken. De lichte woonkamer aan de voorzijde kijkt uit op de rustige straat. Aan de achterzijde bevindt zich de ruime woonkeuken, die via openslaande deuren direct in verbinding staat met de zonnige tuin.
De tuin is opvallend breed en diep, ligt ideaal op het zuiden en biedt volop ruimte om te ontspannen, te tuinieren of gezellig buiten te eten. De vrijstaande houten berging met elektra biedt praktische ruimte voor fietsen, opslag of een hobbyplek.

De woning beschikt over drie slaapkamers: twee op de begane grond en één in het ruime souterrain, waardoor de indeling is geschikt voor uiteenlopende woonwensen zoals werken aan huis, een logeer- of kinderkamer.
De moderne badkamer (2020) is voorzien van een ruime inloopdouche en een dubbele wastafel en is bereikbaar vanuit zowel de hal als de grootste slaapkamer. Daarnaast is er een separaat toilet in de hal.

De ligging is zonder twijfel een groot pluspunt. Nijmegen-Oost staat bekend om zijn prettige woonklimaat, karakteristieke bebouwing en uitstekende voorzieningen. Binnen enkele minuten ben je in de binnenstad, bij het station of de universiteit. Winkels, supermarkten en horeca liggen op loopafstand, terwijl je thuis geniet van rust en privacy.

Kortom, een sfeervolle en praktische woning met veel licht, een zonnige tuin en een centrale maar rustige ligging. Ideaal voor wie comfortabel wil wonen in een van de meest geliefde wijken van Nijmegen.

Kenmerken
Overdracht
  • Vraagprijs € 495.000,- k.k.
  • Status Beschikbaar
Bouw
  • Soort bouw Appartement
  • Bouwjaar 1905
Oppervlakten
  • Woonoppervlakte 96 m2
  • Externe bergruimte 7 m2
Indeling
  • Aantal kamers 4 kamers
  • Aantal badkamers 1
  • Aantal woonlagen 2 woonlagen
  • Voorzieningen Mechanische ventilatie, tv kabel, glasvezel kabel
  • Energielabel C
  • Isolatie Dubbel glas
  • Verwarming Cv ketel
  • Warm water Cv ketel
  • Cv-ketel Gas
  • Kadastergemeente Hatert
  • Eigendomssituatie Volle eigendom
  • Hoofdtuin Achtertuin
  • Oppervlakte hoofdtuin 72 m2
  • Ligging hoofdtuin Zuid
Voorzieningen
  • Parkeerfaciliteiten Parkeervergunningen
  • Garage Geen garage

Hier kom
je te wonen

      Kom eens bij ons langs

      Of je nu je huis door ons wil laten verkopen, een aankoopmakelaar zoekt of financieel advies nodig hebt.

      Neem contact met ons op