Pastoor van Tielstraat 66

6578 am Leuth

  • Beschikbaar
  • 144m²
  • 246m²
  • A

Ontdek het op jouw manier!

Omschrijving

Deze jonge twee-onder-één-kapwoning uit 2020 laat zien hoe comfortabel en toekomstgericht wonen eruitziet. Hier stap je binnen in een huis dat direct klopt: strak afgewerkt, volledig geïsoleerd en ontworpen voor zorgeloos wonen. De combinatie van een eigen oprit, duurzame installaties en een prettige indeling maakt dit een woning die klaar is voor jarenlang comfortabel en energiezuinig wonen.

Locatie
Leuth positioneert zich precies waar rust en bereikbaarheid samenkomen. Het dorp ligt aan de rand van de Ooijpolder en biedt directe toegang tot natuur, dijken en uiterwaarden. Wandelen, fietsen en buitenleven liggen hier letterlijk om de hoek. Tegelijkertijd bereik je Nijmegen snel en eenvoudig, waardoor stedelijke voorzieningen altijd dichtbij blijven. Deze combinatie maakt Leuth bijzonder aantrekkelijk voor stellen die ruimte, ontspanning en bereikbaarheid willen combineren.

Kernmerken
– Woonoppervlak: ca. 144 m²;
– Perceeloppervlak: ca. 246 m²;
– Bouwjaar: ca. 2020;
– Energielabel: A (geldig tot 02-07-2030);
– Aanvaarding: in overleg;

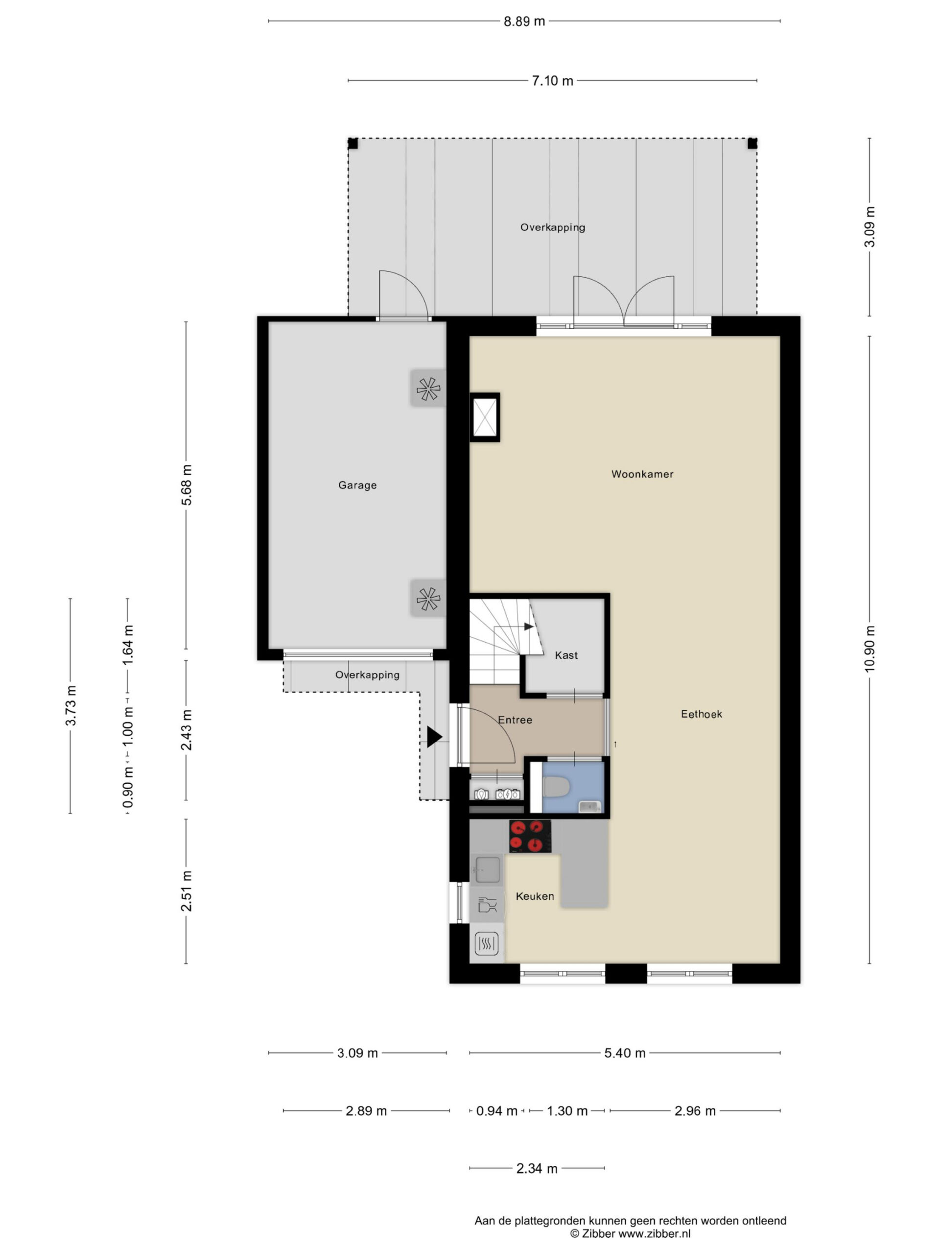
Indeling

Begane grond

Je stapt binnen in de hal met een zwevend toilet met fontein en een royale trapkast. Via de schuifdeur kom je in de ruime, fijne woonkamer aan de tuinzijde, compleet met gashaard en openslaande deuren die zorgen voor een prettige verbinding met de tuin. Aan de voorzijde ligt de U-vormige keuken, praktisch en stijlvol ingericht met een 4-pits inductiekookplaat, koelkast met vriesvak, combi-oven met stoomfunctie, vaatwasser en een close-in boiler onder de kraan. Keukenkasten aan beide zijden bieden voldoende opbergruimte. Samen met de moderne afwerking vormt dit een heerlijk lichte en warme basis waar je direct kunt wonen en genieten.

Eerste verdieping
Op de eerste verdieping bevinden zich twee royale slaapkamers, waren er 3, elk ruim en licht, en een moderne badkamer. De badkamer is compleet uitgerust met een ligbad, dubbele wastafel met meubel, zwevend toilet en een ruime inloopdouche. Dankzij de slimme indeling is de verdieping comfortabel en praktisch in gebruik.

Tweede verdieping
Op de tweede verdieping bevindt zich nog een derde mogelijkheid voor een slaapkamer, die volledig naar eigen wens ingericht kan worden, bijvoorbeeld als slaapkamer, werkruimte of hobbyruimte. Hier vind je tevens de warmtepomp met buffervat, de omvormer van de zonnepanelen, de mechanische ventilatie en de aansluiting voor de wasmachine, waardoor deze verdieping functioneel én flexibel is.

Tuin
De woning beschikt over zowel een voor- als achtertuin. De voortuin biedt een eigen oprit met plek voor meerdere auto’s. De achtertuin ligt op het westen, waardoor je van het middag- en avondzonnetje kunt genieten, en is fraai aangelegd met veel groen. Hier vind je bovendien een gezellige overkapping en een royale garage, ideaal voor opslag.

Bijzonderheden
+ Modern en net afgewerkte twee-onder-een-kapwoning uit 2020;
+ Geheel voorzien van vloerverwarming en pvc vloeren;
+ Voorzien van horren;
+ Volledig geïsoleerd met A-label;
+ Warmtepomp en 5 zonnepanelen;
+ Overkapping uit 2024;
+ Gelegen aan de rand van de Ooijpolder en dichtbij de stad;

Deze jonge woning biedt modern comfort, royale kamers en een zonnige tuin met garage. Met een eigen oprit, duurzame installaties en slimme indeling is dit een huis om direct van te genieten en jarenlang met plezier te wonen. Ben je nieuwsgierig geworden en wil je deze woning zelf ervaren? Plan dan snel een bezichtiging in via ons kantoor!

Kenmerken
Overdracht
  • Vraagprijs € 490.000,- k.k.
  • Status Beschikbaar
Bouw
  • Soort bouw Woonhuis
  • Woningtype Twee onder een kapwoning
  • Bouwjaar 2020
  • Soort dak Zadeldak
Oppervlakten
  • Woonoppervlakte 144 m2
  • Perceeloppervlakte 246 m2
  • Overige inpandige ruimte 17 m2
Indeling
  • Aantal kamers 4 kamers
  • Aantal badkamers 1
  • Aantal woonlagen 3 woonlagen
  • Voorzieningen Mechanische ventilatie, glasvezel kabel, zonnepanelen
  • Energielabel A
  • Isolatie Volledig geisoleerd
  • Verwarming Vloerverwarming geheel, gashaard
  • Kadastergemeente Leuth
  • Eigendomssituatie Volle eigendom
  • Hoofdtuin Achtertuin
  • Oppervlakte hoofdtuin 99 m2
  • Ligging hoofdtuin West
Voorzieningen
  • Parkeerfaciliteiten Openbaar parkeren, op eigen terrein
  • Garage Aangebouwd steen

Hier kom
je te wonen

      Kom eens bij ons langs

      Of je nu je huis door ons wil laten verkopen, een aankoopmakelaar zoekt of financieel advies nodig hebt.

      Neem contact met ons op