St. Annastraat 190 B

6525 gw Nijmegen

  • Verkocht onder voorbehoud
  • 63m²
  • C

Ontdek het op jouw manier!

Omschrijving

Het betreft een comfortabel 3-kamer appartement met een prachtig uitzicht over de stad, waar jij straks van kunt genieten. Jij woont hier aan de bekende St. Annastraat, op korte afstand van het bruisende stadscentrum van Nijmegen. Het centraal station, diverse winkels, het UMC Radboud en de universiteit liggen allemaal binnen handbereik, waardoor deze locatie perfect is voor zowel studenten als professionals.

Je betreedt het appartement op de vierde verdieping van een complex met liftinstallatie. Vanaf het overdekte balkon aan de voorzijde geniet je elke dag van een fraai stadsbeeld. Bovendien beschikt de woning over een eigen parkeerplaats in de afgesloten parkeerkelder, en extra parkeergelegenheid vind je op de afgesloten binnenplaats en in de directe omgeving.
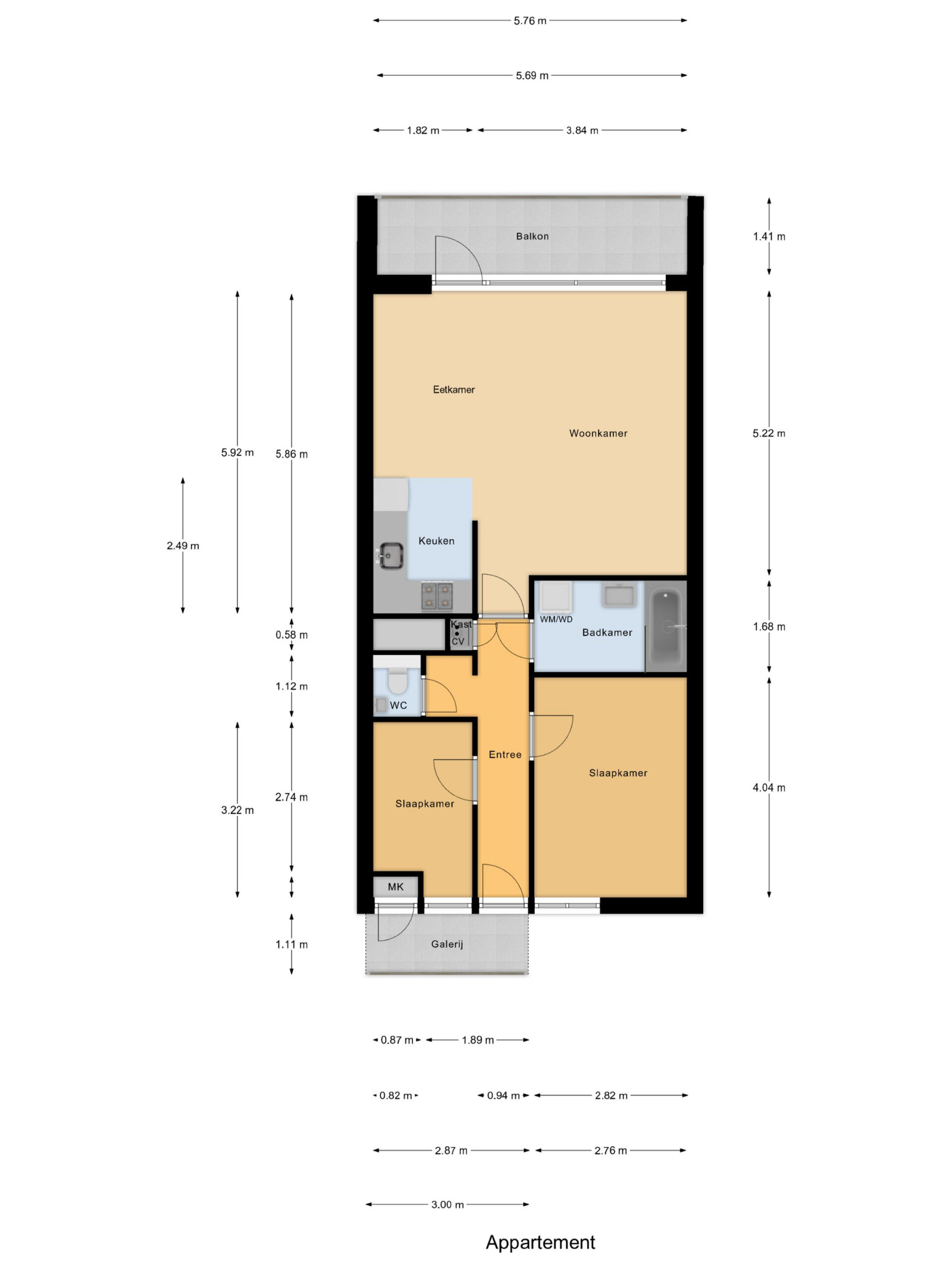
Bij binnenkomst in het complex kom je aan in een trap of via de lift, waarna je de ruime hal betreedt die leidt naar de verschillende vertrekken. Je hebt hier twee comfortabele slaapkamers, een stijlvolle badkamer voorzien met ligbad, vaste wastafel en aansluitingen voor de wasmachine, en een moderne, royale woonkamer met een halfopen keuken. De keuken is volledig uitgerust met diverse inbouwapparaten en een hardstenen werkblad, waardoor jij direct aan de slag kunt met het bereiden van jouw favoriete gerechten. Het zwevende toilet met fonteintje zorgt voor extra een gevoel van luxe en gemak.

In de onderbouw is een ruime berging tot jouw beschikking voor extra opslagruimte, zodat je al jouw fietsen en spullen keurig kunt opbergen.

Met een bouwjaar van 1988, een woonoppervlak van ca. 63 m² en een energielabel C, is dit instapklare appartement een ideale mix van comfort, praktische indeling en centrale ligging. De VvE is actief, de CV-installatie is van 2011 en het mechanisch ventilatiesysteem van 2018, zodat jij zorgeloos kunt genieten van jouw nieuwe thuis.
De parkeerplaats in de garage is ook eventueel te verhuren mocht je hem zelf niet gebruiken.

Mis deze kans niet om te wonen op een toplocatie in Nijmegen. Neem contact met ons op voor meer informatie of om een bezichtiging in te plannen. Jouw nieuwe woonplek wacht op je!

Kenmerken
Overdracht
  • Vraagprijs € 350.000,- k.k.
  • Status Verkocht onder voorbehoud
Bouw
  • Soort bouw Appartement
  • Bouwjaar 1989
  • Soort dak Plat dak
Oppervlakten
  • Woonoppervlakte 63 m2
  • Externe bergruimte 6 m2
Indeling
  • Aantal kamers 3 kamers
  • Aantal badkamers 1
  • Aantal woonlagen 1 woonlagen
  • Voorzieningen Mechanische ventilatie, lift, natuurlijke ventilatie
  • Energielabel C
  • Isolatie Dakisolatie, muurisolatie, gedeeltelijk dubbel glas
  • Verwarming Cv ketel
  • Warm water Cv ketel
  • Kadastergemeente Hatert
  • Eigendomssituatie Volle eigendom
Voorzieningen
  • Parkeerfaciliteiten Openbaar parkeren, op eigen terrein, op afgesloten terrein
  • Garage Parkeerkelder, parkeerplaats

Hier kom
je te wonen

      Kom eens bij ons langs

      Of je nu je huis door ons wil laten verkopen, een aankoopmakelaar zoekt of financieel advies nodig hebt.

      Neem contact met ons op