Palinggracht 54

6642 eg Beuningen gld

  • Beschikbaar
  • 145m²
  • 197m²
  • A

Ontdek het op jouw manier!

Omschrijving

Speels, onderscheidend, ruim en vooral erg licht — dat zijn precies de woorden die passen bij Palinggracht 54 in Beuningen. Wat de buitenzijde misschien niet direct prijsgeeft, ervaar je binnen meteen: dit is een verrassend ruime woning, waarbij de vide en het hoge plafond de woonkamer extra indrukwekkend maken. Niets is standaard aan de vormgeving en juist dat maakt deze woning zo bijzonder. Hier woon je niet “in een huis”, maar in een doordacht ontwerp dat elke dag nét even anders voelt.

Je krijgt het beste van twee werelden: het praktische gemak van een patiowoning, met de mogelijkheden van een volwaardige eengezinswoning. En dan is er nog het gemak van parkeren: je hebt royale parkeergelegenheid op eigen terrein voor drie auto’s. De woning biedt hedendaags comfort en is keurig afgewerkt. De indeling is speels én logisch, waarbij de keuken het centrale punt vormt tussen wonen en slapen. De ruime, zonnige patio geeft je buitenruimte met volledige privacy. De woonomgeving is jong en groen, met veelal vrijstaande of geschakelde bebouwing en water als verbindende factor: ruime straten, veel openbaar groen en overal watergangen en bruggetjes die de verschillende “eilanden” op een leuke manier met elkaar verbinden.

Algemeen
– Bouwjaar: 2005
– Woonoppervlak: 145 m²
– Gebouwgebonden buitenruimte: 68 m²
– Inhoud: 604 m³
– Perceeloppervlak: 197 m²
– Energielabel: A

Indeling

Begane grond
Je komt binnen via de entree in een fraaie halpartij met meterkast en een toiletruimte met vrijhangend toilet en fonteintje. Aan de voorzijde van de woning ligt een bergruimte. Aan de achterzijde vind je de was-/stookruimte met een grote kastenwand, witgoedaansluitingen, de cv-ketel (Intergas, 2019, eigendom), zonneboiler en het mechanische ventilatiesysteem. Vanuit deze ruimte is er ook een deur naar de oprit — handig voor fietsen, boodschappen en het dagelijkse gemak.

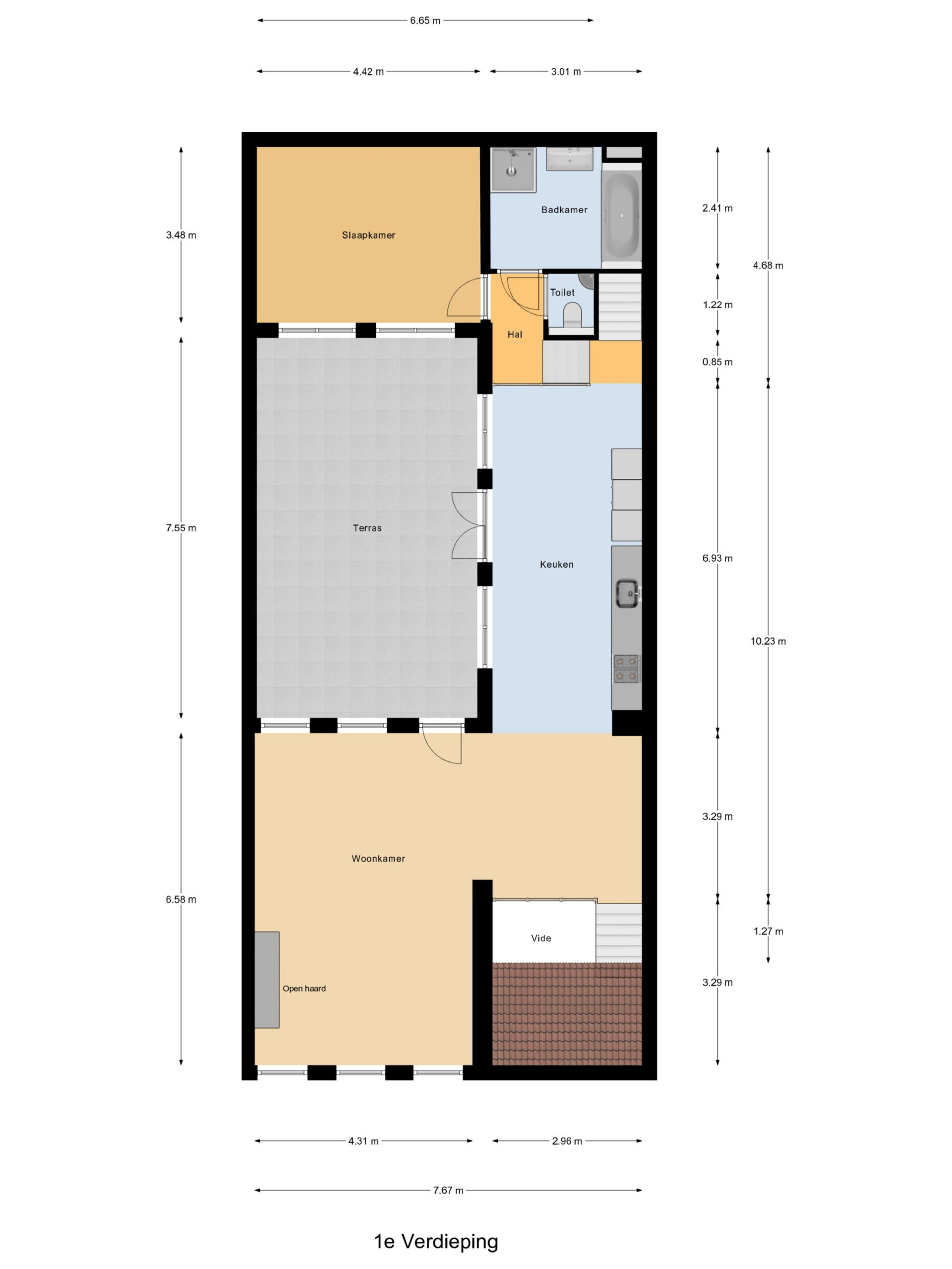
Eerste verdieping
Via de trapopgang met speelse vide kom je in de living met eet- en zitgedeelte. In de royale woonkamer valt het licht meteen op: door de grote ramen is het hier heerlijk helder, en het hoge plafond geeft extra ruimtelijkheid. Vanuit de woonkamer loop je zo de patio op. Ook in de keuken zorgen openslaande deuren voor direct contact met buiten. De open keuken is voorzien van een 4-pits gasfornuis met afzuigschouw, koelkast met vriesvak, vaatwasmachine en warmhoudlade.
De patio is royaal en nodigt uit om met meerdere mensen buiten te zitten, te relaxen en te eten. Vanaf ongeveer 10.00 uur tot 18.00 uur geniet je hier fijn van de zon, met alle privacy die je je kunt wensen.
Via een trappartij bereik je de overloop met toegang tot de hoofdslaapkamer. Deze slaapkamer beschikt over een grote kast. Naast de slaapkamer ligt de ruime badkamer met douche, ligbad en wastafel met toiletkast. Daarnaast is er een separate toiletruimte met vrijhangend toilet.

Tweede verdieping
Op de tweede verdieping vind je een overloop en twee slaapkamers. Beide kamers hebben hoge plafonds en veel lichtinval, wat ze verrassend ruim laat aanvoelen.

Verder
– De woning is volledig geïsoleerd
– De gehele woning is voorzien van isolerende beglazing (HR++) met hardhouten kozijnen
– 8 zonnepanelen (2021)
– De gehele woning is voorzien van een fraaie houten vloer
– Het woonhuis is keurig afgewerkt en instapklaar
– Glasvezelaansluiting aanwezig
– In de nabijheid ligt een speelgelegenheid voor kinderen
– Beuningen heeft een prima aansluiting op het landelijk wegennet en beschikt over uitgebreide winkel- en openbare voorzieningen

Wil je ervaren hoe ruim en licht deze woning echt is — en hoe fijn die patio in de praktijk werkt? Neem contact op en plan een bezichtiging; dan loop je er zelf doorheen en merk je meteen waarom Palinggracht 54 zo’n onderscheidend huis is.

Kenmerken
Overdracht
  • Vraagprijs € 475.000,- k.k.
  • Status Beschikbaar
Bouw
  • Soort bouw Woonhuis
  • Woningtype Geschakelde woning
  • Bouwjaar 2005
  • Soort dak Samengesteld dak
Oppervlakten
  • Woonoppervlakte 145 m2
  • Perceeloppervlakte 197 m2
Indeling
  • Aantal kamers 5 kamers
  • Aantal badkamers 1
  • Aantal woonlagen 3 woonlagen
  • Voorzieningen Mechanische ventilatie, rookkanaal, glasvezel kabel, zonnepanelen
  • Energielabel A
  • Isolatie Dakisolatie, muurisolatie, vloerisolatie
  • Verwarming Cv ketel
  • Warm water Cv ketel, zonneboiler
  • Cv-ketel Gas
  • Kadastergemeente Beuningen
  • Eigendomssituatie Volle eigendom
  • Hoofdtuin Zonneterras
  • Oppervlakte hoofdtuin 24 m2
  • Ligging hoofdtuin Zuid
Voorzieningen
  • Parkeerfaciliteiten Op eigen terrein
  • Garage Carport

Hier kom
je te wonen

      Kom eens bij ons langs

      Of je nu je huis door ons wil laten verkopen, een aankoopmakelaar zoekt of financieel advies nodig hebt.

      Neem contact met ons op