Parallelweg 4

6634 ab Batenburg

  • Beschikbaar
  • 76m²
  • 1135m²
  • C

Ontdek het op jouw manier!

Omschrijving

Vrij wonen aan de rand van het dorp Batenburg? Dat kan in deze sfeervolle vrijstaande woning met royale tuin, gelegen aan de dijk op een perceel van 1.135 m2. Op de begane grond bevindt zich: de sfeervolle woonkamer met halfopen keuken, slaap-/werkkamer, badkamer, bijkeuken, toilet en balkon met prachtig uitzicht over de achtertuin en op de 1ste verdieping zijn 2 slaapkamers. Daarnaast is er nog een bergkelder van ca. 14 m2 en een souterrain van ca. 31 m2. In de tuin, welke rondom de woning is gesitueerd heb je veel privacy en is er tevens een houten berging met overkapping aanwezig.

Gelegen in het natuurrijke rivierengebied van Maas en Waal. Ver genoeg weg van alle drukte en toch de stedelijke dynamiek binnen handbereik ….

De woning heeft een gunstige ligging nabij de Maas, ligt op korte afstand van Wijchen en Nijmegen en is goed ontsloten via de A-50 en A-73. Batenburg ligt prachtig aan een kromming van de dromerige Maas met haar natuurgebieden en vele watervogels, waar u heerlijk kunt wandelen. Batenburg heeft een historische kern met de bekende ruïne en slotgracht van het kasteel Batenburg, een eigen haven aan de Maas (met in de zomer het veerpontje), een gezellig café-restaurant, een rijk verenigingsleven met o.a. tennis, voetbal, toneel en watersport. Batenburg heeft een multifunctioneel centrum voor basisonderwijs, sport en verenigingen. Met de basisschool in het dorp is het ook een uitstekende plek voor een gezin.

Ben jij op zoek naar een nette verzorgde woning met prachtige tuin en gelegen op een fijne plek aan de rand van het dorp? Dan is Parallelweg 4 precies wat je zoekt. Plan snel een bezichtiging en ontdek of dit jouw nieuwe thuis wordt!

Indeling:

Begane grond:
Entree/hal met laminaatvloer, spotjes en meterkast met klikgroepen. Vanuit de hal komt u in de keuken, slaap-/werkkamer, de badkamer en de trap naar de 1ste verdieping. De sfeervolle woonkamer is aan de achterzijde gelegen en geeft mooi uitzicht over de prachtige achtertuin. Daarnaast is er een barretje bij de keuken en is de woonkamer voorzien van laminaatvloer, gestuukte wanden en spotjes. De eetkamer is aan de voorzijde gelegen en is tevens voorzien van laminaatvloer en spachtelputz wandafwerking. De halfopen keuken (in 2019 geplaatst) is voorzien van spotjes en diverse inbouw apparatuur, o.a. 4-pits inductie, afzuigkap en combimagnetron. Vanuit de hal zijn de slaap-/werkkamer, welke is voorzien van laminaatvloer en spotjes en de badkamer (in 2022 geplaatst) met inloopdouche met hand- en regendouche, wastafelmeubel, spiegelkast, zijkast, spotjes en elektrische vloerverwarming te bereiken.

Aan de zijkant van de woning is een extra ingang aanwezig, welke toegang geeft tot de hal met wasbak, toiletruimte met wandcloset, de keuken en de bijkeuken. De praktische bijkeuken heeft een deur naar het balkon en hier zijn tevens de aansluitingen voor de wasmachine/droger en extra ruimte voor berging of bijv. het plaatsten van een extra koelkast of vriezer. Het balkon met aluminium overkapping met zijwand en verlichting is een heerlijke plek om in alle rust te genieten van het mooie uitzicht.

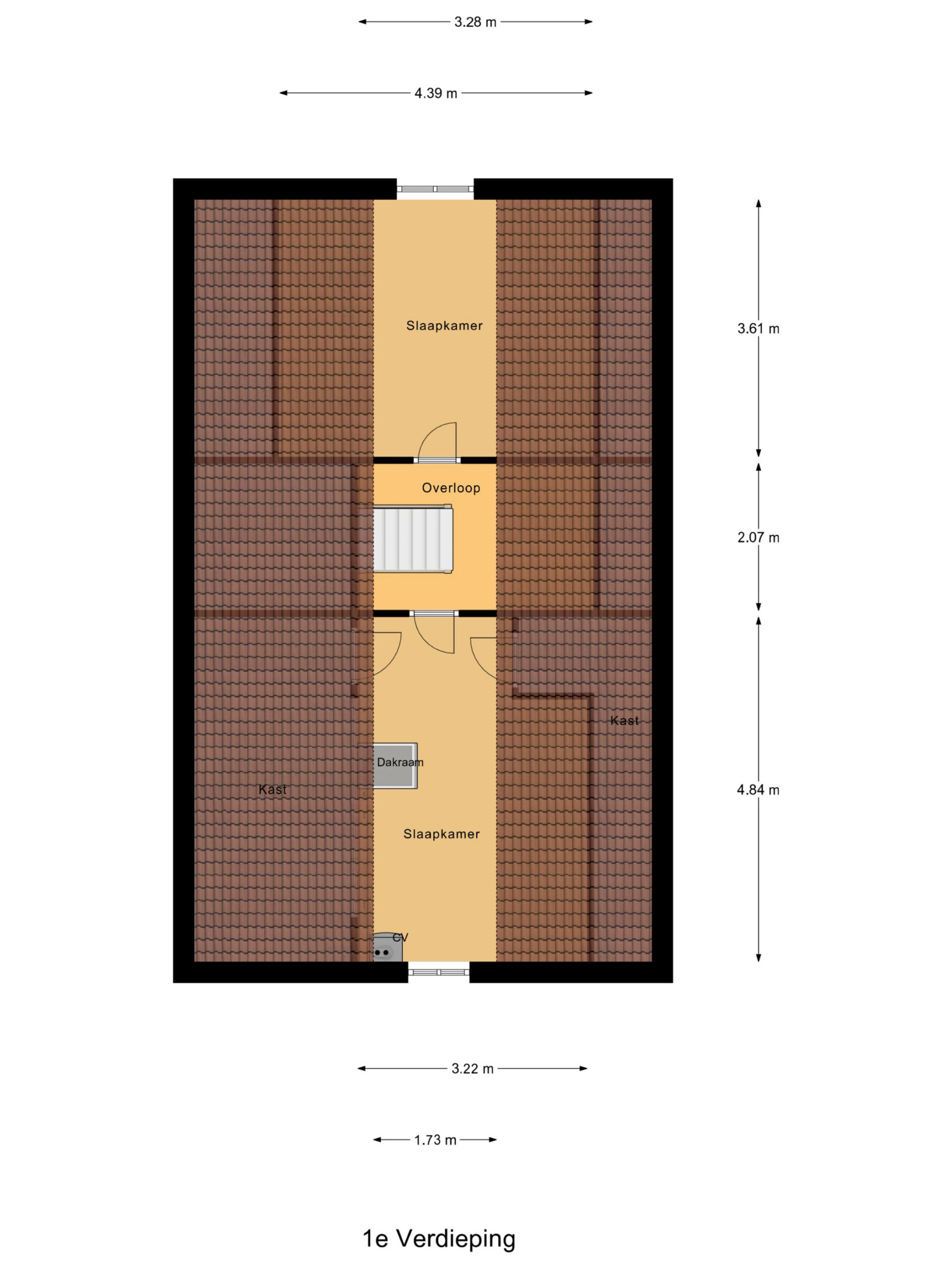
1ste Verdieping:
Overloop met airco-unit en geeft toegang tot de 2 slaapkamers. 1 slaapkamers is voorzien van zijraam en laminaatvloer en de andere slaapkamer heeft een dakvenster, extra bergruimte achter de knieschotten en opstelplaats voor de Cv-ketel (Nefit).

Kelder:
Vanuit de hal is de bergkelder te bereiken. De kelder heeft een hoogte van ca. 1,75 m en een oppervlakte van ca. 14 m2.

Souterrain:
Het souterrain met een oppervlakte van ca. 31 m2 en een hoogte van ca. 1,80 m is via de achterzijde van de woning te bereiken en is verdeeld over 2 ruimtes. Het voorste gedeelte heeft een aanrecht met wasbak en wateraansluiting en hier tevens de grondwaterpomp voor de sproei installatie. De 2de ruimte werd door verkoper vroeger als hobbyruimte gebruikt.

Tuin:
Heerlijke tuin rondom de woning met veel groen, privacy en vrijheid. De zeer royale en sfeervolle achtertuin is keurig aangelegd en heeft meerdere terrassen, tuinverlichting, achterom via beide kanten van de woning en achterin de tuin bevindt zich een houten berging van ca. 7 m2 met openslaande deuren en elektra en een houten overkapping van ca. 8 m2 met fijne extra plek om te kunnen zitten. Aan de zijkant van de woning is meer dan voldoende ruimte om met meerdere auto’s op eigen terrein te kunnen parkeren.

Algemeen:
Bouwjaar 1967, Woonoppervlakte ca. 76 m2 (dit is exclusief de eerste verdieping van ca. 19 m2, het souterrain van ca. 31 m2 en de kelder van ca. 14 m2), Overige inpandige ruimte: totaal 63 m2. Houten berging ca. 7 m2, Inhoud: ca. 512 m3, Perceel 1.135 m2;

Bijzonderheden:
– Sfeervolle vrijstaande woning, gelegen aan de rand van het dorp op een perceel van 1.135 m2;
– Prachtig aangelegde tuin met veel ruimte en privacy;
– Vlakbij Wijchen en Nijmegen en met snelle aansluiting A50 en A73;
– In schilderachtig stadje met basisschool, sportvoorzieningen, haven, café-restaurant, rijk verenigingsleven;
– Keuken in 2019 vernieuwd;
– Badkamer in 2022 vernieuwd;
– Oplevering in overleg;

Kenmerken
Overdracht
  • Vraagprijs € 595.000,- k.k.
  • Status Beschikbaar
Bouw
  • Soort bouw Woonhuis
  • Woningtype Vrijstaande woning
  • Bouwjaar 1967
  • Soort dak Zadeldak
Oppervlakten
  • Woonoppervlakte 76 m2
  • Perceeloppervlakte 1135 m2
  • Externe bergruimte 7 m2
  • Overige inpandige ruimte 63 m2
Indeling
  • Aantal kamers 5 kamers
  • Aantal badkamers 1
  • Aantal woonlagen 3 woonlagen
  • Voorzieningen Tv kabel, airconditioning, dakraam, glasvezel kabel
  • Energielabel C
  • Isolatie Muurisolatie, dubbel glas
  • Verwarming Cv ketel, vloerverwarming gedeeltelijk
  • Warm water Cv ketel
  • Cv-ketel Gas
  • Kadastergemeente Batenburg
  • Eigendomssituatie Volle eigendom
  • Hoofdtuin Tuin rondom
Voorzieningen
  • Parkeerfaciliteiten Op eigen terrein
  • Garage Geen garage

Hier kom
je te wonen

      Kom eens bij ons langs

      Of je nu je huis door ons wil laten verkopen, een aankoopmakelaar zoekt of financieel advies nodig hebt.

      Neem contact met ons op