Blauwe Hof 6133

6602 zl Wijchen

  • Beschikbaar
  • 163m²
  • 370m²
  • C

Ontdek het op jouw manier!

Omschrijving

In de gewilde wijk de ‘Blauwe Hof’ ligt deze ruime VRIJSTAANDE WONING met UITBOUW aan de achterzijde, royale dakkapel op de 2de verdieping en is gelegen op een mooi vrij en zonnig perceel.

Op de begane grond bevindt zich aan de voorzijde de woonkamer, aan de achterzijde de eetkamer in de uitbouw, ruime moderne woonkeuken uit 2024 en praktische bijkeuken, op de 1ste verdieping zijn 3 slaapkamers (1 met toegang tot het dakterras), de badkamer en de extra berging/wasruimte. Op de 2de verdieping bevinden zich 1 slaapkamers met dakkapel en ruime voorzolder tevens met dakkapel. Aan de voorkant van de woning bevindt zich de oprit met carport, waar op eigen terrein geparkeerd kan worden. Aan de achterzijde heeft u een heerlijke tuin op het noordwesten met veel vrijheid en privacy en een mooie houten overkapping/prieel om heerlijk te kunnen genieten. Aan de zijkant bevindt zich nog een praktische overkapping/berging.

Maak een afspraak voor een bezichtiging en laat u verrassen!

De Blauwe Hof is een ruim opgezette kindvriendelijke en groene woonwijk op loopafstand van de basisschool en het Wijchens Meer. De woning is tevens gelegen op korte afstand van het gezellige centrum van Wijchen, het NS station, winkelvoorzieningen, sportgelegenheden, diverse vormen van voortgezet onderwijs, bioscoop en zwembad. In de directe omgeving zijn fraaie natuurgebieden te vinden zoals het Leurse Bos, de uiterwaarden van de Maas, recreatiegebied en golfbaan De Berendonck en de Hatertse vennen. Wijchen ligt op de rand van Noord-Brabant en Gelderland, de uitvalswegen A50 en A73 zijn op ca. 5 minuten waardoor Nijmegen (10 km), ’s-Hertogenbosch (30 min) en Eindhoven (40 min) goed bereikbaar zijn.

Indeling:

Begane grond:
Entree/hal met garderobe nis, de meterkast, de toiletruimte met wandcloset, fontein en spotje en de trapopgang naar de 1ste verdieping. De sfeervolle en ruime woonkamer is voorzien van een eikenhouten plankenvloer, deels gestuukte wanden en deels geschilderde schoonmetselwerk wanden, sfeervol balkenplafond, elektrische haard (voorheen openhaard) en (deels elektrisch) rolluiken. Aan de achterzijde, in de uitbouw bevindt zich de royale en lichte eetkamer met dubbele openslaande deuren naar de achtertuin, houten plankenvloer, strak gestuukte wanden en plafonds, spotjes en deur naar de keuken. Tussen de woonkamer en eetkamer bevindt zich nog een extra ruimte voor bijvoorbeeld een werkplek of speelhoek. De moderne en L-vormig opgestelde keuken is in 2024 geplaatst en is van alle gemakken voorzien, o.a. veel kastruimte/lades, houten plankenvloer, close-in-boiler (2020), deur naar de achtertuin en diverse inbouwapparatuur, zoals 5-pits inductiekookplaat, afzuigkap, vaatwasser (2022), combioven, koelkast en vriezer. Vanuit de keuken is via schuifdeuren de praktische bijkeuken te bereiken met veel extra bergruimte, een pantryblokje met een wasbak met koud en warm water en de mogelijkheid om een wasmachine en droger te plaatsen.

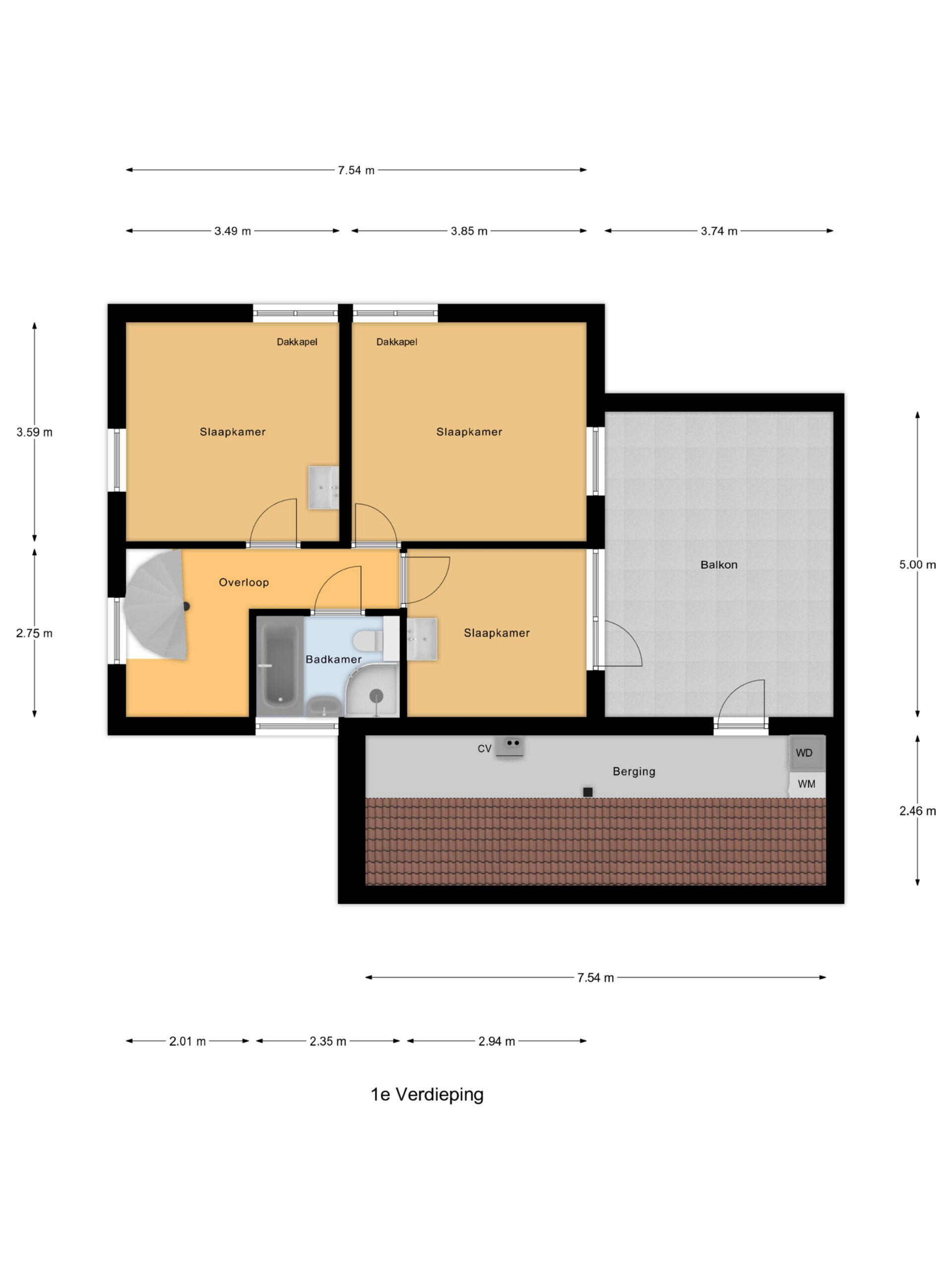
Eerste verdieping:
Overloop met extra ruimte voor het plaatsen van kasten, toegang tot de 3 slaapkamers en de badkamer en de trapopgang naar de 2de verdieping. De 3 slaapkamers zijn voorzien van een houten planken vloer of laminaatvloer en deels geschilderde schoonmetselwerk wanden en deels behang. 2 Slaapkamer zijn voorzien van dakkapel en 2 slaapkamers hebben een wastafel met koud en warm water. Daarnaast is er vanuit 1 slaapkamer het dakterras te bereiken. Het dakterras heeft een oppervlakte van ca. 19 m2 en kijkt mooi uit over de achtertuin en geeft toegang tot de extra wasruimte/berging. In deze ruimte zijn aansluitpunten voor de wasmachine en de droger en de opstelplaats voor de Cv-ketel (Intergas, 2023). De nette badkamer is voorzien van een bubbelbad, douchecabine, wastafel, wandcloset, designradiator en spotjes en is geheel betegeld.

Tweede verdieping:
De tweede verdieping is te bereiken via vaste trap. De ruime voorzolder en de extra slaapkamer zijn beide voorzien van dakkapel, laminaatvloer en verwarming. De voorzolder is ruim, waardoor hier bijv. een extra werkplek kan worden gemaakt.

Tuin:
De nette en groene achtertuin is gelegen op het noordwesten en is voorzien van achterom, meerdere terrassen, mooie en sfeervolle houten overkapping/prieel van ca. 10 m2 achterin de tuin, verlichting, buitenkraan, vijver, zonnescherm aan de zijkant van het huis en een berging/overkapping van ca. 8 m2 voor bijv. het plaatsen van de fietsen en tuinspullen. De achtertuin is een heerlijke plek om rustig te kunnen genieten en heeft veel privacy! Aan de voorzijde van de woning bevindt zich de oprit met carport om op eigen terrein te kunnen parkeren. De carport is voorzien van lichtstraat en spotjes.

Algemene kenmerken:
Bouwjaar 1981; Woonoppervlakte ca. 163 m2 (excl. ca. 8 m2 berg-/wasruimte op de 1ste verd.); Dakterras ca. 19 m2, Berging/overkapping ca. 8 m2; Carport ca. 14 m2; Overkapping/prieel ca. 10 m2; Inhoud ca. 595 m3; Perceeloppervlakte 370 m2.

Bijzonderheden:
– Betreft: ruime vrijstaande woning en gelegen op een mooi vrij perceel in de geliefde en kindvriendelijke wijk Blauwe Hof;
– Nette en groene tuin welke is gelegen op het noordwesten met mooie overkapping, terrassen en veel privacy;
– Moderne keuken uit 2024;
– 15 zonnepanelen
– In 2024 en 2025 zijn alle ramen voorzien van HR++ glas (uitgezonderd de dakkapel op de 2de verdieping);
– In ca. 2013 is het platte dak van de uitbouw/dakterras vernieuwd en geïsoleerd;
– In 2024 is het plafond van de keuken en in 2025 het plafond van de tuinkamer na geïsoleerd;
– In 2025 zijn in de eetkamer en woonkamer alle elektra leidingen, opbouw verlichting en alle stopcontacten geheel vernieuwd.
– Energielabel C;
– Oplevering in overleg;

Kenmerken
Overdracht
  • Vraagprijs € 665.000,- k.k.
  • Status Beschikbaar
Bouw
  • Soort bouw Woonhuis
  • Woningtype Vrijstaande woning
  • Bouwjaar 1981
  • Soort dak Zadeldak
Oppervlakten
  • Woonoppervlakte 163 m2
  • Perceeloppervlakte 370 m2
  • Overige inpandige ruimte 8 m2
Indeling
  • Aantal kamers 6 kamers
  • Aantal badkamers 1
  • Aantal woonlagen 3 woonlagen
  • Voorzieningen Rolluiken, tv kabel, rookkanaal, glasvezel kabel, zonnepanelen
  • Energielabel C
  • Isolatie Dakisolatie, muurisolatie, grotendeels dubbelglas
  • Verwarming Cv ketel
  • Warm water Cv ketel
  • Cv-ketel Gas
  • Kadastergemeente Wijchen
  • Eigendomssituatie Volle eigendom
  • Hoofdtuin Tuin rondom
Voorzieningen
  • Parkeerfaciliteiten Openbaar parkeren, op eigen terrein
  • Garage Geen garage

Hier kom
je te wonen

      Kom eens bij ons langs

      Of je nu je huis door ons wil laten verkopen, een aankoopmakelaar zoekt of financieel advies nodig hebt.

      Neem contact met ons op