Valendrieseweg 85

6603 ac Wijchen

  • Beschikbaar
  • 138m²
  • 4396m²
  • B

Ontdek het op jouw manier!

Omschrijving

Vrijstaand wonen met ruimte, rust en natuur – welkom aan de Valendrieseweg 85 in Wijchen. Deze plek is uniek door de combinatie van een royaal perceel van maar liefst 4.396 m², een vrijstaande woning uit 2005 met garage, slaapkamer en badkamer op de begane grond (levensloopbestendig), aan de rand van het bos/natuur en op loopafstand van het gezellige centrum van Wijchen!

De woning is gebouwd in 2005 en heeft een woonoppervlakte van 138 m² en een garage met berging van ca. 29 m² en dankzij de volledige isolatie woon je hier comfortabel en energiezuinig.

Kortom: Hier geniet je dagelijks van privacy, ruimte, comfort en natuur, terwijl de voorzieningen van Wijchen op korte afstand liggen. Maak een afspraak voor een bezichtiging en voel je hier meteen thuis!

De woning is gelegen op korte afstand van o.a. het gezellige centrum van Wijchen, het NS station, sportgelegenheden, golfbaan De Berendonck, basisschool ,middelbaar onderwijs en het zwembad. In de directe omgeving zijn fraaie natuurgebieden te vinden, zoals het Leurse Bos, de uiterwaarden van de Maas en recreatiegebied De Berendonck en de Haterse vennen. Wijchen ligt op de rand van Noord-Brabant en Gelderland, de uitvalswegen A50 en A73 op ca. 5 á 10 minuten, waardoor Nijmegen (11 km), ’s-Hertogenbosch (30 min) en Eindhoven (40 min) goed bereikbaar zijn.

Indeling:

Begane grond:
Binnenkomend via de entree in de moderne hal met de hoogte, hardhouten open trap en de sfeervolle vide is dit wel een echt een binnenkomst. Vanuit hier heb je toegang tot de woonkamer, de slaapkamer, de toiletruimte en de garage. De royale hal is voorzien van tegelvloer, spachtelputz wandafwerking, spotjes, meterkast met klikgroepen en glasvezelaansluiting en toiletruimte met wandcloset, fontein en geheel betegeld in lichte kleur.

De sfeervolle woonkamer met erker, welke prachtig uitkijkt over de royale tuin en het omliggende groen, openslaande deuren naar het royale terras en netjes afgewerkt met tegelvloer met vloerverwarming, spachtelputz wandafwerking en schuurplafonds met spotjes. Vanuit de woonkamer is de halfopen keuken te bereiken met daar tussenin plek voor een grote eettafel. De keuken heeft veel kastruimte/lades, voldoende aanrechtblad, deur naar de bijkeuken en diverse inbouwapparatuur (Bosch), o.a. 4-pits inductiekookplaat, afzuigkap, vaatwasser, oven, magnetron en koelkast. De praktische bijkeuken heeft een deur naar het terras en de zijtuin, aansluitingen voor de wasmachine/droger en extra bergruimte.

De ruime slaapkamer is voorzien van schuurplafond, spotjes en direct toegang tot de badkamer. De badkamer is geheel betegeld in lichte kleurstelling en voorzien van bad, douchecabine, wastafel, wandcloset, vloerverwarming, designradiator en spotjes.

De gehele begane grond is voorzien van tegelvloer met vloerverwarming en kunststof kozijnen met draaikiepramen en HR++ glas (de voordeur is van hout met HR++ glas), wat zorgt voor extra comfort.

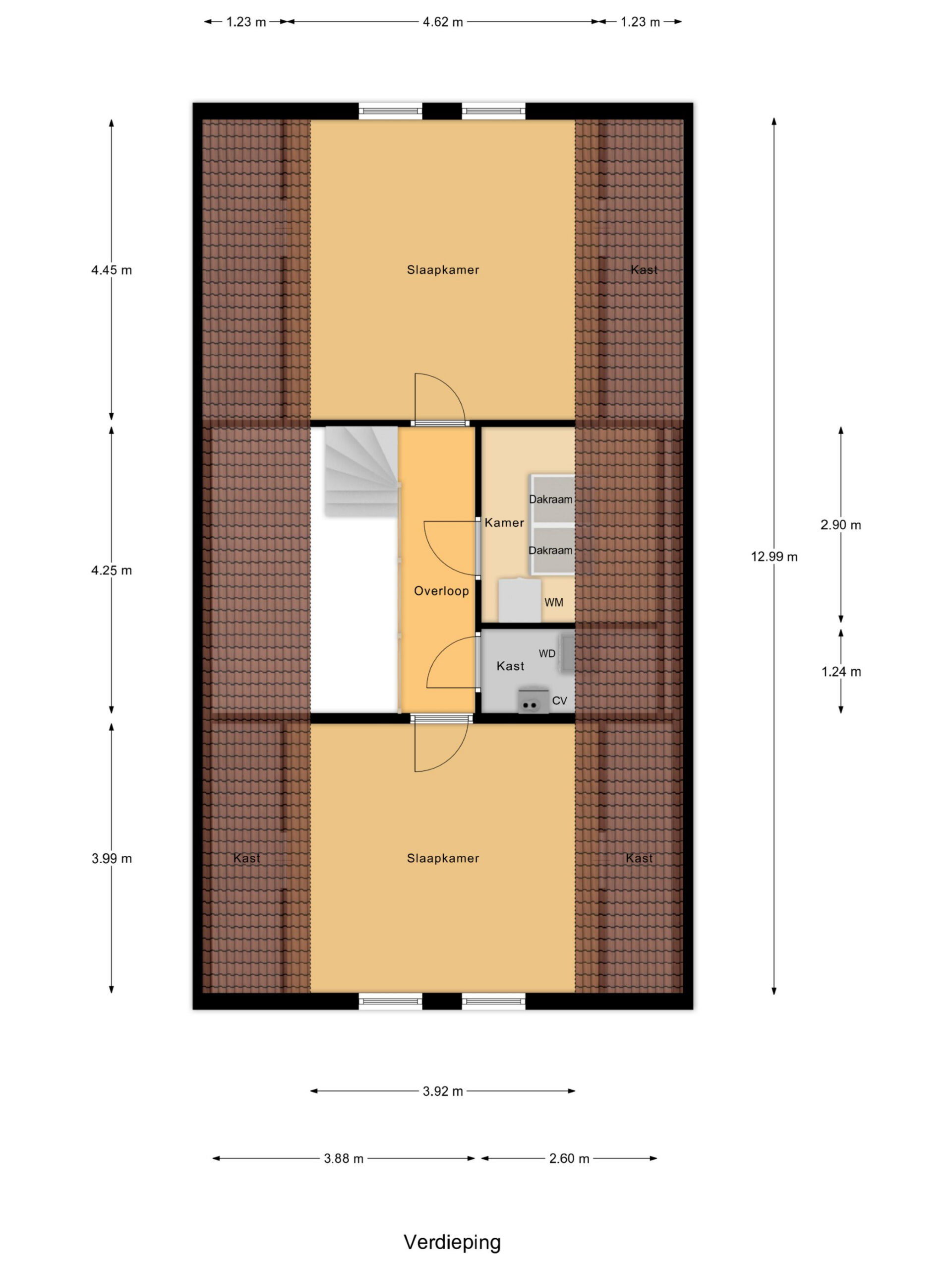
1ste verdieping:
Via de mooie houten trapgang kom je op de vide, die ruimte en sfeer uitstraalt door de afwerking en de hoogte. Vanuit de vide/overloop zijn de 2 slaapkamers, extra kamer en de stookruimte te bereiken. De 2 royale slaapkamers zijn voorzien van kunststof kozijnen met draaikiepramen en HR++ glas, vloerbedekking, wandafwerking met structuurverf, spuitwerk plafonds en knieschotten voor extra bergruimte. De extra ruimte met 2 dakvensters en spotjes kan indien gewenst als badkamer in gebruik worden genomen, aangezien de aansluitingen reeds aanwezig zijn. Daarnaast is er nog een separate kast met daarin de opstelplaats voor de Cv-ketel (Nefit, 2005).

Garage:
De woning beschikt over een aangebouwde stenen garage van ca. 22 m² met houten openslaande deuren naar de oprit, deur naar de berging en een tegelvloer. De berging van ca. 6 m² geeft extra bergruimte en is voorzien van luik in de grond, waar de grondwaterpomp is geplaatst en deur naar de achtertuin. Beide ruimtes zijn voorzien van vloerverwarming.

Buitenruimte
Wat een ruimte op dit prachtige perceel! Door de ligging aan de bosrand ervaar je hier een unieke combinatie van rust, privacy en natuur. Altijd al hobbydieren willen hebben? Hier is dat absoluut mogelijk. Naast de woning bevindt zich een royaal terras voor meerdere zitjes en is het grootste gedeelte van het perceel voorzien van grasvelden en hagen. De hagen worden grotendeels besproeid met druppelslangen. Op het perceel bevinden zich twee vrijstaande houten tuinhuisjes, 1 met grondwaterpomp en beide voorzien van elektra, ideaal voor opslag en het plaatsen van de tuinspullen. Daarnaast is er ook nog een overkapping (met zijwanden) voor het stallen van bijv. een aanhangertje. Het gehele perceel is omheind met een hekwerk. Voor de garage kun je op de eigen oprit met meerdere auto’s parkeren en de oprit is voorzien van dubbele poort.

Algemeen:
Bouwjaar: 2005. Inhoud ca. 626 m³. Woonoppervlakte ca. 138 m². (excl. garage/berging ca. 29 m²) 2 houten tuinhuisjes ca. 15 m². Overkapping ca. 12 m². Perceeloppervlakte 4.396 m².

Bijzonderheden:
– Een royaal perceel van maar liefst 4.396 m²;
– Een vrijstaande woning uit 2005 met garage;
– Slaapkamer en badkamer op de begane grond (levensloopbestendig);
– Aan de rand van het bos/natuur en op loopafstand van het gezellige centrum van Wijchen!
– Heerlijke groene tuin met veel privacy en rust en de mogelijkheid voor het houden van hobbydieren;
– De gehele begane grond is voorzien van tegelvloer met vloerverwarming;
– De gehele woning is voorzien van kunststof kozijnen met draaikiepramen en HR++ glas (de voordeur en de garage deur zijn van hout);
– De gehele woning heeft een kruipruimte, waardoor ook het leidingwerk van de keuken, toilet en badkamer makkelijk bereikbaar is;
– Volledig geïsoleerd;
– Energielabel B (geldig tot 29-01-2036);
– Oplevering in overleg (kan snel);

Belangrijk om te weten:
Gezien de aard van deze verkoop is er geen vragenlijst deel B beschikbaar. In de koopakte zal een niet zelfbewonings- en ouderdomsclausule worden opgenomen.

Kenmerken
Overdracht
  • Vraagprijs € 1.045.000,- k.k.
  • Status Beschikbaar
Bouw
  • Soort bouw Woonhuis
  • Woningtype Vrijstaande woning
  • Bouwjaar 2005
  • Soort dak Schilddak
Oppervlakten
  • Woonoppervlakte 138 m2
  • Perceeloppervlakte 4396 m2
  • Externe bergruimte 15 m2
  • Overige inpandige ruimte 29 m2
Indeling
  • Aantal kamers 5 kamers
  • Aantal badkamers 1
  • Aantal woonlagen 2 woonlagen
  • Voorzieningen Tv kabel, dakraam, glasvezel kabel
  • Energielabel B
  • Isolatie Dakisolatie, muurisolatie, vloerisolatie, volledig geisoleerd
  • Verwarming Cv ketel, vloerverwarming gedeeltelijk
  • Warm water Cv ketel
  • Cv-ketel Gas
  • Kadastergemeente Wijchen
  • Eigendomssituatie Eigendom belast met gebruik en bewoning
  • Hoofdtuin Tuin rondom
Voorzieningen
  • Parkeerfaciliteiten Openbaar parkeren, op eigen terrein
  • Garage Aangebouwd steen

Hier kom
je te wonen

      Kom eens bij ons langs

      Of je nu je huis door ons wil laten verkopen, een aankoopmakelaar zoekt of financieel advies nodig hebt.

      Neem contact met ons op