Aldenhof 3421

6537 ar Nijmegen

  • Beschikbaar
  • 98m²
  • 154m²
  • A

Ontdek het op jouw manier!

Omschrijving

Deze zeer nette en instapklare hoekwoning is gelegen op een mooie en rustige locatie aan een voetpad en tegenover het groen en het water. De begane grond is in 2023 geheel verbouwde, o.a. de woonkamer met luxe uitgebouwde openkeuken, toiletruimte, indeling en de afwerking van wanden, vloeren en plafonds, op de 1ste verdieping zijn 3 netjes afgewerkte slaapkamers en een moderne badkamer uit 2023 en via een vaste trap is multifunctionele 2de verdieping te bereiken. De woning heeft een oppervlakte van ca. 118 m2, waarvan 98 m2 op de begane grond en de 1ste verdieping en ca. 20 m2 op de 2de verdieping (Dit wordt gezien als overige inpandige ruimte, doordat het dakvenster net te klein is). De woning heeft een verzorgde achtertuin op het noordwesten met een berging en achterom.

Deze prachtig afgewerkte en instapklare hoekwoning moet je zien! Maak snel een afspraak en kom het zelf ervaren.

Aan het verkeersluwe Aldenhof woon je namelijk heerlijk; alle denkbare voorzieningen liggen op korte afstand (o.a. vernieuwde buurtwinkelcentrum Meijhorst) en Stadspark Staddijk met zijn grote waterpartijen geeft deze woonomgeving een groot groen hart. Fantastische mogelijkheden om heerlijk te wandelen en te fietsen in de Hatertse vennen en De Berendonck met nog eens diverse sportaccommodaties. Winkelcentrum Dukenburg is per fiets binnen enkele minuten bereikbaar en binnen 3 minuten ben je met de auto op de A73. Bovendien is er altijd ruim voldoende parkeergelegenheid in de directe omgeving.

We gaan snel naar binnen….

Begane grond:
Bij binnenkomst ervaar je gelijk de luxe en de mooie afwerking van deze woning. De hal geeft ons toegang geeft tot de trapkast met daarin tevens de meterkast (klikgroepen), de toiletruimte (2023) met wandcloset, fontein en spotjes, trapopgang naar de 1e verdieping en via de mooie glazen deur naar de woonkamer. De woonkamer is heerlijk licht door de grote raampartijen aan zowel de voor-, achterzijde en zijkant. De woonkamer is voorzien van keramische tegelvloer met vloerverwarming, spachtelputz wandafwerking, schuurplafond met spotjes en openslaande deuren naar de achtertuin en wat te denken van de luxe uitgebouwde openkeuken! In 2023 is aan de voorzijde een erker geplaats wat een prachtig uitzicht geeft op het groen en het water. De keuken is in 2023 geplaats en heeft een L-vormige opstelling met extra kastenblok en is voorzien van veel kastruimte/lades, spotjes en diverse inbouwapparatuur, o.a. grote koelkast, vaatwasser, combioven, oven, 4-pits inductiekookplaat met plaatafzuiging (Bora) en Quooker.

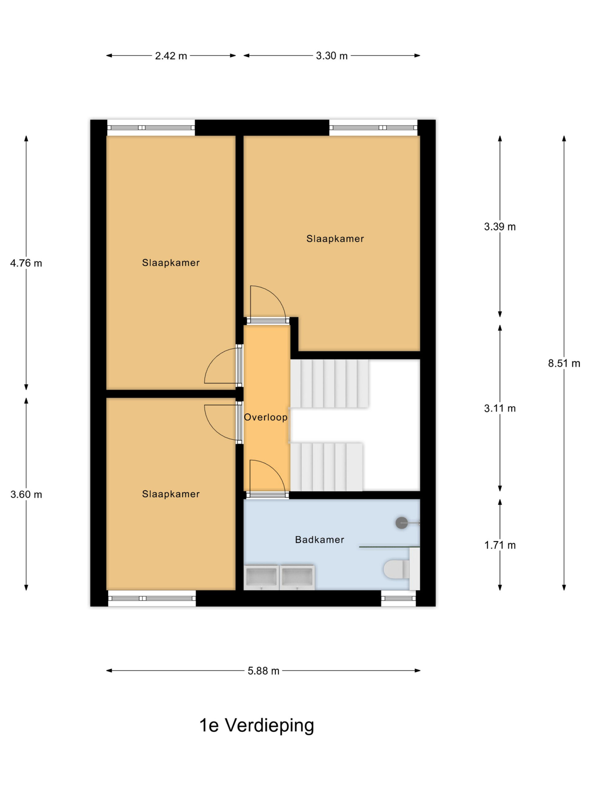
1ste Verdieping:
Via de overloop zijn de 3 slaapkamers, de badkamer en de trapopgang naar de 2de verdieping te bereiken. De 3 nette slaapkamers zijn voorzien van vloerbedekking, spachtelputz wandafwerking/ behang, schuurplafonds met spotjes en nieuwe radiatoren. De luxe en moderne badkamer is in 2023 geplaatst en heeft royale inloopdouche met regen- en handdouche, wandcloset, dubbel wastafelmeubel, grote spiegel, spotjes, geheel betegeld, designradiator en elektrische vloerverwarming.

2de Verdieping:
Via de vaste trap bereiken we de multifunctionele openruimte, welke is voorzien van dakvenster, laminaatvloer, opstelplaats voor de Cv-ketel (Intergas, 2023) en de wasmachine/droger. Het dak is in 2021 vervangen en geïsoleerd en is netjes afgewerkt met witte platen.

Tuin:
De mooi aangelegde achtertuin is gelegen op het noordwesten en is voorzien van ruim terras met grote tegels, kunstgras, buitenkraan, achterom via poort, houten schuur van ca. 9 m2 met elektra en overkapping. De tuin is een heerlijk plek om rustig te kunnen genieten!

Algemeen:
Bouwjaar 1967; Woonoppervlak ca. 98 m2 (LET OP: dit is exclusief de 2de verdieping van ca. 20 m2); Berging ca. 18 m2; Inhoud ca. 434 m2; Perceeloppervlak ca. 154 m2;

Bijzonderheden:
– Heerlijke bijna geheel in 2023 verbouwde hoekwoning;
– Mooi rustig gelegen tegenover water en groen;
– Nette achtertuin met berging/overkapping;
– De moderne en luxe keuken, badkamer en toiletruimte zijn in 2023 geplaatst;
– 3 slaapkamers en multifunctionele 2de verdieping;
– In 2023 voorzien van zinken goten en afvoeren;
– Het dak is in 2021 vervangen en geïsoleerd;
– In 2023 is de vloer geïsoleerd;
– Houten kozijnen met HR++ glas;
– In 2023 is de meterkast vernieuwd;
– In 2023 is de Cv-ketel geplaatst;
– In 20
– Het buitenschilderwerk is in 2023 uitgevoerd;
– Gevel is in 2024 geïmpregneerd;
– Energielabel A (geldig tot 19-09-2032);
– Aanvaarding in overleg;.

Kenmerken
Overdracht
  • Vraagprijs € 425.000,- k.k.
  • Status Beschikbaar
Bouw
  • Soort bouw Woonhuis
  • Woningtype Hoekwoning
  • Bouwjaar 1967
  • Soort dak Zadeldak
Oppervlakten
  • Woonoppervlakte 98 m2
  • Perceeloppervlakte 154 m2
  • Externe bergruimte 9 m2
  • Overige inpandige ruimte 20 m2
Indeling
  • Aantal kamers 5 kamers
  • Aantal badkamers 1
  • Aantal woonlagen 3 woonlagen
  • Voorzieningen Tv kabel, dakraam, glasvezel kabel
  • Energielabel A
  • Isolatie Dakisolatie, muurisolatie, vloerisolatie, dubbel glas
  • Verwarming Cv ketel, vloerverwarming gedeeltelijk
  • Warm water Cv ketel
  • Cv-ketel Gas
  • Kadastergemeente Hatert
  • Eigendomssituatie Volle eigendom
  • Hoofdtuin Achtertuin
  • Oppervlakte hoofdtuin 75 m2
  • Ligging hoofdtuin Noordwest
Voorzieningen
  • Parkeerfaciliteiten Openbaar parkeren
  • Garage Geen garage

Hier kom
je te wonen

      Kom eens bij ons langs

      Of je nu je huis door ons wil laten verkopen, een aankoopmakelaar zoekt of financieel advies nodig hebt.

      Neem contact met ons op