- Beschikbaar
- 108m²
- C
Ontdek het op jouw manier!
Omschrijving
Wonen in het hart van Beuningen, met ruimte, licht en comfort binnen handbereik.
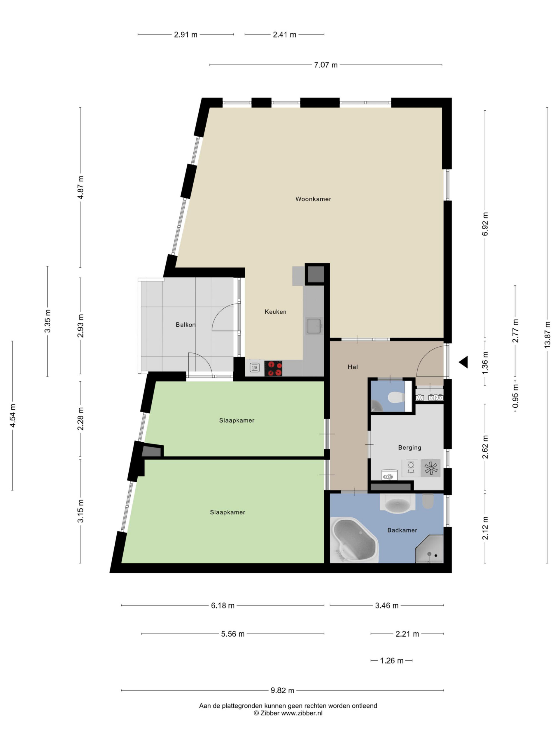
In het geliefde complex “Julianastaete” ligt dit verrassend ruime 3-kamerappartement met balkon, lift en een grote berging. Je woont hier midden in het centrum, met alle voorzieningen letterlijk om de hoek. Met een woonoppervlak van maar liefst 108 m² geniet je van comfort, ruimte en een praktische indeling. Een ideale plek voor wie gelijkvloers en zorgeloos wil wonen.
Bijzonderheden
– Woonoppervlak: 108 m²
– Balkon: 8 m²
– Externe bergruimte: 13 m²
– Bouwjaar: 1995
– VvE-bijdrage: € 175,- per maand
– Energielabel: C
– Gelegen op de tweede woonlaag met lift
– Eigen entree via portiek met slechts één appartement (extra privacy)
Indeling
Je komt binnen via een portiek met slechts één appartement, wat zorgt voor een rustige en private entree. In de hal heb je direct toegang tot alle vertrekken. Hier vind je de meterkast en een nette toiletruimte met vrij hangend toilet en fonteintje.
De woonkamer is ruim en opvallend licht dankzij de grote raampartijen aan twee zijden en de gunstige ligging op het zuiden. Dit is een fijne plek om te ontspannen of gasten te ontvangen. Aansluitend ligt de open keuken (2020), uitgevoerd in een praktische hoekopstelling en voorzien van een elektrische kookplaat, afzuigkap, vaatwasser, combi-magnetron en koelkast.
Vanuit de keuken stap je zo het balkon op. Met een oppervlakte van circa 8 m² is dit een volwaardige buitenruimte waar je comfortabel zit en uitkijkt richting het Beatrixplein.
Ook de slaapkamers zijn royaal van formaat. Eén van de slaapkamers heeft direct toegang tot het balkon, wat zorgt voor extra licht en een prettige verbinding met buiten. De badkamer is compleet uitgevoerd met een douche, ligbad, vrij hangend toilet en een wastafelmeubel.
Daarnaast beschik je over een ruime interne berging met cv-opstelling (Vaillant, 2011, eigendom), aansluitingen voor witgoed en volop opbergruimte. Het gehele appartement is voorzien van een nette laminaatvloer.
Berging
In de onderbouw beschik je over een extra ruime berging van circa 13 m². Ideaal voor het stallen van fietsen of het opbergen van seizoensspullen.
Verder
– Voorzien van intercominstallatie
– Aluminium kozijnen met isolerende beglazing
– Wanden grotendeels afgewerkt met spachtelputz
– Goed geïsoleerd en comfortabel wonen
– Levensloopgeschikt appartement
– Openbaar vervoer op loopafstand aan de burgemeester Geradtslaan
– Nijmegen binnen circa 10 autominuten bereikbaar
Ervaar het zelf
Ben je op zoek naar een ruim appartement op een centrale locatie waar je comfortabel en gelijkvloers kunt wonen? Dan is dit jouw kans. Neem contact met ons op en plan een bezichtiging. Je bent van harte welkom om de ruimte en het wooncomfort zelf te komen ervaren.
Omschrijving
Wonen in het hart van Beuningen, met ruimte, licht en comfort binnen handbereik.
In het geliefde complex “Julianastaete” ligt dit verrassend ruime 3-kamerappartement met balkon, lift en een grote berging. Je woont hier midden in het centrum, met alle voorzieningen letterlijk om de hoek. Met een woonoppervlak van maar liefst 108 m² geniet je van comfort, ruimte en een praktische indeling. Een ideale plek voor wie gelijkvloers en zorgeloos wil wonen.
Bijzonderheden
– Woonoppervlak: 108 m²
– Balkon: 8 m²
– Externe bergruimte: 13 m²
– Bouwjaar: 1995
– VvE-bijdrage: € 175,- per maand
– Energielabel: C
– Gelegen op de tweede woonlaag met lift
– Eigen entree via portiek met slechts één appartement (extra privacy)
Indeling
Je komt binnen via een portiek met slechts één appartement, wat zorgt voor een rustige en private entree. In de hal heb je direct toegang tot alle vertrekken. Hier vind je de meterkast en een nette toiletruimte met vrij hangend toilet en fonteintje.
De woonkamer is ruim en opvallend licht dankzij de grote raampartijen aan twee zijden en de gunstige ligging op het zuiden. Dit is een fijne plek om te ontspannen of gasten te ontvangen. Aansluitend ligt de open keuken (2020), uitgevoerd in een praktische hoekopstelling en voorzien van een elektrische kookplaat, afzuigkap, vaatwasser, combi-magnetron en koelkast.
Vanuit de keuken stap je zo het balkon op. Met een oppervlakte van circa 8 m² is dit een volwaardige buitenruimte waar je comfortabel zit en uitkijkt richting het Beatrixplein.
Ook de slaapkamers zijn royaal van formaat. Eén van de slaapkamers heeft direct toegang tot het balkon, wat zorgt voor extra licht en een prettige verbinding met buiten. De badkamer is compleet uitgevoerd met een douche, ligbad, vrij hangend toilet en een wastafelmeubel.
Daarnaast beschik je over een ruime interne berging met cv-opstelling (Vaillant, 2011, eigendom), aansluitingen voor witgoed en volop opbergruimte. Het gehele appartement is voorzien van een nette laminaatvloer.
Berging
In de onderbouw beschik je over een extra ruime berging van circa 13 m². Ideaal voor het stallen van fietsen of het opbergen van seizoensspullen.
Verder
– Voorzien van intercominstallatie
– Aluminium kozijnen met isolerende beglazing
– Wanden grotendeels afgewerkt met spachtelputz
– Goed geïsoleerd en comfortabel wonen
– Levensloopgeschikt appartement
– Openbaar vervoer op loopafstand aan de burgemeester Geradtslaan
– Nijmegen binnen circa 10 autominuten bereikbaar
Ervaar het zelf
Ben je op zoek naar een ruim appartement op een centrale locatie waar je comfortabel en gelijkvloers kunt wonen? Dan is dit jouw kans. Neem contact met ons op en plan een bezichtiging. Je bent van harte welkom om de ruimte en het wooncomfort zelf te komen ervaren.
Kenmerken
Overdracht
- Vraagprijs € 399.000,- k.k.
- Status Beschikbaar
Bouw
- Soort bouw Appartement
- Bouwjaar 1995
- Soort dak Plat dak
Oppervlakten
- Woonoppervlakte 108 m2
- Externe bergruimte 13 m2
Indeling
- Aantal kamers 3 kamers
- Aantal badkamers 1
- Aantal woonlagen 1 woonlagen
- Voorzieningen Mechanische ventilatie, tv kabel, lift, glasvezel kabel
- Energielabel C
- Isolatie Muurisolatie, dubbel glas
- Verwarming Cv ketel
- Warm water Cv ketel
- Cv-ketel Gas
- Kadastergemeente Beuningen
- Eigendomssituatie Volle eigendom
Voorzieningen
- Parkeerfaciliteiten Openbaar parkeren, betaald parkeren
- Garage Geen garage
Kenmerken
Overdracht
- Vraagprijs € 399.000,- k.k.
- Status Beschikbaar
Bouw
- Soort bouw Appartement
- Bouwjaar 1995
- Soort dak Plat dak
Oppervlakten
- Woonoppervlakte 108 m2
- Externe bergruimte 13 m2
Indeling
- Aantal kamers 3 kamers
- Aantal badkamers 1
- Aantal woonlagen 1 woonlagen
- Voorzieningen Mechanische ventilatie, tv kabel, lift, glasvezel kabel
- Energielabel C
- Isolatie Muurisolatie, dubbel glas
- Verwarming Cv ketel
- Warm water Cv ketel
- Cv-ketel Gas
- Kadastergemeente Beuningen
- Eigendomssituatie Volle eigendom
Voorzieningen
- Parkeerfaciliteiten Openbaar parkeren, betaald parkeren
- Garage Geen garage
Statistieken
Aantal inwoners
765
Verdeling man / vrouw
Leeftijd
In percentages van totaal
Huishoudsamenstelling
In percentages van totaal
Hier kom
je te wonen
Downloads
Brochure
5415kbDit is wellicht ook iets voor jou
Meer aanbod
Mark is sinds 2005 werkzaam voor Hans Janssen Makelaars en hét gezicht in Beuningen. Omdat hij woonachtig is in de regio, weet hij als geen ander wat er speelt en heeft hij in de loop der jaren een groot netwerk opgebouwd. Een klik met de klant is voor Mark essentieel. In zijn vrije tijd is Mark in voor een potje tennis of golf. Daarnaast is hij een fanatiek skiër en houdt hij van gezellige borrels met vrienden.
Neem contact op met Mark
Vind een huis met Mark
Kom eens bij ons langs
Of je nu je huis door ons wil laten verkopen, een aankoopmakelaar zoekt of financieel advies nodig hebt.
Neem contact met ons op