- Beschikbaar
- 280m²
- 135m²
Ontdek het op jouw manier!
Omschrijving
LET OP! dit onroerend goed is met meerdere panden te koop als potentiële kopers geïnteresseerd zijn in meer is informatie beschikbaar!
Het betreft een buitengewoon gemeentelijk monumentaal woon-werkpand in het hart van historisch Doesburg: een voormalig graanpakhuis uit 1884, ontworpen door de vermaarde Arnhemse architect J.W. Boerbooms. Geïnspireerd door de Hanzegotiek, . met hoge topgevels, ezelsruggen en pinakels, siert de statige gevel een van de mooiste straten van de stad en vormt zij een markant baken in het straatbeeld.
Achter deze imposante façade ontvouwt zich een zeer royaal geheel: circa 300 m² woonruimte verdeeld over drie verdiepingen, aangevuld met een representatieve winkel-/bedrijfsruimte van ruim 100 m² op de begane grond, beide met een eigen entree. Het pand is met liefde getransformeerd, waarbij historische ziel en wooncomfort op natuurlijke wijze samenkomen.
Begane grond De begane grond biedt een brede, lichte winkel- of bedrijfsruimte, ideaal voor boetiek, atelier, galerie, conceptstore of woonruimte! Het voormalige ommuurde binnentuintje is overkapt en ingericht als prettig kantoor met eigen toilet. Dankzij de zelfstandige toegang leent deze laag zich uitstekend voor verhuur of het creëren van een volledig onafhankelijke bedrijfsruimte, terwijl wonen en werken comfortabel gescheiden blijven.
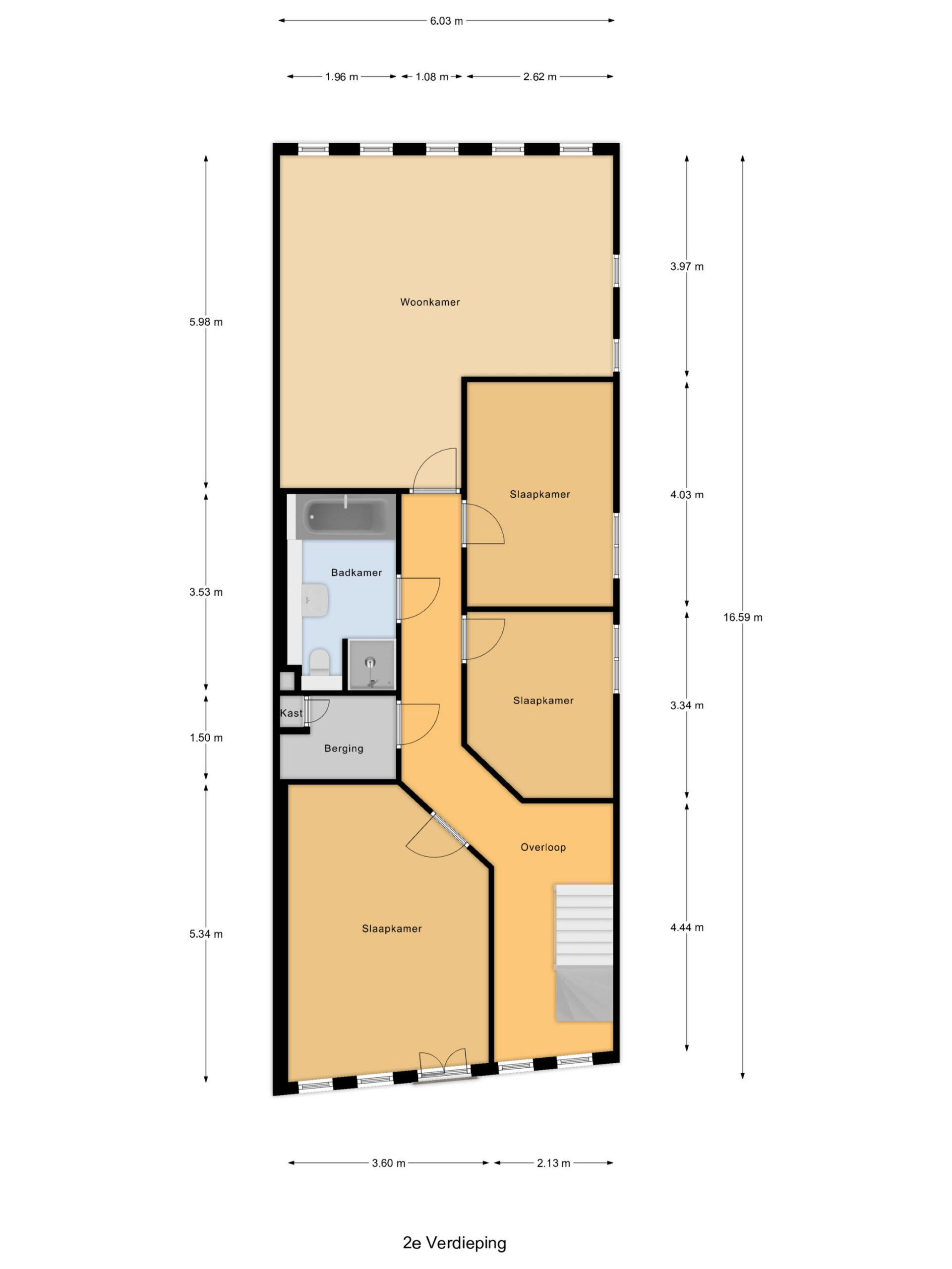
Woonverdiepingen Op de eerste, tweede en derde verdieping ontvouwt zich een imposant woonhuis met rijke historische signatuur: authentieke balklagen, fraaie dakspanten en hoge plafonds zorgen voor allure en sfeer. De royale woonkeuken vormt het kloppend hart van de woning; aangrenzend bevinden zich riante leefruimtes die uitnodigen tot samenzijn en verstilling. Met in totaal zes volwaardige slaapkamers is er ruimte in overvloed voor gezin, gasten en werk. De indeling is bovendien flexibel: diverse binnenwanden laten zich eenvoudig herpositioneren, zodat het huis zich moeiteloos voegt naar uw woonwensen.
Buitenruimte en omgeving Hoewel het pand niet over een buitenruimte beschikt, maakt de locatie dit ruimschoots goed: op korte loopafstand liggen terrassen, parken en de betoverende natuur rond de IJssel. Doesburg, historische Hanzestad bij uitstek, biedt een levendig palet aan cultuur, gastronomie en ambachtelijke winkels.
Bestemming en gebruik De begane grond is thans in gebruik als winkel-/bedrijfsruimte en beschikt over een eigen toegang. Gebruik als woonruimte behoort tot de mogelijkheden, met inachtneming van de geldende regelgeving en na overleg met de gemeente. Bij het niet voortzetten van detailhandel kan de bestemming wijzigen; laat u hierover tijdig en zorgvuldig informeren.
Bijzonderheden
Gemeentelijkmonument, voormalig graanpakhuis (1884) van J.W. Boerbooms, in Hanzegotische vormentaal
Circa 300 m² woonoppervlak over drie verdiepingen; ruim 100 m² winkel-/bedrijfs/woonruimte op de begane grond
Zes slaapkamers, royale woonkeuken en meerdere sfeervolle leefruimtes
Rijke originele details: hoge topgevels, ezelsruggen, pinakels, balklagen en dakspanten
Flexibele indelingsmogelijkheden; wonen en werken onder één statig dak
Topligging in het monumentale centrum, met horeca, cultuur en natuur binnen handbereik
LETOP! zoekt u een garage dan is er wellicht tegen meerprijs en in overleg een garage met uitloop en ingang vanaf de achterliggende Zandbergstraat erbij te koop!
Een zeldzaam aanbod voor wie zoekt naar grandeur, karakter en functionaliteit in één. Dit is wonen en ondernemen op niveau, in het kloppende hart van Doesburg.
Kenmerken
Overdracht
- Vraagprijs € 985.000,- k.k.
- Status Beschikbaar
Bouw
- Soort bouw Woonhuis
- Woningtype Tussenwoning
- Bouwjaar 1884
- Soort dak Samengesteld dak
Oppervlakten
- Woonoppervlakte 280 m2
- Perceeloppervlakte 135 m2
- Overige inpandige ruimte 125 m2
Indeling
- Aantal kamers 8 kamers
- Aantal badkamers 2
- Aantal woonlagen 5 woonlagen
- Voorzieningen Airconditioning, frans balkon, dakraam, natuurlijke ventilatie
- Isolatie Dakisolatie, gedeeltelijk dubbel glas, geen spouw
- Verwarming Cv ketel
- Warm water Cv ketel
- Kadastergemeente Doesburg
- Eigendomssituatie Volle eigendom
Voorzieningen
- Parkeerfaciliteiten Openbaar parkeren, betaald parkeren
- Garage Geen garage
Hier kom
je te wonen
Downloads

Brochure
14121kb
Kom eens bij ons langs
Of je nu je huis door ons wil laten verkopen, een aankoopmakelaar zoekt of financieel advies nodig hebt.
Neem contact met ons op